Prodej rodinného domu 5+kk s terasou, garáží a parkováním, 197 m2, Praha 8 - Ďáblice
Rodinné bydlení, které spojuje prostor, soukromí a komfort městského života.
Dvoupodlažní dům o dispozici 5+kk s užitnou plochou 197 m2 na pozemku 261 m2 v klidné rezidenční části Prahy.
Velkým benefitem nemovitosti je terasa navazující na obytný prostor, garáž v domě a další parkovací stání na vlastním pozemku - prvek, který je v městské zástavbě stále cennější.
Dům nabízí praktickou dispozici, velkorysé místnosti a flexibilní využití pro rodinu i práci z domova. Díky dvěma koupelnám a možnosti plnohodnotného fungování již v přízemí je vhodný i pro vícegenerační bydlení.
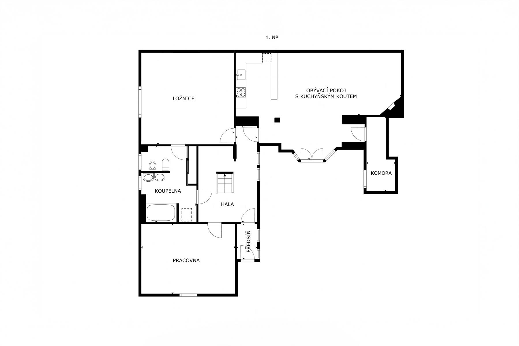
Dispozice
1. nadzemní podlaží
Obývací pokoj s kuchyňským koutem (45 m2) tvoří přirozené centrum domu. Přímý vstup na terasu rozšiřuje obytný prostor o venkovní zázemí pro relaxaci a setkávání.
Dále zde naleznete ložnici, pracovnu, koupelnu s WC, spíž a vstupní část s napojením na garáž.
2. nadzemní podlaží
Dvě prostorné místnosti, druhá koupelna a velká centrální chodba s možností dalšího využití (herna, pracovna, relaxační zóna).
Základní údaje
dispozice: 5+kk
užitná plocha: 197 m2
pozemek: 261 m2
terasa
garáž + další parkovací stání
2 koupelny
podlahové topení
obecní voda + studna na zalévání
Lokalita, která si drží hodnotu
Praha 8 - Ďáblice dlouhodobě patří mezi vyhledávané rezidenční části díky kombinaci klidného prostředí, zeleně a výborné dostupnosti do centra města. Kompletní občanská vybavenost je samozřejmostí.
Nemovitost představuje vyváženou kombinaci prostoru, parkování a venkovního zázemí v rámci hlavního města - což jsou parametry, které zásadně ovlivňují dlouhodobou hodnotu nemovitosti.
Ukazatel energetické náročnosti: G* (údaj PENB bude aktualizován).
Pomocí naší hypoteční kalkulačky si můžete udělat orientační představu o výši měsíčních splátek hypotéky. O vše ostatní se pak postaráme my ve spolupráci s našimi obchodními partnery.
64 763 Kč
* Odhadovaná měsíční splátka vychází z výše úvěru Kč s pevnou úrokovou sazbou % po celou dobu trvání úvěru.
Uživatel serveru RealityMIX.cz (dále jen „Server“) dostupného na internetové adrese (URL) https://www.realitymix.cz, který provozuje společnost DALTEN media s.r.o., se sídlem Na Harfě 916/9a, Praha 9, 190 00, IČO: 271 35 306 (dále jen „Správce“) jako provozovateli tohoto Serveru uděluje svůj výslovný souhlas v souladu s ustanovením § 5 zákona č. 101/2000 Sb. O ochraně osobních údajů a o změně některých zákonů, v platném znění (dále jen „zákon o ochraně osobních údajů“), se zpracováním uživatelem poskytnutých osobních údajů a dalších dat.
Uživatel poskytuje Správci osobní údaje v rozsahu: jméno, příjmení, e-mailová adresa, telefonický kontakt a další data, a to z důvodu projeveného zájmu o nemovitost, kde prostřednictvím služby Serveru Správce osloví Uživatel inzerenta uvedeného v detailu
nemovitosti - Bohemia reality (IČ 70548714) se zájmem o jeho služby.
Uživatel tyto osobní údaje poskytuje dobrovolně a bere na vědomí, že součástí služeb Správce, které Správce Uživateli poskytuje, je vyhledání všech Uživateli vyhovujících (dle parametrů - cena, typ nemovitosti, lokalita atd.) nemovitostí. Správce za tímto účelem provozuje aplikace Hlídací pes a newsletter. Tyto služby je možné z každého zaslaného emailu odhlásit. Souhlas se zpracováním osobních údajů Uživatel poskytuje Správci na dobu neurčitou s tím, že svůj udělený souhlas může Uživatel kdykoliv na drese správce info@realitymix.cz odvolat. Správce garantuje Uživateli i další práva uvedené v ustanovení §11 a §21 zákoba č. 101/200 Sb. Ve znění pozdějších předpisů.
Více informací o zpracování údajů získáte zde (realitymix.cz/zasady-ochrany-osobnich-udaju)