Prodej, Rodinný dům 4+kk, 153 m² - Rodinné domy Pitkovice - Praha 10
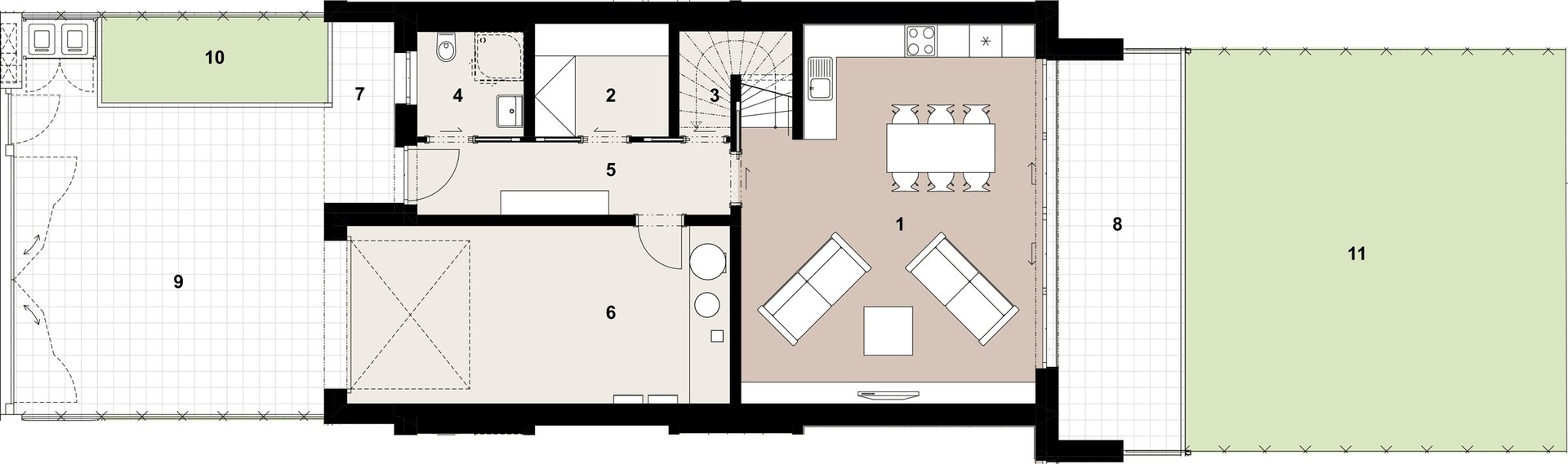
Nabízíme k prodeji rodinný dům s dispozicí 4+kk (153,4 m²) na pozemku o výměře 217 m² se soukromou zahradou, terasou, balkonem, parkovacím stáním a uzavřenou garáží v novém projektu Rodinné domy Pitkovice v Praze 10 – Pitkovicích.
Rodinné domy v projektu Viladomy Pitkovice představují nadstandardní rodinné bydlení s důrazem na soukromí, komfort a kvalitní architekturu. Nadčasové řešení, velkoformátová dřevěná okna a pečlivě zvolené materiály vytvářejí elegantní a prosvětlený prostor s přirozeným propojením na terasu a soukromou zahradu, kterou doplňuje designové oplocení se vstupní bránou.
Vysoký standard provedení zahrnuje stropní vytápění a chlazení, podlahové topení v koupelnách, exteriérové žaluzie, moderní zabezpečovací systém i prvky chytré domácnosti. Vysoký uživatelský komfort a energetickou efektivitu zajišťuje tepelné čerpadlo doplněné systémem rekuperace pro řízenou výměnu vzduchu a prvotřídní kvalitu vnitřního prostředí. Připravené jsou také rozvody pro budoucí instalaci fotovoltaiky. K domu náleží dvě parkovací stání včetně uzavřené garáže. Dům splňuje energetickou třídu PENB A, která zaručuje mimořádně úsporný a komfortní provoz.
Pitkovice patří mezi zavedené a vyhledávané rezidenční lokality na jihovýchodě Prahy. Nabízejí klidné bydlení v zeleni s rychlou dostupností do centra města, pohodlným spojením na metro C – Háje a výborným napojením na D1. V bezprostředním okolí se nachází školy, školky, obchody, služby i široké možnosti sportovního a rekreačního vyžití v blízkosti Hostivařská přehrada, Průhonický park a přírodního parku Botič-Milíčov.
Pomocí naší hypoteční kalkulačky si můžete udělat orientační představu o výši měsíčních splátek hypotéky. O vše ostatní se pak postaráme my ve spolupráci s našimi obchodními partnery.
89 032 Kč
* Odhadovaná měsíční splátka vychází z výše úvěru Kč s pevnou úrokovou sazbou % po celou dobu trvání úvěru.
Uživatel serveru RealityMIX.cz (dále jen „Server“) dostupného na internetové adrese (URL) https://www.realitymix.cz, který provozuje společnost DALTEN media s.r.o., se sídlem Na Harfě 916/9a, Praha 9, 190 00, IČO: 271 35 306 (dále jen „Správce“) jako provozovateli tohoto Serveru uděluje svůj výslovný souhlas v souladu s ustanovením § 5 zákona č. 101/2000 Sb. O ochraně osobních údajů a o změně některých zákonů, v platném znění (dále jen „zákon o ochraně osobních údajů“), se zpracováním uživatelem poskytnutých osobních údajů a dalších dat.
Uživatel poskytuje Správci osobní údaje v rozsahu: jméno, příjmení, e-mailová adresa, telefonický kontakt a další data, a to z důvodu projeveného zájmu o nemovitost, kde prostřednictvím služby Serveru Správce osloví Uživatel inzerenta uvedeného v detailu
nemovitosti - CENTRAL GROUP a.s. (IČ 24227757) se zájmem o jeho služby.
Uživatel tyto osobní údaje poskytuje dobrovolně a bere na vědomí, že součástí služeb Správce, které Správce Uživateli poskytuje, je vyhledání všech Uživateli vyhovujících (dle parametrů - cena, typ nemovitosti, lokalita atd.) nemovitostí. Správce za tímto účelem provozuje aplikace Hlídací pes a newsletter. Tyto služby je možné z každého zaslaného emailu odhlásit. Souhlas se zpracováním osobních údajů Uživatel poskytuje Správci na dobu neurčitou s tím, že svůj udělený souhlas může Uživatel kdykoliv na drese správce info@realitymix.cz odvolat. Správce garantuje Uživateli i další práva uvedené v ustanovení §11 a §21 zákoba č. 101/200 Sb. Ve znění pozdějších předpisů.
Více informací o zpracování údajů získáte zde (realitymix.cz/zasady-ochrany-osobnich-udaju)