Prodej stavebního pozemku plochy 909m2 pro výstavbu dvojdomu užitné plochy 333,5m2 s krásným výhlede
Naše společnost Vám zprostředkuje koupi rovinatého stavebního pozemku plochy 909m² určeného pro výstavbu dvojdomu o užitné ploše 333,5m², se sklepními prostory 166,1m² a střešními terasami plochy 102,2m². Pozemek je obdélníkového tvaru s plánovaným vjezdem z ulice Davídkova, Praha 8. Nachází se na kopci v místě, kde svah pozvolna přechází do roviny. Na výstavbu dvojdomu již bylo v roce 2025 vydáno územní rozhodnutí.
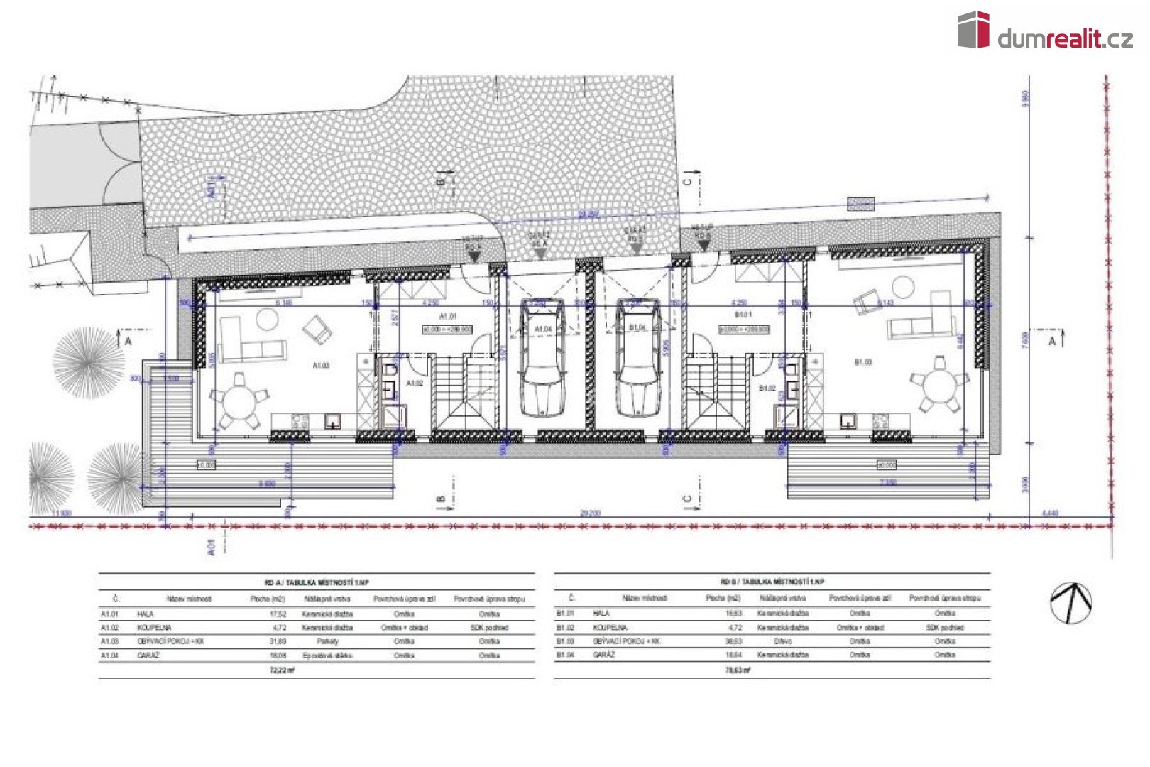
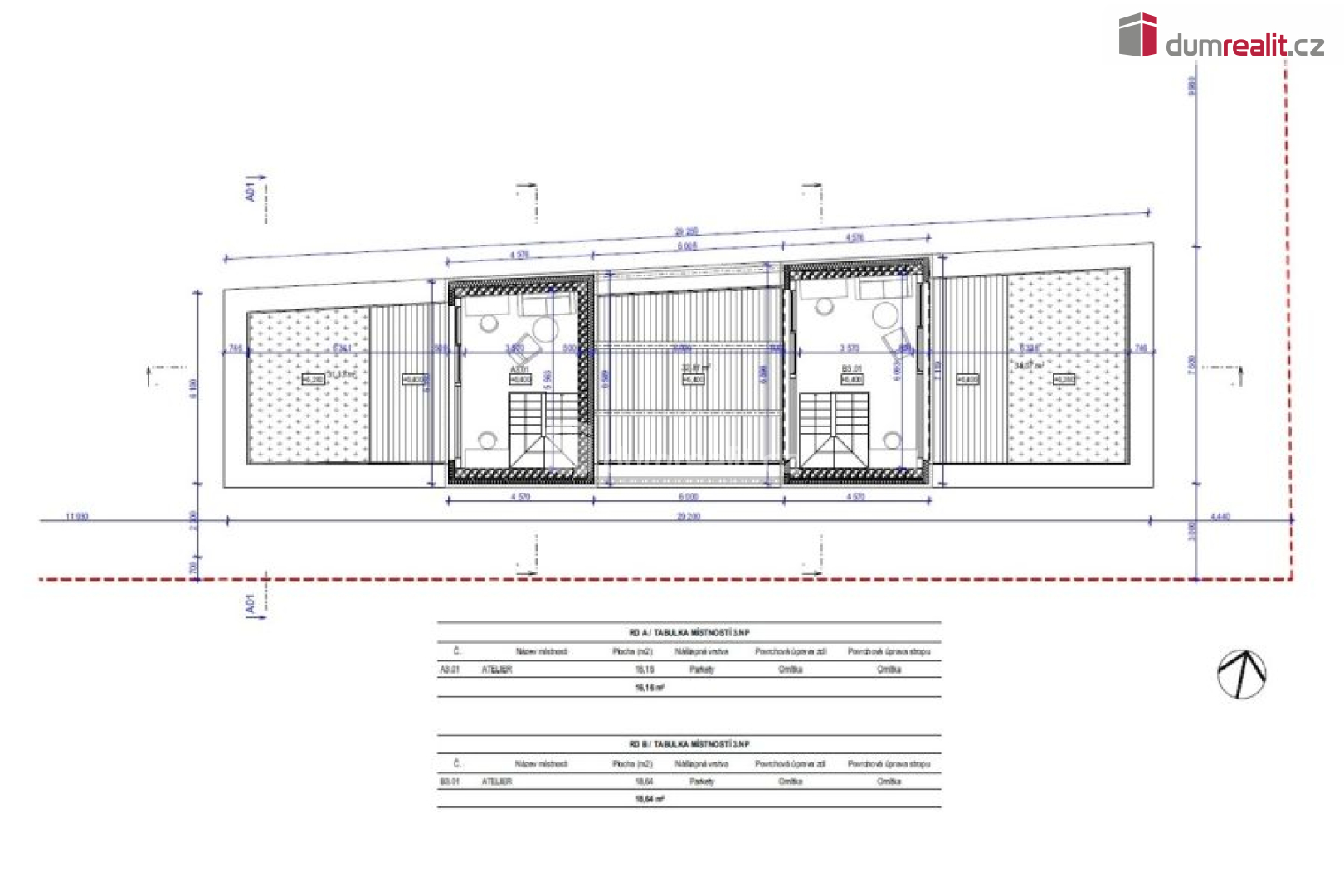
Směrově je situován zejména na jih a sever. Dům "A" má užitnou plochu 159,0m², plus sklepní prostory 78,8m² a střešní terasy 47,7m². Dům "B" má užitnou plochu 174,5m², plus sklepní prostory 87,3m² a střešní terasy 54,5m². Jedná se vždy o dvě obytná nadzemní podlaží a střešní ateliér se dvěma terasami pro každý dům. V 1. NP se nachází hala, koupelna a obývací pokoj s kuchyňským koutem, dále garáž. Ve 2. NP se nachází tři ložnice a prostornější koupelna. Ve 3. NP se nachází střešní ateliér se vstupy na dvě terasy, z nichž bude krásný výhled na Prahu. V celé ploše půdorysu domu je podzemní podlaží s výškou stropu 2,55m se širokým potenciálem využití na kanceláře, skladové prostory, tělocvičnu, posilovnu, herny apod..
V rámci přípravy stavby již byly realizovány přípojky vody, kanalizace a plynu. Vjezd na pozemek je projektován z ulice Davídkova. Pozemek navazuje na zástavbu prvorepublikových rodinných domů. V sousedství se mimo jiné nachází hotel Mazanka ve vlastnictví Akademie věd ČR. V blízkosti je veškerá občanská vybavenost. V docházkové vzdálenosti nákupní centrum Ládví se supermarketem a mnoha obchody, stanice metra, tramvají a autobusů. Na procházky je vhodný Přírodní park Okrouhlík nebo nedaleký Ďáblický háj. Autem lze v krátkých časových intervalech dojet po celé Praze či využít tunelu Blanka se spojením na důležité výpadovky z Prahy.
Lokalitu lze považovat za širší centrum Prahy. Pozemek je situovaný na náhorní plošině s atraktivním výhledem. Součástí prodeje je předání výkresové dokumentace objektu pro územní rozhodnutí včetně již vydaného územního rozhodnutí s nabytím právní moci. Pro další informace neváhejte kontaktovat makléře. Ev. číslo: 653233.
Cena:
Cena na vyžádání
Poznámka:
cenu Vám sdělí makléř
Plocha:
909 m²
Číslo zakázky:
REALITYMIX-653847
Podrobné informace
Celková plocha:909 m²
Druh pozemku:pro bydlení
Inženýrské sítě:vodovod, kanalizace, elektřina
Umístění objektu:klidná část obce
Energetická náročnost budovy:B - Velmi úsporná
Energetický ukazatel podle vyhlášky:č. 78/2013 Sb.
Uživatel serveru RealityMIX.cz (dále jen „Server“) dostupného na internetové adrese (URL) https://www.realitymix.cz, který provozuje společnost DALTEN media s.r.o., se sídlem Na Harfě 916/9a, Praha 9, 190 00, IČO: 271 35 306 (dále jen „Správce“) jako provozovateli tohoto Serveru uděluje svůj výslovný souhlas v souladu s ustanovením § 5 zákona č. 101/2000 Sb. O ochraně osobních údajů a o změně některých zákonů, v platném znění (dále jen „zákon o ochraně osobních údajů“), se zpracováním uživatelem poskytnutých osobních údajů a dalších dat.
Uživatel poskytuje Správci osobní údaje v rozsahu: jméno, příjmení, e-mailová adresa, telefonický kontakt a další data, a to z důvodu projeveného zájmu o nemovitost, kde prostřednictvím služby Serveru Správce osloví Uživatel inzerenta uvedeného v detailu
nemovitosti - Dumrealit.cz (IČ 00537861) se zájmem o jeho služby. Tato společnost je součástí seskupení/sítě/franšízového modelu realitních kanceláří, jejich seznam můžete zobrazit kliknutím na tento odkaz.
Dumrealit.cz (IČ 00537861) , HOME 4 PEOPLE (IČ 29132886) , Reality 11 (IČ 29132886) , REAL ESTATE CZECH REPUBLIC a.s. (IČ 29132886) , Národní Realitní Holding a.s. (IČ 02918897)
Uživatel tyto osobní údaje poskytuje dobrovolně a bere na vědomí, že součástí služeb Správce, které Správce Uživateli poskytuje, je vyhledání všech Uživateli vyhovujících (dle parametrů - cena, typ nemovitosti, lokalita atd.) nemovitostí. Správce za tímto účelem provozuje aplikace Hlídací pes a newsletter. Tyto služby je možné z každého zaslaného emailu odhlásit. Souhlas se zpracováním osobních údajů Uživatel poskytuje Správci na dobu neurčitou s tím, že svůj udělený souhlas může Uživatel kdykoliv na drese správce info@realitymix.cz odvolat. Správce garantuje Uživateli i další práva uvedené v ustanovení §11 a §21 zákoba č. 101/200 Sb. Ve znění pozdějších předpisů.
Více informací o zpracování údajů získáte zde (realitymix.cz/zasady-ochrany-osobnich-udaju)