Prodej velkorysého bytu, rozdělený na dvě jednotky 3kk, 295 m2, Havlíčkova ulice, Praha 1
Nabízíme Vám ke koupi velmi mimořádný a jedinečný byt o celkové rozloze 295 m2, přičemž reálná užitná plocha je zvětšena vybudovanou galerií v mezonetové části bytu. Byt je umístěný v klasickém činžovním domě s výtahem, Havlíčkova ulice, Praha 1.
Celý byt působí velmi sympaticky a originálně i díky prvkům půdního prostoru, ve kterém je vybudován. Tato nadstandardní nemovitost umožňuje i propojení bydlení s podnikáním ve vyhledávané lokalitě centra Prahy. Daná lokalita je koneckonců velkou přidanou hodnotou této nabídky. Těsná blízkost obchodů a služeb včetně MHD, metra a vlakového nádraží, snad ani netřeba zmiňovat.
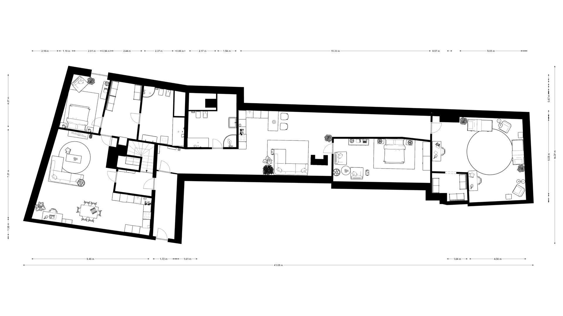
V prohlášení vlastníka je byt zapsán jako jedna jednotka o rozloze 295 m2. Reálně je byt rozdělený na dvě samostatné jednotky s dispozicemi 3kk, což představuje velmi účelné a praktické uspořádání.
Jednotka 1: vstupní chodba, obývací pokoj propojený s kuchyní, dva samostatné pokoje, úložná komora, koupelna s vanou a toaletou (na fotografiích označeno jako jednotka 1)
Jednotka 2: mezonetový byt s atraktivní galerií, vstupní chodba, šatna, obývací pokoj propojený s kuchyní, ložnice, prostorná koupelna, v patře bytu dřevěná galerie, ložnice, toaleta. (na fotografiích označeno jako jednotka 2)
Jednotky mají samostatné měřiče elektřiny, plynu i vody. V každém bytě je instalován plynový kotel pro ohřev vody a topení, které je řešeno podlahovým topením s možností využití krbů. K dispozici je klimatizace, centrální vysavač, zabezpečovací zařízení a v každém z bytů je také výše zmiňovaný funkční krb.
V tuto chvíli jsou oba byty pronajaty do konce 8/2026. Dům má funkční SVJ, je pečlivě udržovaný, velkou výhodou je výtah a k bytu náleží sklep.
Doporučujeme osobní prohlídku bytu pro získání plné představy o prostoru, jelikož se jedná o specifickou nemovitost, kterou je potřeba zažít.
Pomocí naší hypoteční kalkulačky si můžete udělat orientační představu o výši měsíčních splátek hypotéky. O vše ostatní se pak postaráme my ve spolupráci s našimi obchodními partnery.
161 544 Kč
* Odhadovaná měsíční splátka vychází z výše úvěru Kč s pevnou úrokovou sazbou % po celou dobu trvání úvěru.
Prodáváte nemovitost a potřebujete zjistit její reálnou hodnotu?
Uživatel serveru RealityMIX.cz (dále jen „Server“) dostupného na internetové adrese (URL) https://www.realitymix.cz, který provozuje společnost DALTEN media s.r.o., se sídlem Na Harfě 916/9a, Praha 9, 190 00, IČO: 271 35 306 (dále jen „Správce“) jako provozovateli tohoto Serveru uděluje svůj výslovný souhlas v souladu s ustanovením § 5 zákona č. 101/2000 Sb. O ochraně osobních údajů a o změně některých zákonů, v platném znění (dále jen „zákon o ochraně osobních údajů“), se zpracováním uživatelem poskytnutých osobních údajů a dalších dat.
Uživatel poskytuje Správci osobní údaje v rozsahu: jméno, příjmení, e-mailová adresa, telefonický kontakt a další data, a to z důvodu projeveného zájmu o nemovitost, kde prostřednictvím služby Serveru Správce osloví Uživatel inzerenta uvedeného v detailu
nemovitosti - Zuzana Lang s.r.o. (IČ 06284981) se zájmem o jeho služby.
Uživatel tyto osobní údaje poskytuje dobrovolně a bere na vědomí, že součástí služeb Správce, které Správce Uživateli poskytuje, je vyhledání všech Uživateli vyhovujících (dle parametrů - cena, typ nemovitosti, lokalita atd.) nemovitostí. Správce za tímto účelem provozuje aplikace Hlídací pes a newsletter. Tyto služby je možné z každého zaslaného emailu odhlásit. Souhlas se zpracováním osobních údajů Uživatel poskytuje Správci na dobu neurčitou s tím, že svůj udělený souhlas může Uživatel kdykoliv na drese správce info@realitymix.cz odvolat. Správce garantuje Uživateli i další práva uvedené v ustanovení §11 a §21 zákoba č. 101/200 Sb. Ve znění pozdějších předpisů.
Více informací o zpracování údajů získáte zde (realitymix.cz/zasady-ochrany-osobnich-udaju)