Chcete si pronajmout byt o dispozici 1+kk na klidném místě s dobrou dopravní dostupností do centra Prahy? Jeden takový mám pro vás v Praze 4 Michli.
Popis bytu
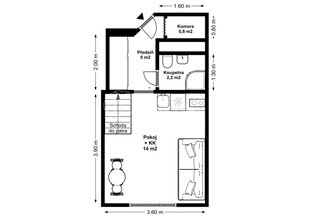
Bytový dům se nachází ve vedlejší méně frekventované ulici a je orientovaný na východ. Je v 1. patře a má 22 m2 + spací patro s úložným prostorem. Je rozdělený na obývací pokoj s kuchyňskou linkou (14 m2), koupelnu s toaletou (2,2 m2), předsíň (5 m2), komoru (0,8m2) a spací patro s úložným prostorem.
Vybavení bytu
V bytě je k dispozici kuchyňská linka s ledničkou, dvouplotýnkovým vařičem a digestoří, rozkládací pohovka a ve spacím patře jedna matrace (200 x 90 cm). Do spacího patra se vejde i větší matrace na rozměr 200 x 160 cm. Pračka je umístěna v suterénu domu, kde ji společně využívají obyvatelé menších bytů a náklad na vodu si rozpočítávají podle spotřeby.
V bytě je možnost připojení TV, Internet a telefon.
Náklady spojené s pronájmem bytu
Měsíční nájemné – 12 000 Kč
Měsíční zálohy na služby – 2 600 Kč
Měsíční záloha na elektřinu – 600 Kč
Kauce – 15 200 Kč
Provize RK – 14 520 Kč
Preferované podmínky pronájmu
V současné době je byt volný. Nájemní smlouva na 1 rok s možností prodloužení. Smlouvu na elektřinu majitel nepřevádí na nájemce.
Lokalita
Nejbližší zastávka tramvají a autobusů je Pod Jezerkou, odkud se dostanete do 15 min do centra Prahy nebo za 6 minut ke stanici metra C Pankrác.
Prohlídky
První kolo prohlídek proběhne 8. dubna v odpoledních a večerních hodinách. Konkrétní časy budeme domlouvat během 7. dubna.
Cena:
12 000 Kč / (za měsíc)
Datum k nastěhování:
13.04.2026
Dispozice/podlahová plocha:
1+kk/22 m²
Číslo zakázky:
REALITYMIX-19358
Podrobné informace
Dispozice bytu:1+kk
Číslo podlaží v domě:2
Počet podlaží objektu:6
Užitná plocha:22 m²
Celková podlahová plocha:22 m²
Druh objektu:smíšená
Stav objektu:velmi dobrý
Vlastnictví:osobní
Vybaveno:ano
Umístění objektu:centrum obce
Doprava:MHD, autobus
Elektřina:Elektro - 120 V
Telekomunikace:Telefon, Internet
Odpad:Kanalizace
Ostatní rozvody:Kabelové rozvody
Energetická náročnost budovy:D - Méně úsporná
Energetický ukazatel podle vyhlášky:č. 264/2020 Sb.
Uživatel serveru RealityMIX.cz (dále jen „Server“) dostupného na internetové adrese (URL) https://www.realitymix.cz, který provozuje společnost DALTEN media s.r.o., se sídlem Na Harfě 916/9a, Praha 9, 190 00, IČO: 271 35 306 (dále jen „Správce“) jako provozovateli tohoto Serveru uděluje svůj výslovný souhlas v souladu s ustanovením § 5 zákona č. 101/2000 Sb. O ochraně osobních údajů a o změně některých zákonů, v platném znění (dále jen „zákon o ochraně osobních údajů“), se zpracováním uživatelem poskytnutých osobních údajů a dalších dat.
Uživatel poskytuje Správci osobní údaje v rozsahu: jméno, příjmení, e-mailová adresa, telefonický kontakt a další data, a to z důvodu projeveného zájmu o nemovitost, kde prostřednictvím služby Serveru Správce osloví Uživatel inzerenta uvedeného v detailu
nemovitosti - QARA s.r.o. (IČ 01740113) se zájmem o jeho služby. Tato společnost je součástí seskupení/sítě/franšízového modelu realitních kanceláří, jejich seznam můžete zobrazit kliknutím na tento odkaz.
QARA s.r.o. Ostrava (IČ 01740113) , QARA s.r.o. Brno (IČ 01740113) , QARA s.r.o. (IČ 01740113)
Uživatel tyto osobní údaje poskytuje dobrovolně a bere na vědomí, že součástí služeb Správce, které Správce Uživateli poskytuje, je vyhledání všech Uživateli vyhovujících (dle parametrů - cena, typ nemovitosti, lokalita atd.) nemovitostí. Správce za tímto účelem provozuje aplikace Hlídací pes a newsletter. Tyto služby je možné z každého zaslaného emailu odhlásit. Souhlas se zpracováním osobních údajů Uživatel poskytuje Správci na dobu neurčitou s tím, že svůj udělený souhlas může Uživatel kdykoliv na drese správce info@realitymix.cz odvolat. Správce garantuje Uživateli i další práva uvedené v ustanovení §11 a §21 zákoba č. 101/200 Sb. Ve znění pozdějších předpisů.
Více informací o zpracování údajů získáte zde (realitymix.cz/zasady-ochrany-osobnich-udaju)