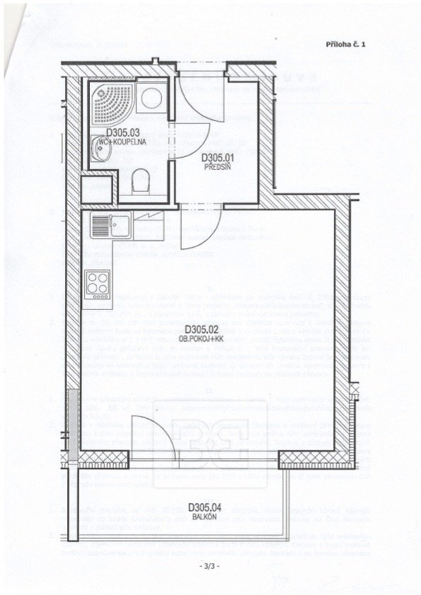
Nabízíme Vám k pronájmu byt 1+kk s obytnou plochou 31,9 m², situovaný ve 3. NP domu s výtahem, v ulici U Uhříněveské obory. Byt se sestává ze vstupní chodby, koupelny se sprchovým koutem a toaletou a obývacího pokoje s kuchyňským koutem, ze kterého lze vejít na balkón 5,4 m². Byt se pronajímá plně vybavený viz foto.
Měsíční nájem činí 15 900 Kč. Poplatky za služby ve výši 3 900 Kč (včetně internetu) + elektřina převodem na nájemníky. Vratná kauce, Provize RK 19 800 Kč + DPH.
Pozor, velkou výhodou pro potenciální nájemce je, že byt je v profesionální správě společnosti Bohemian Estates, jenž správu pro majitele tohoto bytu vykonává. Nájemci je k dispozici kontaktní osoba, která řeší veškeré záležitosti s nájmem spojené (údržba, platby nájemného, vyúčtování, dodatky, a pod.). Nájemci je tak zajištěno bezproblémové užívání bytu s kompletním servisem.
Cena:
15 900 Kč / (za měsíc)
Poznámka:
+ zálohy na služby 3900 kč včetně internetu + elektřina, vratná kauce, provize 19800 kč + DPH, bez p
Datum k nastěhování:
01.06.2026
Dispozice/podlahová plocha:
1+kk/37 m²
Číslo zakázky:
REALITYMIX-N09057
Podrobné informace
Dispozice bytu:1+kk
Číslo podlaží v domě:3
Počet podlaží objektu:1
Celková podlahová plocha:37 m²
Druh objektu:skeletová
Stav objektu:velmi dobrý
Vlastnictví:osobní
Balkon:5 m²
Vybaveno:ano
Umístění objektu:klidná část obce
Doprava:vlak, dálnice, silnice, MHD, autobus
Elektřina:Elektro - 230 V
Voda:Voda - dálkový vodovod
Telekomunikace:Internet
Topení:Ústřední - dálkové
Energetická náročnost budovy:C - Vyhovující
Ukazatel energetické náročnosti budovy:93 kWh/m²
Energetický ukazatel podle vyhlášky:č. 148/2007 Sb.
Uživatel serveru RealityMIX.cz (dále jen „Server“) dostupného na internetové adrese (URL) https://www.realitymix.cz, který provozuje společnost DALTEN media s.r.o., se sídlem Na Harfě 916/9a, Praha 9, 190 00, IČO: 271 35 306 (dále jen „Správce“) jako provozovateli tohoto Serveru uděluje svůj výslovný souhlas v souladu s ustanovením § 5 zákona č. 101/2000 Sb. O ochraně osobních údajů a o změně některých zákonů, v platném znění (dále jen „zákon o ochraně osobních údajů“), se zpracováním uživatelem poskytnutých osobních údajů a dalších dat.
Uživatel poskytuje Správci osobní údaje v rozsahu: jméno, příjmení, e-mailová adresa, telefonický kontakt a další data, a to z důvodu projeveného zájmu o nemovitost, kde prostřednictvím služby Serveru Správce osloví Uživatel inzerenta uvedeného v detailu
nemovitosti - Bohemian Estates International s. r. o. (IČ 27889394) se zájmem o jeho služby.
Uživatel tyto osobní údaje poskytuje dobrovolně a bere na vědomí, že součástí služeb Správce, které Správce Uživateli poskytuje, je vyhledání všech Uživateli vyhovujících (dle parametrů - cena, typ nemovitosti, lokalita atd.) nemovitostí. Správce za tímto účelem provozuje aplikace Hlídací pes a newsletter. Tyto služby je možné z každého zaslaného emailu odhlásit. Souhlas se zpracováním osobních údajů Uživatel poskytuje Správci na dobu neurčitou s tím, že svůj udělený souhlas může Uživatel kdykoliv na drese správce info@realitymix.cz odvolat. Správce garantuje Uživateli i další práva uvedené v ustanovení §11 a §21 zákoba č. 101/200 Sb. Ve znění pozdějších předpisů.
Více informací o zpracování údajů získáte zde (realitymix.cz/zasady-ochrany-osobnich-udaju)