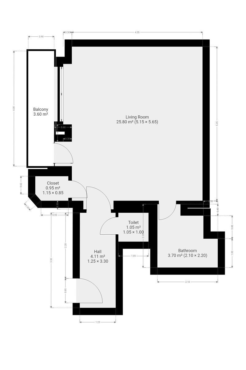
K dlouhodobému podnájmu nabízíme krásný byt o dispozici 1+kk v klidné lokalitě Praha 4 - Podolí. Byt o celkové výměře 33 m² se nachází v přízemí zděného bytového domu. K bytu přísluší balkon a sklep a součástí bytu je také praktická komora.
Byt se nabízí nevybavený. Kuchyňský kout disponuje lednicí s mrazákem, pračkou a elektrickým sporákem. Obývací část je zařízena patrem na spaní. V koupelně je vana, umyvadlo a zrcadlo. Toaleta je umístěna samostatně.
V okolí domu najdeme restaurace a kavárny, prodejny potravin, lékárnu, plavecký stadion Podolí, sportovní areál Žluté lázně, parkově upravený a veřejně přístupný areál Vyšehrad atd. Pár minut chůze od domu je vzdálena autobusová zastávka Doliny a tramvajová zastávka Podolská vodárna a v docházkové vzdálenosti je stanice metra C - Pražského povstání.
Byt je volný k nastěhování ihned.
Energetická třída: G (průkaz nedodán).
Cena:
14 900 Kč / (za měsíc)
Poznámka:
vratná jistota, náklady na bydlení 3 099 Kč, poplatek za podnájem
Dispozice/podlahová plocha:
1+kk/33 m²
Číslo zakázky:
REALITYMIX-6913
Podrobné informace
Dispozice bytu:1+kk
Číslo podlaží v domě:1
Počet podlaží objektu:6
Celková podlahová plocha:33 m²
Druh objektu:cihlová
Stav objektu:velmi dobrý
Vlastnictví:osobní
Umístění objektu:klidná část obce
Doprava:vlak, dálnice, silnice, MHD, autobus
Občanská vybavenost:Škola, Školka, Zdravotnická zařízení, Pošta, Supermarket, Kompletní síť obchodů a služeb
Uživatel serveru RealityMIX.cz (dále jen „Server“) dostupného na internetové adrese (URL) https://www.realitymix.cz, který provozuje společnost DALTEN media s.r.o., se sídlem Na Harfě 916/9a, Praha 9, 190 00, IČO: 271 35 306 (dále jen „Správce“) jako provozovateli tohoto Serveru uděluje svůj výslovný souhlas v souladu s ustanovením § 5 zákona č. 101/2000 Sb. O ochraně osobních údajů a o změně některých zákonů, v platném znění (dále jen „zákon o ochraně osobních údajů“), se zpracováním uživatelem poskytnutých osobních údajů a dalších dat.
Uživatel poskytuje Správci osobní údaje v rozsahu: jméno, příjmení, e-mailová adresa, telefonický kontakt a další data, a to z důvodu projeveného zájmu o nemovitost, kde prostřednictvím služby Serveru Správce osloví Uživatel inzerenta uvedeného v detailu
nemovitosti - Ideální nájemce (IČ 29300631) se zájmem o jeho služby.
Uživatel tyto osobní údaje poskytuje dobrovolně a bere na vědomí, že součástí služeb Správce, které Správce Uživateli poskytuje, je vyhledání všech Uživateli vyhovujících (dle parametrů - cena, typ nemovitosti, lokalita atd.) nemovitostí. Správce za tímto účelem provozuje aplikace Hlídací pes a newsletter. Tyto služby je možné z každého zaslaného emailu odhlásit. Souhlas se zpracováním osobních údajů Uživatel poskytuje Správci na dobu neurčitou s tím, že svůj udělený souhlas může Uživatel kdykoliv na drese správce info@realitymix.cz odvolat. Správce garantuje Uživateli i další práva uvedené v ustanovení §11 a §21 zákoba č. 101/200 Sb. Ve znění pozdějších předpisů.
Více informací o zpracování údajů získáte zde (realitymix.cz/zasady-ochrany-osobnich-udaju)