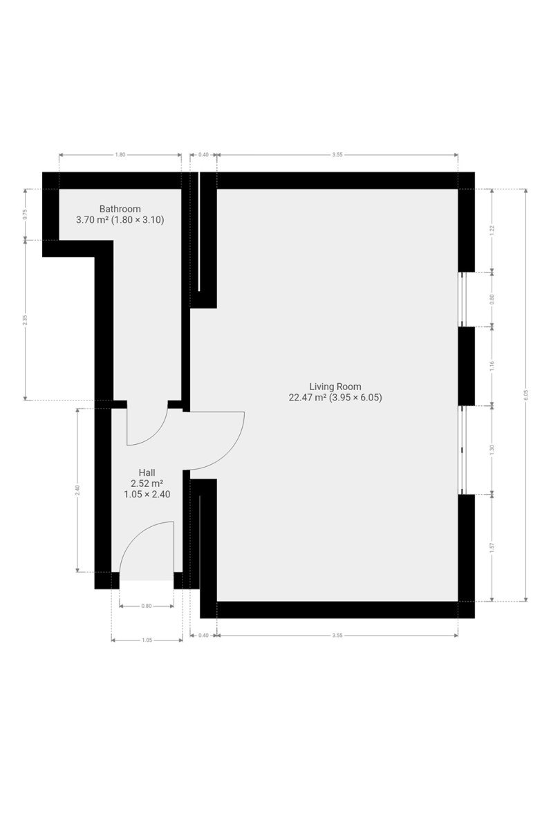
K dlouhodobému podnájmu nabízíme krásný byt o dispozici 1+kk v oblíbené lokalitě Praha 5 - Smíchov. Byt o celkové výměře 35 m2 se nachází v nejvyšším, 4. patře zděného bytového domu bez výtahu.
Byt se nabízí plně vybavený. Kuchyňský kout disponuje kuchyňskou linkou s dřezem, vestavěnou chladničkou, myčkou, mikrovlnnou troubou, elektrickou troubou, indukčním vařičem a digestoří. Obývací část je zařízena postelí s matrací, nočním stolkem, vestavěnými skříněmi, křeslem, lampou a jídelním stolem s židlemi. V koupelně je sprchový kout, umyvadlo, zrcadlo, koupelnová skříňka, pračka a WC. Ve vstupní chodbě najdeme botník.
V okolí domu najdeme restaurace a kavárny, obchodní centrum Nový Smíchov, poštu, polikliniku s lékárnou, oblíbené parky Zahrada Kinských, Petřínské sady a Sacré Coeur atd. Pár minut chůze od domu je vzdálena tramvajová zastávka Bertramka (3 minuty jízdy na stanici metra B - Anděl).
Majitel preferuje zájemce bez domácích mazlíčků.
Byt je volný k nastěhování od 1.7.2026.
Energetická třída: G (průkaz nedodán).
Cena:
17 200 Kč / (za měsíc)
Poznámka:
vratná jistota, náklady na bydlení 3 219 Kč, poplatek za podnájem
Dispozice/podlahová plocha:
1+kk/35 m²
Číslo zakázky:
REALITYMIX-6228
Podrobné informace
Dispozice bytu:1+kk
Číslo podlaží v domě:5
Počet podlaží objektu:5
Celková podlahová plocha:35 m²
Druh objektu:cihlová
Stav objektu:velmi dobrý
Vlastnictví:osobní
Vybaveno:ano
Umístění objektu:klidná část obce
Doprava:vlak, dálnice, silnice, MHD, autobus
Občanská vybavenost:Škola, Školka, Zdravotnická zařízení, Pošta, Supermarket, Kompletní síť obchodů a služeb
Uživatel serveru RealityMIX.cz (dále jen „Server“) dostupného na internetové adrese (URL) https://www.realitymix.cz, který provozuje společnost DALTEN media s.r.o., se sídlem Na Harfě 916/9a, Praha 9, 190 00, IČO: 271 35 306 (dále jen „Správce“) jako provozovateli tohoto Serveru uděluje svůj výslovný souhlas v souladu s ustanovením § 5 zákona č. 101/2000 Sb. O ochraně osobních údajů a o změně některých zákonů, v platném znění (dále jen „zákon o ochraně osobních údajů“), se zpracováním uživatelem poskytnutých osobních údajů a dalších dat.
Uživatel poskytuje Správci osobní údaje v rozsahu: jméno, příjmení, e-mailová adresa, telefonický kontakt a další data, a to z důvodu projeveného zájmu o nemovitost, kde prostřednictvím služby Serveru Správce osloví Uživatel inzerenta uvedeného v detailu
nemovitosti - Ideální nájemce (IČ 29300631) se zájmem o jeho služby.
Uživatel tyto osobní údaje poskytuje dobrovolně a bere na vědomí, že součástí služeb Správce, které Správce Uživateli poskytuje, je vyhledání všech Uživateli vyhovujících (dle parametrů - cena, typ nemovitosti, lokalita atd.) nemovitostí. Správce za tímto účelem provozuje aplikace Hlídací pes a newsletter. Tyto služby je možné z každého zaslaného emailu odhlásit. Souhlas se zpracováním osobních údajů Uživatel poskytuje Správci na dobu neurčitou s tím, že svůj udělený souhlas může Uživatel kdykoliv na drese správce info@realitymix.cz odvolat. Správce garantuje Uživateli i další práva uvedené v ustanovení §11 a §21 zákoba č. 101/200 Sb. Ve znění pozdějších předpisů.
Více informací o zpracování údajů získáte zde (realitymix.cz/zasady-ochrany-osobnich-udaju)