Pronájem bytu 2+1, 39m2, Praha 9-Hloubětín, ul. Nademlejnská, nezařízený, metro B Hloubětín.
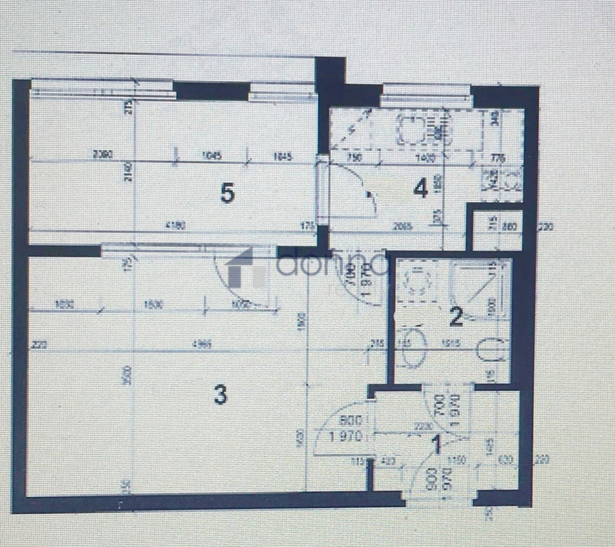
Pronájem pěkného bytu 2+1, plocha 39 m2, umístěný ve 3. patře (4.NP) novostavby s výtahem, v ul. Nademlejnská, Praha 9 - Hloubětín,
v blízkosti metra B.
Zajímavě propojený byt s výhledem se pronajímá nezařízený a je již připravený k nastěhování.
Byt se nachází v moderním bytovém domě a nabízí: samostatnou kuchyni s kuchyňskou linkou vč. lednice, 2 pokoje (jeden hlavní pokoj + další místnost je vedená jako zimní zahrada ale lze ji využít např. jako ložnici nebo pracovnu/ateliér s příjemným výhledem). Vstupní chodba je vybavena šatní skříní, v koupelně je nainstalovaný sprchový kout, dále toaleta, přípojka pro pračku, umyvadlo a topný žebřík. Díky velkému prosklení je byt pěkně prosvětlený. K bytu náleží prostorný sklep.
Možnost venkovního parkování přímo u domu.
Dopravní dostupnost – stanice metra "B" Hloubětín je cca 250 m, tramvajová zastávka kousek od domu.
Občanská vybavenost - obchody, restaurace, lékárna a další služby (OC Hloubětín), dvě stanice metrem se nachází OC Černý Most.
Lokalita: kousek od domu je Přírodní park a lesopark s Hořejším rybníkem, za domem vede cyklostezka a v okolí jsou také značené trasy pro pěší turistiku a in-line bruslaře.
K dispozici ihned.
Ideální pro 1 osobu nebo 2 osoby (pár).
Možnost dlouhodobého pronájmu.
Byt je nekuřácký.
Uživatel serveru RealityMIX.cz (dále jen „Server“) dostupného na internetové adrese (URL) https://www.realitymix.cz, který provozuje společnost DALTEN media s.r.o., se sídlem Na Harfě 916/9a, Praha 9, 190 00, IČO: 271 35 306 (dále jen „Správce“) jako provozovateli tohoto Serveru uděluje svůj výslovný souhlas v souladu s ustanovením § 5 zákona č. 101/2000 Sb. O ochraně osobních údajů a o změně některých zákonů, v platném znění (dále jen „zákon o ochraně osobních údajů“), se zpracováním uživatelem poskytnutých osobních údajů a dalších dat.
Uživatel poskytuje Správci osobní údaje v rozsahu: jméno, příjmení, e-mailová adresa, telefonický kontakt a další data, a to z důvodu projeveného zájmu o nemovitost, kde prostřednictvím služby Serveru Správce osloví Uživatel inzerenta uvedeného v detailu
nemovitosti - Realitní kancelář Donna s.r.o. (IČ 02518546) se zájmem o jeho služby.
Uživatel tyto osobní údaje poskytuje dobrovolně a bere na vědomí, že součástí služeb Správce, které Správce Uživateli poskytuje, je vyhledání všech Uživateli vyhovujících (dle parametrů - cena, typ nemovitosti, lokalita atd.) nemovitostí. Správce za tímto účelem provozuje aplikace Hlídací pes a newsletter. Tyto služby je možné z každého zaslaného emailu odhlásit. Souhlas se zpracováním osobních údajů Uživatel poskytuje Správci na dobu neurčitou s tím, že svůj udělený souhlas může Uživatel kdykoliv na drese správce info@realitymix.cz odvolat. Správce garantuje Uživateli i další práva uvedené v ustanovení §11 a §21 zákoba č. 101/200 Sb. Ve znění pozdějších předpisů.
Více informací o zpracování údajů získáte zde (realitymix.cz/zasady-ochrany-osobnich-udaju)