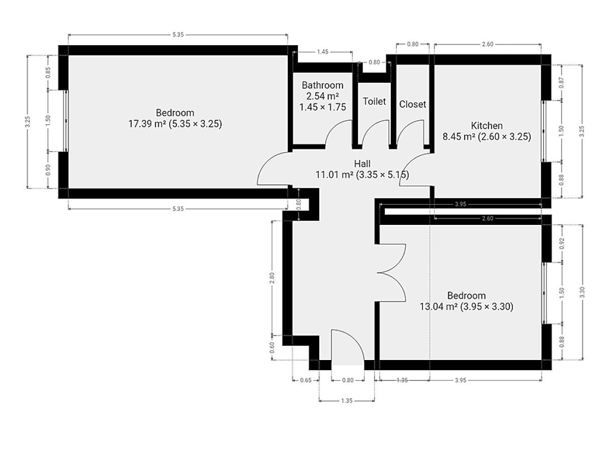
K dlouhodobému podnájmu nabízíme prakticky uspořádaný byt o dispozici 2+1, nacházející se v oblíbené lokalitě Praha - Nusle. Byt o podlahové ploše 52 m2 je umístěn v 5. podlaží panelového domu s výtahem.
Byt se nabízí nevybavený. V kuchyni najdeme elektrickou troubu a varnou desku s digestoří. Obě místnosti jsou nezařízené. V koupelně se nachází vana s umyvadlem, toaleta je umístěna samostatně. Výhodou je praktická komora/šatna, kde se nachází pračka.
Na podlahách je položeno linoleum, okna jsou plastová. Byt prošel celkovou výmalbou a úklidem.
Lokalita je velmi dobře dostupná - tramvajová zastávka Pod Jezerkou se nachází pouhé tři minuty pěšky.
V okolí domu se nachází potraviny, restaurace i dostatek zeleně k aktivnímu odpočinku.
Majitel preferuje zájemce bez domácích mazlíčků.
Byt je volný k nastěhování ihned.
Energetická třída G, jelikož nemáme k dispozici PENB.
Cena:
23 000 Kč / (za měsíc)
Poznámka:
vratná jistota, náklady na bydlení 4676 Kč + elektřina, poplatek za podnájem
Uživatel serveru RealityMIX.cz (dále jen „Server“) dostupného na internetové adrese (URL) https://www.realitymix.cz, který provozuje společnost DALTEN media s.r.o., se sídlem Na Harfě 916/9a, Praha 9, 190 00, IČO: 271 35 306 (dále jen „Správce“) jako provozovateli tohoto Serveru uděluje svůj výslovný souhlas v souladu s ustanovením § 5 zákona č. 101/2000 Sb. O ochraně osobních údajů a o změně některých zákonů, v platném znění (dále jen „zákon o ochraně osobních údajů“), se zpracováním uživatelem poskytnutých osobních údajů a dalších dat.
Uživatel poskytuje Správci osobní údaje v rozsahu: jméno, příjmení, e-mailová adresa, telefonický kontakt a další data, a to z důvodu projeveného zájmu o nemovitost, kde prostřednictvím služby Serveru Správce osloví Uživatel inzerenta uvedeného v detailu
nemovitosti - Ideální nájemce (IČ 29300631) se zájmem o jeho služby.
Uživatel tyto osobní údaje poskytuje dobrovolně a bere na vědomí, že součástí služeb Správce, které Správce Uživateli poskytuje, je vyhledání všech Uživateli vyhovujících (dle parametrů - cena, typ nemovitosti, lokalita atd.) nemovitostí. Správce za tímto účelem provozuje aplikace Hlídací pes a newsletter. Tyto služby je možné z každého zaslaného emailu odhlásit. Souhlas se zpracováním osobních údajů Uživatel poskytuje Správci na dobu neurčitou s tím, že svůj udělený souhlas může Uživatel kdykoliv na drese správce info@realitymix.cz odvolat. Správce garantuje Uživateli i další práva uvedené v ustanovení §11 a §21 zákoba č. 101/200 Sb. Ve znění pozdějších předpisů.
Více informací o zpracování údajů získáte zde (realitymix.cz/zasady-ochrany-osobnich-udaju)