Pronájem bytu 2+1, Na Petřinách, Břevnov, 20900 Kč/měs, 58 m2
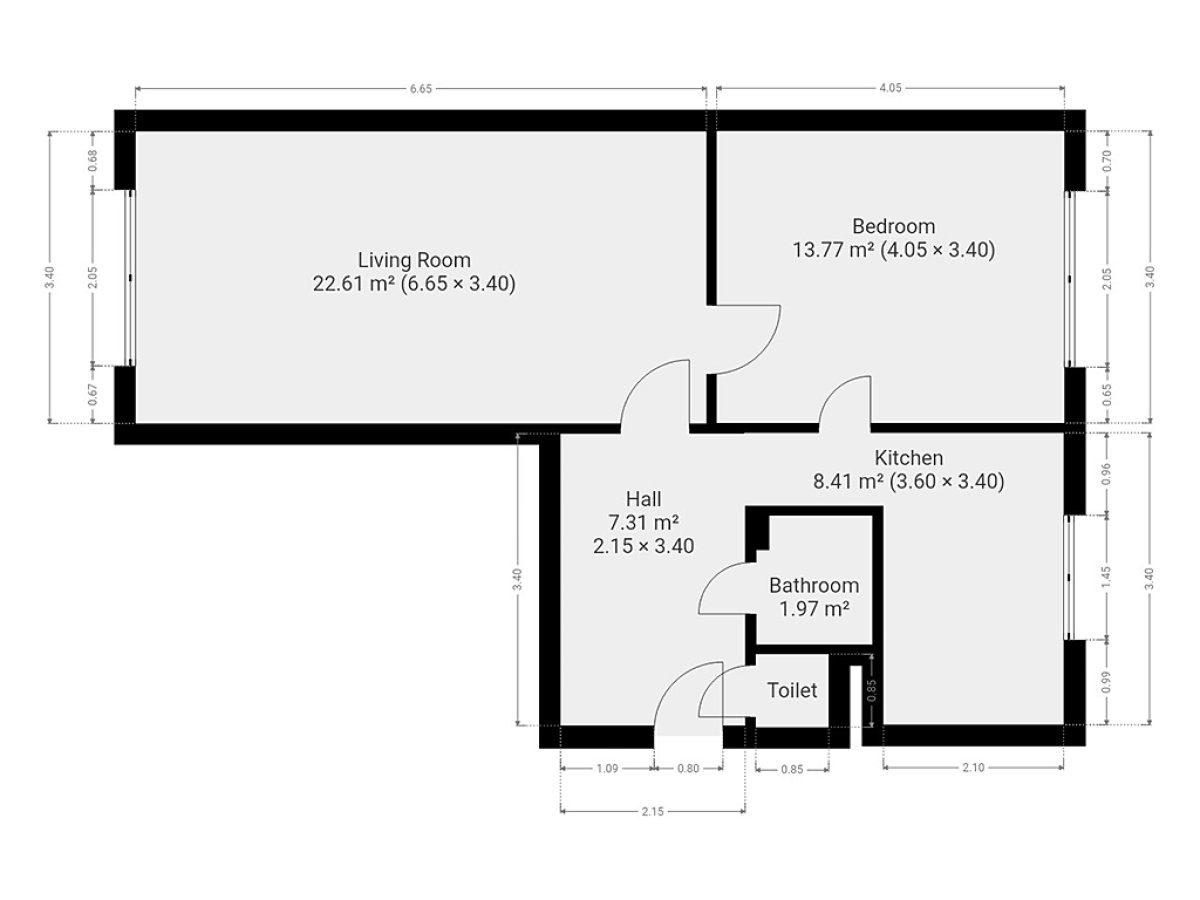
K dlouhodobému podnájmu nabízíme světlý byt o dispozici 2+1 v oblíbené rezidenční lokalitě Praha 6 – Břevnov, v ulici Na Petřinách. Byt o celkové ploše 58 m² se nachází v 1. patře udržovaného panelového domu bez výtahu. K bytu náleží sklepní kóje.
Byt je částečně vybavený a nabízí dostatek prostoru pro zařízení podle vlastních představ. Kuchyně je vybavena lednicí s mrazákem, myčkou, troubou, varnou deskou, mikrovlnnou troubou, digestoří a pračkou. Obývací pokoj je nezařízený, v ložnici je k dispozici šatní skříň.
V koupelně se nachází vana, umyvadlo se zrcadlem a koupelnová skříňka. Toaleta je umístěna samostatně. V předsíni je botník a vestavěná skříň s dostatkem úložného prostoru.
Velkou výhodou bytu je jeho poloha v klidné části Prahy 6 s množstvím zeleně. Lokalita Petřiny patří dlouhodobě mezi velmi vyhledávané díky příjemnému rezidenčnímu charakteru a výborné občanské vybavenosti. V docházkové vzdálenosti se nachází restaurace, kavárny, supermarkety, drogerie, lékárna, pošta i městská knihovna.
Blízké okolí nabízí také řadu možností pro procházky a sport – například Břevnovskou klášterní zahradu, Zámecký park Veleslavín, Oboru Hvězda nebo park Ladronka.
Dopravní dostupnost je velmi dobrá – v docházkové vzdálenosti se nachází stanice metra A – Petřiny i tramvajové zastávky, které zajišťují rychlé spojení do centra města.
Byt je vhodný zejména pro jednotlivce nebo pár, kteří hledají klidné bydlení v příjemné lokalitě s dostatkem zeleně a výbornou dostupností do centra.
Majitel preferuje zájemce bez domácích mazlíčků.
Byt je volný k nastěhování ihned.
Prohlídky jsou možné po domluvě. V případě zájmu nám napište krátkou zprávu o sobě a rádi se vám ozveme s termínem prohlídky.
Energetická náročnost budovy: třída D (méně úsporná).
Cena:
20 900 Kč / (za měsíc)
Poznámka:
vratná jistota, náklady na bydlení 5 269 Kč, poplatek za podnájem
Dispozice/podlahová plocha:
2+1/58 m²
Číslo zakázky:
REALITYMIX-7246
Podrobné informace
Dispozice bytu:2+1
Číslo podlaží v domě:2
Počet podlaží objektu:4
Celková podlahová plocha:58 m²
Druh objektu:panelová
Stav objektu:velmi dobrý
Vlastnictví:osobní
Umístění objektu:klidná část obce
Doprava:vlak, dálnice, silnice, MHD, autobus
Občanská vybavenost:Škola, Školka, Zdravotnická zařízení, Pošta, Supermarket, Kompletní síť obchodů a služeb
Uživatel serveru RealityMIX.cz (dále jen „Server“) dostupného na internetové adrese (URL) https://www.realitymix.cz, který provozuje společnost DALTEN media s.r.o., se sídlem Na Harfě 916/9a, Praha 9, 190 00, IČO: 271 35 306 (dále jen „Správce“) jako provozovateli tohoto Serveru uděluje svůj výslovný souhlas v souladu s ustanovením § 5 zákona č. 101/2000 Sb. O ochraně osobních údajů a o změně některých zákonů, v platném znění (dále jen „zákon o ochraně osobních údajů“), se zpracováním uživatelem poskytnutých osobních údajů a dalších dat.
Uživatel poskytuje Správci osobní údaje v rozsahu: jméno, příjmení, e-mailová adresa, telefonický kontakt a další data, a to z důvodu projeveného zájmu o nemovitost, kde prostřednictvím služby Serveru Správce osloví Uživatel inzerenta uvedeného v detailu
nemovitosti - Ideální nájemce (IČ 29300631) se zájmem o jeho služby.
Uživatel tyto osobní údaje poskytuje dobrovolně a bere na vědomí, že součástí služeb Správce, které Správce Uživateli poskytuje, je vyhledání všech Uživateli vyhovujících (dle parametrů - cena, typ nemovitosti, lokalita atd.) nemovitostí. Správce za tímto účelem provozuje aplikace Hlídací pes a newsletter. Tyto služby je možné z každého zaslaného emailu odhlásit. Souhlas se zpracováním osobních údajů Uživatel poskytuje Správci na dobu neurčitou s tím, že svůj udělený souhlas může Uživatel kdykoliv na drese správce info@realitymix.cz odvolat. Správce garantuje Uživateli i další práva uvedené v ustanovení §11 a §21 zákoba č. 101/200 Sb. Ve znění pozdějších předpisů.
Více informací o zpracování údajů získáte zde (realitymix.cz/zasady-ochrany-osobnich-udaju)