Pronájem bytu 2+1 s balkonem, Praha 9 - Hloubětín, ihned k nastěhování
Světlý a prakticky řešený byt k dlouhodobému pronájmu o dispozici 2+1 s vlastním balkonem, v klidné a vyhledávané lokalitě Praha 9 - Hloubětín.
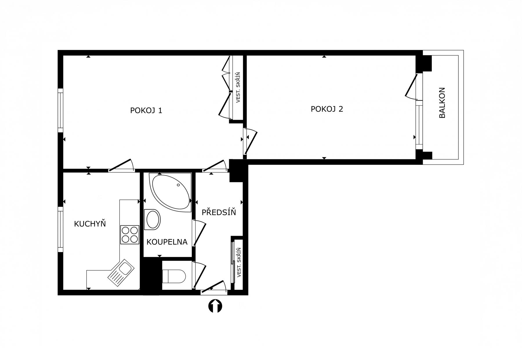
Byt se nachází ve 2. nadzemním podlaží udržovaného domu. Dispozice zahrnuje obývací pokoj, ložnici, kuchyň, koupelnu, samostatné WC a předsíň. K využítí je připraven také sklepní prostor v suterénu domu.
Nabídka pronájmu bytu je určena k obvyklému účelu bydlení, ideální pro jednu osobu, maximálně dvě dospělé osoby - pár, pouze dlouhodobý pronájem, nekuřák v bytě i celém domě. Pronajímatel si vyhrazuje právo výběru vhodného nájemce. Preferujeme nekuřáky a zájemce bez domácích mazlíčků (s ohledem na parketové podlahy).
Kuchyň je vybavena kuchyňskou linkou se spotřebiči elektrická trouba, plynová varná deska, digestoř, myčka nádobí a lednice s mrazákem. Koupelna disponuje prostornou rohovou vanou, která poskytuje dostatek komfortu pro relaxaci. Obývací pokoj a ložnice mají zachovalé parketové podlahy, ostatní části bytu jsou řešeny praktickou dlažbou.
Lokalita nabízí výbornou dopravní dostupnost v blízkosti se nachází metro B Hloubětín, tramvajové i autobusové spoje. V okolí je veškerá občanská vybavenost včetně obchodů, restaurací a zeleně pro volnočasové aktivity.
Nájem 18.500 Kč + 3.670 Kč zálohy na služby (včetně zálohy na plyn a elektřinu). Celkem měsíční náklady při jedné osobě 22.170 Kč + 700 Kč další osoba.
Byt je připraven k okamžitému nastěhování.
Cena:
18 500 Kč / (za měsíc)
Poznámka:
3.670 Kč zálohy na služby (včetně zálohy na plyn a elektřinu)
Dispozice/podlahová plocha:
2+1/52 m²
Číslo zakázky:
REALITYMIX-0626P
Podrobné informace
Dispozice bytu:2+1
Číslo podlaží v domě:2
Počet podlaží objektu:4
Užitná plocha:52 m²
Celková podlahová plocha:52 m²
Druh objektu:cihlová
Stav objektu:velmi dobrý
Vlastnictví:osobní
Balkon:3 m²
Vybaveno:ano
Umístění objektu:klidná část obce
Doprava:MHD, autobus
Topení:Ústřední - dálkové
Energetická náročnost budovy:C - Úsporná
Energetický ukazatel podle vyhlášky:č. 78/2013 Sb.
Uživatel serveru RealityMIX.cz (dále jen „Server“) dostupného na internetové adrese (URL) https://www.realitymix.cz, který provozuje společnost DALTEN media s.r.o., se sídlem Na Harfě 916/9a, Praha 9, 190 00, IČO: 271 35 306 (dále jen „Správce“) jako provozovateli tohoto Serveru uděluje svůj výslovný souhlas v souladu s ustanovením § 5 zákona č. 101/2000 Sb. O ochraně osobních údajů a o změně některých zákonů, v platném znění (dále jen „zákon o ochraně osobních údajů“), se zpracováním uživatelem poskytnutých osobních údajů a dalších dat.
Uživatel poskytuje Správci osobní údaje v rozsahu: jméno, příjmení, e-mailová adresa, telefonický kontakt a další data, a to z důvodu projeveného zájmu o nemovitost, kde prostřednictvím služby Serveru Správce osloví Uživatel inzerenta uvedeného v detailu
nemovitosti - Bohemia reality (IČ 70548714) se zájmem o jeho služby.
Uživatel tyto osobní údaje poskytuje dobrovolně a bere na vědomí, že součástí služeb Správce, které Správce Uživateli poskytuje, je vyhledání všech Uživateli vyhovujících (dle parametrů - cena, typ nemovitosti, lokalita atd.) nemovitostí. Správce za tímto účelem provozuje aplikace Hlídací pes a newsletter. Tyto služby je možné z každého zaslaného emailu odhlásit. Souhlas se zpracováním osobních údajů Uživatel poskytuje Správci na dobu neurčitou s tím, že svůj udělený souhlas může Uživatel kdykoliv na drese správce info@realitymix.cz odvolat. Správce garantuje Uživateli i další práva uvedené v ustanovení §11 a §21 zákoba č. 101/200 Sb. Ve znění pozdějších předpisů.
Více informací o zpracování údajů získáte zde (realitymix.cz/zasady-ochrany-osobnich-udaju)