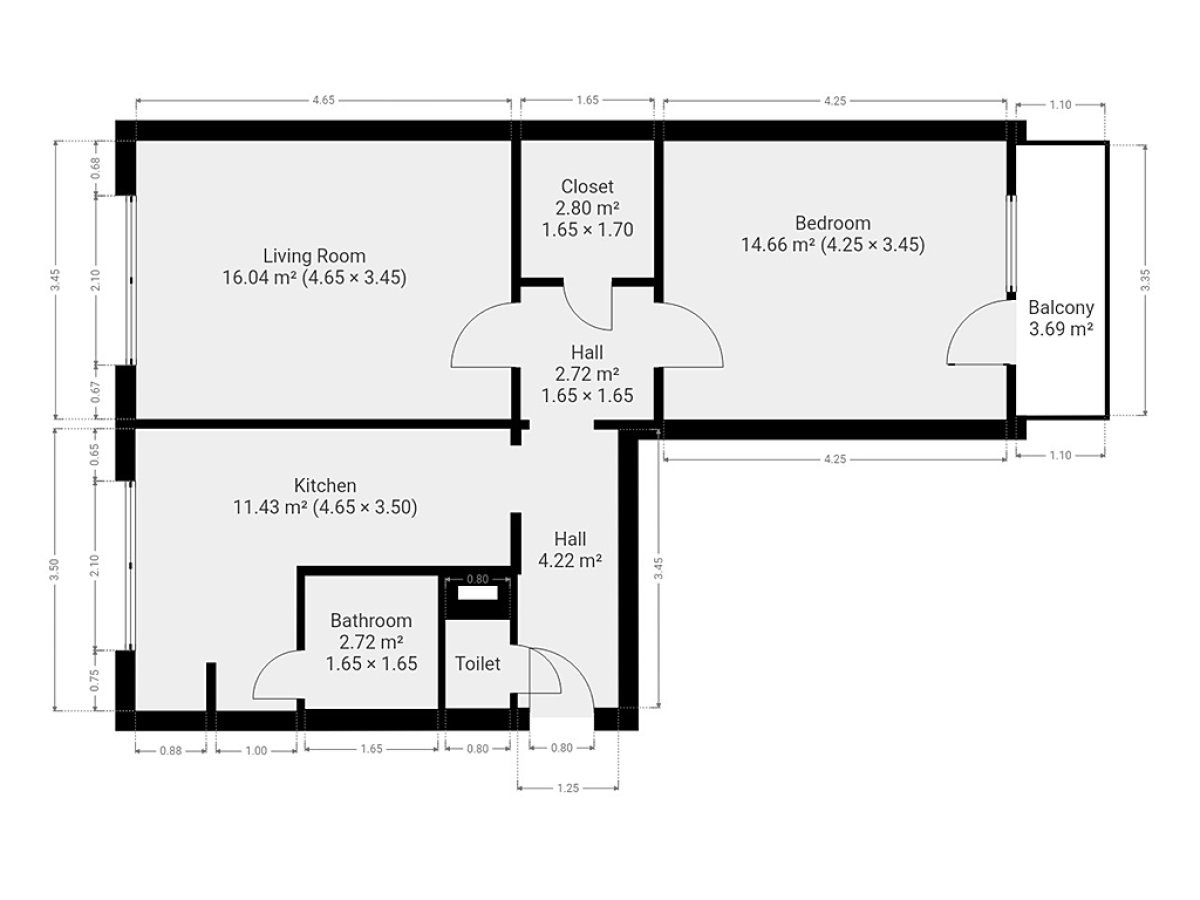
Nabízíme k dlouhodobému podnájmu útulný a světlý byt o dispozici 2+1 s výměrou 61 m², který se nachází v 6. patře udržovaného panelového domu s výtahem. K bytu náleží balkon a také praktický sklep.
Byt je pronajímán nezařízený, což dává novému podnájemníkovi možnost přizpůsobit si interiér dle vlastního vkusu.
Kuchyňská linka je vybavena lednicí s mrazákem, elektrickou troubou, plynovou varnou deskou, digestoří a jídelním koutem. Obývací pokoj nabízí světlý a prostorný interiér, doplněný moderním křeslem a menším stolkem. Další samostatný pokoj je vhodný například jako ložnice. Koupelna disponuje sprchovým koutem, umyvadlem a pračkou, toaleta je řešena odděleně.
Součástí bytu je také menší místnost, kterou lze využít jako šatnu či úložný prostor.
V bezprostředním okolí domu je kompletní občanská vybavenost – obchodní centrum Letňany, supermarket Lidl, školy a školky, poliklinika, restaurace, kavárny i dětská hřiště. K odpočinku a volnočasovým aktivitám je ideální Lesopark Letňany, vzdálený jen několik minut chůze.
Dopravní dostupnost je výborná – v docházkové vzdálenosti se nachází stanice metra C – Letňany a několik autobusových zastávek.
Byt je k nastěhování od 1. 8. 2026.
Energetická třída: G (průkaz nedodán).
Cena:
22 500 Kč / (za měsíc)
Poznámka:
vratná jistota, náklady na bydlení 6337 Kč, poplatek za podnájem 29000 Kč
Dispozice/podlahová plocha:
2+1/61 m²
Číslo zakázky:
REALITYMIX-6738
Podrobné informace
Dispozice bytu:2+1
Číslo podlaží v domě:6
Počet podlaží objektu:8
Celková podlahová plocha:61 m²
Druh objektu:panelová
Stav objektu:velmi dobrý
Vlastnictví:družstevní
Umístění objektu:klidná část obce
Doprava:silnice, MHD, autobus
Občanská vybavenost:Škola, Školka, Zdravotnická zařízení, Pošta, Supermarket, Kompletní síť obchodů a služeb
Uživatel serveru RealityMIX.cz (dále jen „Server“) dostupného na internetové adrese (URL) https://www.realitymix.cz, který provozuje společnost DALTEN media s.r.o., se sídlem Na Harfě 916/9a, Praha 9, 190 00, IČO: 271 35 306 (dále jen „Správce“) jako provozovateli tohoto Serveru uděluje svůj výslovný souhlas v souladu s ustanovením § 5 zákona č. 101/2000 Sb. O ochraně osobních údajů a o změně některých zákonů, v platném znění (dále jen „zákon o ochraně osobních údajů“), se zpracováním uživatelem poskytnutých osobních údajů a dalších dat.
Uživatel poskytuje Správci osobní údaje v rozsahu: jméno, příjmení, e-mailová adresa, telefonický kontakt a další data, a to z důvodu projeveného zájmu o nemovitost, kde prostřednictvím služby Serveru Správce osloví Uživatel inzerenta uvedeného v detailu
nemovitosti - Ideální nájemce (IČ 29300631) se zájmem o jeho služby.
Uživatel tyto osobní údaje poskytuje dobrovolně a bere na vědomí, že součástí služeb Správce, které Správce Uživateli poskytuje, je vyhledání všech Uživateli vyhovujících (dle parametrů - cena, typ nemovitosti, lokalita atd.) nemovitostí. Správce za tímto účelem provozuje aplikace Hlídací pes a newsletter. Tyto služby je možné z každého zaslaného emailu odhlásit. Souhlas se zpracováním osobních údajů Uživatel poskytuje Správci na dobu neurčitou s tím, že svůj udělený souhlas může Uživatel kdykoliv na drese správce info@realitymix.cz odvolat. Správce garantuje Uživateli i další práva uvedené v ustanovení §11 a §21 zákoba č. 101/200 Sb. Ve znění pozdějších předpisů.
Více informací o zpracování údajů získáte zde (realitymix.cz/zasady-ochrany-osobnich-udaju)