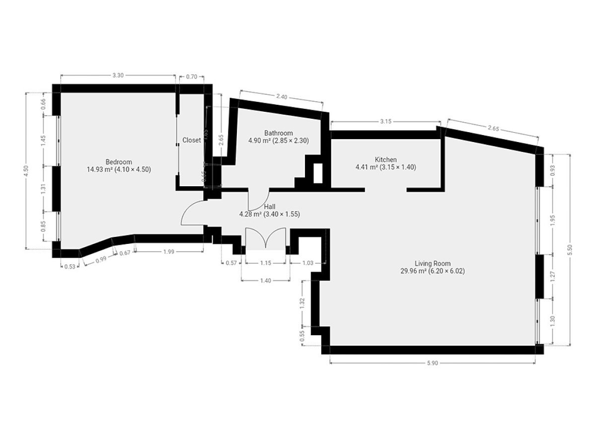
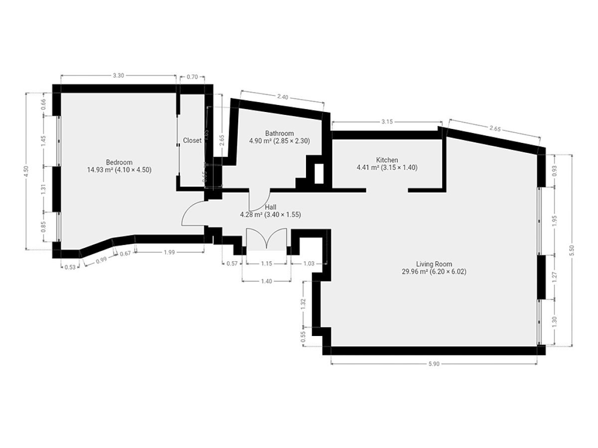
Pronájem bytu 2+1, Týnská ulička, Staré Město, 71 m2
Nabízíme k dlouhodobému podnájmu světlý a útulný byt 2+1 v prestižní lokalitě Praha 1 – Staré Město. Byt o velikosti 71 m² se nachází ve 4. patře udržovaného bytového domu s výtahem a součástí je také praktická sklepní kóje.
Byt je kompletně vybavený, takže se můžete pohodlně nastěhovat bez nutnosti dalšího zařizování. Kuchyň je vybavena lednicí s mrazákem, elektrickou troubou, mikrovlnnou troubou, sporákem a digestoří. V hlavní obytné místnosti najdete pohodlnou sedací soupravu, konferenční stolek, televizor a jídelní kout. Ložnice je zařízena manželskou postelí a dostatkem úložného prostoru. Koupelna nabízí sprchový kout, umyvadlo, koupelnovou skříňku, toaletu a pračku.
Lokalita nabízí kompletní občanskou vybavenost: obchody s potravinami, supermarket Albert, lékařskou péči, poštu, školy a školky, restaurace i kavárny. Pro odpočinek je ideální blízký Park na náměstí Jana Palacha. Výbornou dopravní dostupnost zajišťuje stanice metra A – Staroměstská a také tramvajové spoje v docházkové vzdálenosti.
Byt je k nastěhování od 1.7.2026.
Energetická třída: G (průkaz nedodán).
Cena:
29 000 Kč / (za měsíc)
Poznámka:
vratná jistota, zálohové platby 5046,-Kč poplatek za podnájem
Dispozice/podlahová plocha:
2+1/71 m²
Číslo zakázky:
REALITYMIX-6989
Podrobné informace
Dispozice bytu:2+1
Číslo podlaží v domě:4
Počet podlaží objektu:6
Celková podlahová plocha:71 m²
Druh objektu:cihlová
Stav objektu:velmi dobrý
Vlastnictví:osobní
Vybaveno:ano
Umístění objektu:klidná část obce
Doprava:silnice, MHD, autobus
Občanská vybavenost:Škola, Školka, Zdravotnická zařízení, Pošta, Supermarket, Kompletní síť obchodů a služeb
Uživatel serveru RealityMIX.cz (dále jen „Server“) dostupného na internetové adrese (URL) https://www.realitymix.cz, který provozuje společnost DALTEN media s.r.o., se sídlem Na Harfě 916/9a, Praha 9, 190 00, IČO: 271 35 306 (dále jen „Správce“) jako provozovateli tohoto Serveru uděluje svůj výslovný souhlas v souladu s ustanovením § 5 zákona č. 101/2000 Sb. O ochraně osobních údajů a o změně některých zákonů, v platném znění (dále jen „zákon o ochraně osobních údajů“), se zpracováním uživatelem poskytnutých osobních údajů a dalších dat.
Uživatel poskytuje Správci osobní údaje v rozsahu: jméno, příjmení, e-mailová adresa, telefonický kontakt a další data, a to z důvodu projeveného zájmu o nemovitost, kde prostřednictvím služby Serveru Správce osloví Uživatel inzerenta uvedeného v detailu
nemovitosti - Ideální nájemce (IČ 29300631) se zájmem o jeho služby.
Uživatel tyto osobní údaje poskytuje dobrovolně a bere na vědomí, že součástí služeb Správce, které Správce Uživateli poskytuje, je vyhledání všech Uživateli vyhovujících (dle parametrů - cena, typ nemovitosti, lokalita atd.) nemovitostí. Správce za tímto účelem provozuje aplikace Hlídací pes a newsletter. Tyto služby je možné z každého zaslaného emailu odhlásit. Souhlas se zpracováním osobních údajů Uživatel poskytuje Správci na dobu neurčitou s tím, že svůj udělený souhlas může Uživatel kdykoliv na drese správce info@realitymix.cz odvolat. Správce garantuje Uživateli i další práva uvedené v ustanovení §11 a §21 zákoba č. 101/200 Sb. Ve znění pozdějších předpisů.
Více informací o zpracování údajů získáte zde (realitymix.cz/zasady-ochrany-osobnich-udaju)