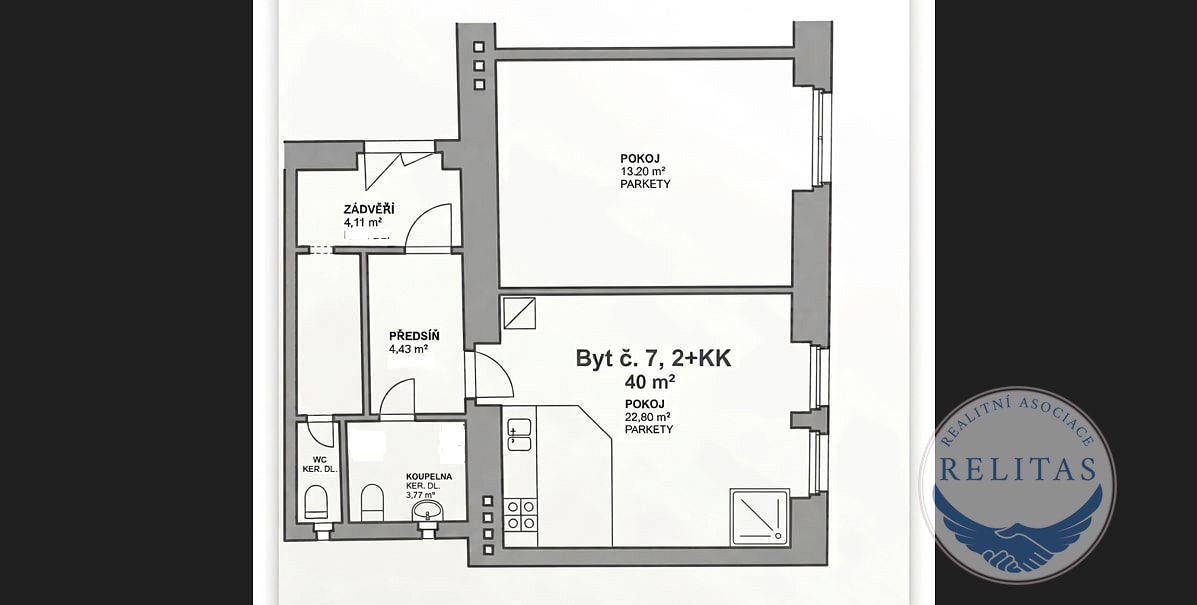
Pronájem bytu 2+kk, 44 m², Praha 8 – Libeň, ul. Světova
Nabízíme k pronájmu světlý a velmi příjemný byt o dispozici 2+kk a celkové ploše cca 44 m², situovaný ve zrekonstruovaném domě v ulici Světova, Praha 8 – Libeň.
Byt se nachází v domě, který prošel kompletní a citlivou rekonstrukcí, díky čemuž nabízí kombinaci moderního komfortu a zachovaného charakteru klasické pražské zástavby.
Dispozice bytu tvoří prostorný obývací pokoj s kuchyňským koutem, samostatná ložnice, koupelna se sprchovým koutem a toaletou a vstupní část. Dominantou bytu jsou krásné renovované parkety, vysoké stropy a dostatek denního světla, který bytu dodává vzdušnost a příjemnou atmosféru.
Kuchyňská linka je vybavena základními spotřebiči. Byt je ve velmi dobrém technickém stavu a připraven k okamžitému nastěhování.
Velkou výhodou je samotný dům – vlastněný jedním majitelem, s důrazem na dlouhodobou správu a kvalitní údržbu. Společné prostory jsou ve výborném stavu.
Lokalita Libně nabízí skvělou občanskou vybavenost i výbornou dopravní dostupnost. V pěší vzdálenosti se nachází tramvajové zastávky i stanice metra B – Palmovka. V okolí najdete množství kaváren, restaurací, obchodů i zeleně.
Cena:
21 000 Kč / (za měsíc)
Datum k nastěhování:
06.04.2026
Dispozice/podlahová plocha:
2+kk/44 m²
Číslo zakázky:
REALITYMIX-4750783
Podrobné informace
Dispozice bytu:2+kk
Číslo podlaží v domě:2
Počet podlaží objektu:7
Užitná plocha:44 m²
Celková podlahová plocha:44 m²
Druh objektu:cihlová
Stav objektu:velmi dobrý
Vlastnictví:osobní
Výška stropu:2.8 m
Umístění objektu:klidná část obce
Doprava:MHD
Telekomunikace:Telefon, Internet
Plyn:Plynovod
Topení:Lokální - plynové
Energetická náročnost budovy:D - Méně úsporná
Energetický ukazatel podle vyhlášky:č. 78/2013 Sb.
Uživatel serveru RealityMIX.cz (dále jen „Server“) dostupného na internetové adrese (URL) https://www.realitymix.cz, který provozuje společnost DALTEN media s.r.o., se sídlem Na Harfě 916/9a, Praha 9, 190 00, IČO: 271 35 306 (dále jen „Správce“) jako provozovateli tohoto Serveru uděluje svůj výslovný souhlas v souladu s ustanovením § 5 zákona č. 101/2000 Sb. O ochraně osobních údajů a o změně některých zákonů, v platném znění (dále jen „zákon o ochraně osobních údajů“), se zpracováním uživatelem poskytnutých osobních údajů a dalších dat.
Uživatel poskytuje Správci osobní údaje v rozsahu: jméno, příjmení, e-mailová adresa, telefonický kontakt a další data, a to z důvodu projeveného zájmu o nemovitost, kde prostřednictvím služby Serveru Správce osloví Uživatel inzerenta uvedeného v detailu
nemovitosti - RELITAS - realitní asociace s.r.o. (IČ 08053707) se zájmem o jeho služby.
Uživatel tyto osobní údaje poskytuje dobrovolně a bere na vědomí, že součástí služeb Správce, které Správce Uživateli poskytuje, je vyhledání všech Uživateli vyhovujících (dle parametrů - cena, typ nemovitosti, lokalita atd.) nemovitostí. Správce za tímto účelem provozuje aplikace Hlídací pes a newsletter. Tyto služby je možné z každého zaslaného emailu odhlásit. Souhlas se zpracováním osobních údajů Uživatel poskytuje Správci na dobu neurčitou s tím, že svůj udělený souhlas může Uživatel kdykoliv na drese správce info@realitymix.cz odvolat. Správce garantuje Uživateli i další práva uvedené v ustanovení §11 a §21 zákoba č. 101/200 Sb. Ve znění pozdějších předpisů.
Více informací o zpracování údajů získáte zde (realitymix.cz/zasady-ochrany-osobnich-udaju)