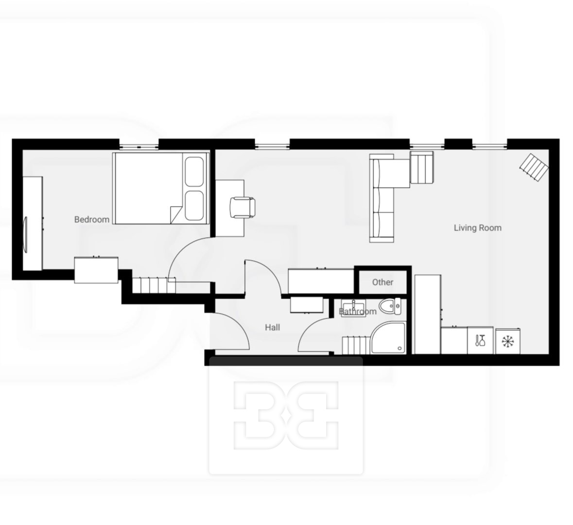
Nabízíme Vám k pronájmu byt 2+kk s obytnou plochou 51 m², situovaný v posledním patře cihlového domu s výtahem, v ulici Mladých Běchovic 2a. Byt se sestává ze vstupní chodby, koupelny se sprchovým koutem a toaletou, ložnice a obývacím prostorem propojeným s kuchyní vybavenou elektrickým sporákem, troubou, myčkou nádobí a lednicí. V obývacím pokoji najdeme pohovku, vestavnou skříň s pračkou a kancelářský kout. Ložnice nabízí další úložné prostory a postel. Cca 1 rok stará matrace může v bytě zůstat, nebo jí můžete vyhodit.
Měsíční nájem činí 21 000 Kč. Poplatky za služby ve výši 3 200 Kč - Elektrická energie se převádí na nájemníky. Vratná kauce. Provize RK 24 000 Kč + DPH.
Byt se nachází v bytovém komplexu 2 minuty chůze od vlakového nádraží Běchovice - město. 1 minutu chůze najdeme zastávku bus na černý most a do centra města.
Nechcete ztrácet čas? V případě zájmu Vám rád pošlu odkaz na virtuální prohlídku, abyste měli úplnou představu o nabízené nemovitosti.
Byt je spravován společností Bohemian Estates, která zajišťuje profesionální správu této nemovitosti. Nájemcům je k dispozici kontaktní osoba, která pomáhá s řešením všech běžných záležitostí spojených s nájmem – od administrativy až po zajištění oprav a údržby. V případě potřeby zajistíme prověřené dodavatele pro servisní zásahy či opravy, což nájemníkům usnadňuje řešení běžných situací spojených s užíváním bytu.
V případě zájmu o tuto nemovitost prosíme o uvedení základních informací (zda Vám vyhovuje počátek nájmu; počet osob, které by byt obývaly, zaměstnání, zda máte domácího mazlíčka).
Dle požadavků majitele musí mít nájemce rejstřík exekucí/trestů/insolvencí bez záznamu. Dlouhodobý pronájem vítán.
Uživatel serveru RealityMIX.cz (dále jen „Server“) dostupného na internetové adrese (URL) https://www.realitymix.cz, který provozuje společnost DALTEN media s.r.o., se sídlem Na Harfě 916/9a, Praha 9, 190 00, IČO: 271 35 306 (dále jen „Správce“) jako provozovateli tohoto Serveru uděluje svůj výslovný souhlas v souladu s ustanovením § 5 zákona č. 101/2000 Sb. O ochraně osobních údajů a o změně některých zákonů, v platném znění (dále jen „zákon o ochraně osobních údajů“), se zpracováním uživatelem poskytnutých osobních údajů a dalších dat.
Uživatel poskytuje Správci osobní údaje v rozsahu: jméno, příjmení, e-mailová adresa, telefonický kontakt a další data, a to z důvodu projeveného zájmu o nemovitost, kde prostřednictvím služby Serveru Správce osloví Uživatel inzerenta uvedeného v detailu
nemovitosti - Bohemian Estates International s. r. o. (IČ 27889394) se zájmem o jeho služby.
Uživatel tyto osobní údaje poskytuje dobrovolně a bere na vědomí, že součástí služeb Správce, které Správce Uživateli poskytuje, je vyhledání všech Uživateli vyhovujících (dle parametrů - cena, typ nemovitosti, lokalita atd.) nemovitostí. Správce za tímto účelem provozuje aplikace Hlídací pes a newsletter. Tyto služby je možné z každého zaslaného emailu odhlásit. Souhlas se zpracováním osobních údajů Uživatel poskytuje Správci na dobu neurčitou s tím, že svůj udělený souhlas může Uživatel kdykoliv na drese správce info@realitymix.cz odvolat. Správce garantuje Uživateli i další práva uvedené v ustanovení §11 a §21 zákoba č. 101/200 Sb. Ve znění pozdějších předpisů.
Více informací o zpracování údajů získáte zde (realitymix.cz/zasady-ochrany-osobnich-udaju)