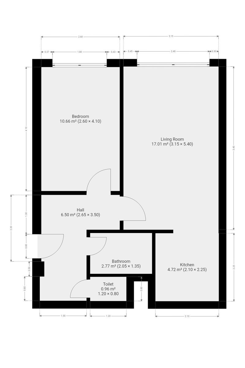
K dlouhodobému podnájmu nabízíme světlý byt o dispozici 2+kk v klidné lokalitě Praha 13 - Stodůlky. Byt o celkové výměře 43 m² se nachází v 5. patře udržovaného panelového domu s výtahem.
Skládá se z centrální vstupní chodby zařízené šatní skříní, samostatné koupelny vybavené sprchovým koutem, umyvadlem a pračkou, oddělené toalety a dvou pokojů - ložnice a obývacího pokoje, který je společný s kuchyňským koutem. Ten je vybavena malou lednicí, sklokeramickou varnou deskou, troubou a digestoří. Součástí kuchyně je také jídelní stůl.
Dále se byt nabízí nezařízený a vybavit si jej tak můžete plně dle svých představ a potřeb.
V okolí domu se nachází kompletní občanská vybavenost – nákupní centrum Galerie Nové Butovice, pošta, lékárna, zdravotní služby i možnosti sportovního vyžití.
Pro volný čas jsou ideální Centrální park a Přírodní park Košíře, které jsou vzdáleny jen pár minut chůze. Výbornou dopravní dostupnost zajišťuje stanice metra B – Hůrka a autobusové zastávky v blízkosti domu.
Zálohové platby již obsahují elektřinu a pojištění domácnosti.
Byt je k dispozici ihned.
Cena:
17 900 Kč / (za měsíc)
Poznámka:
vratná jistota, náklady na bydlení 4.400,-Kč, poplatek za podnájem
Dispozice/podlahová plocha:
2+kk/43 m²
Číslo zakázky:
REALITYMIX-7659
Podrobné informace
Bezbariérový byt:ano
Dispozice bytu:2+kk
Číslo podlaží v domě:5
Počet podlaží objektu:7
Celková podlahová plocha:43 m²
Druh objektu:panelová
Stav objektu:velmi dobrý
Vlastnictví:osobní
Doprava:vlak, dálnice, silnice, MHD, autobus
Občanská vybavenost:Škola, Školka, Zdravotnická zařízení, Pošta, Supermarket, Kompletní síť obchodů a služeb
Uživatel serveru RealityMIX.cz (dále jen „Server“) dostupného na internetové adrese (URL) https://www.realitymix.cz, který provozuje společnost DALTEN media s.r.o., se sídlem Na Harfě 916/9a, Praha 9, 190 00, IČO: 271 35 306 (dále jen „Správce“) jako provozovateli tohoto Serveru uděluje svůj výslovný souhlas v souladu s ustanovením § 5 zákona č. 101/2000 Sb. O ochraně osobních údajů a o změně některých zákonů, v platném znění (dále jen „zákon o ochraně osobních údajů“), se zpracováním uživatelem poskytnutých osobních údajů a dalších dat.
Uživatel poskytuje Správci osobní údaje v rozsahu: jméno, příjmení, e-mailová adresa, telefonický kontakt a další data, a to z důvodu projeveného zájmu o nemovitost, kde prostřednictvím služby Serveru Správce osloví Uživatel inzerenta uvedeného v detailu
nemovitosti - Ideální nájemce (IČ 29300631) se zájmem o jeho služby.
Uživatel tyto osobní údaje poskytuje dobrovolně a bere na vědomí, že součástí služeb Správce, které Správce Uživateli poskytuje, je vyhledání všech Uživateli vyhovujících (dle parametrů - cena, typ nemovitosti, lokalita atd.) nemovitostí. Správce za tímto účelem provozuje aplikace Hlídací pes a newsletter. Tyto služby je možné z každého zaslaného emailu odhlásit. Souhlas se zpracováním osobních údajů Uživatel poskytuje Správci na dobu neurčitou s tím, že svůj udělený souhlas může Uživatel kdykoliv na drese správce info@realitymix.cz odvolat. Správce garantuje Uživateli i další práva uvedené v ustanovení §11 a §21 zákoba č. 101/200 Sb. Ve znění pozdějších předpisů.
Více informací o zpracování údajů získáte zde (realitymix.cz/zasady-ochrany-osobnich-udaju)