Nabízíme k podnájmu světlý a velmi příjemný byt o dispozici 2+kk, který se nachází ve 4. patře domu s výtahem. Byt je situován v klidné a vyhledávané lokalitě Barrandov, konkrétně v ulici Devonská, která nabízí dobré možnosti parkování.
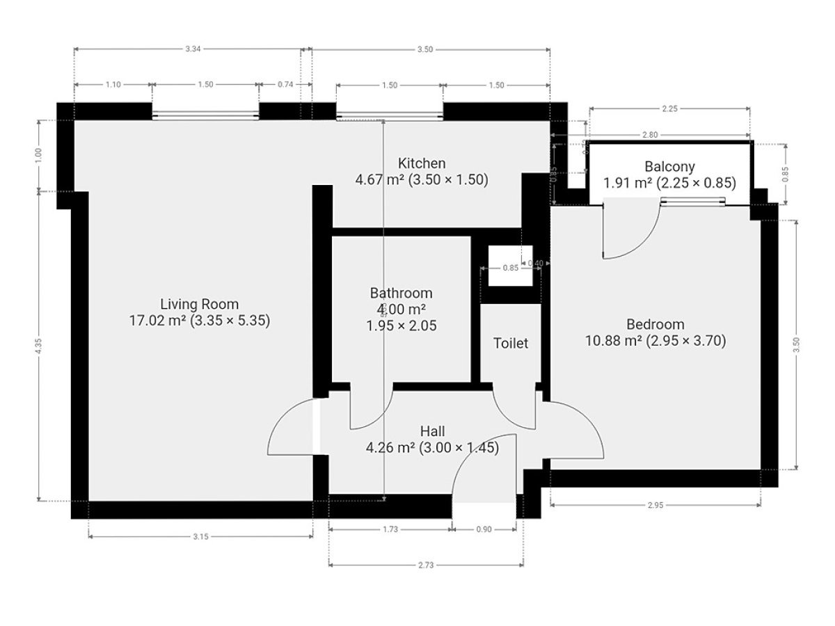
Byt je částečně vybavený a připravený k nastěhování. Kuchyň je zařízena spotřebiči – k dispozici je lednice, myčka nádobí, elektrická trouba, elektrická varná deska s digestoří.
Oba pokoje jsou nevybavené a nabízí tak možnost si byt zařídit dle vlastního vkusu a uvážení. Přístup na balkon je z jednoho pokoje. Koupelna je vybavena vanou a koupelnovou skříňkou, umístěnou nad umyvadlem. Toaleta se nachází odděleně. Na chodbě bytu se nachází praktický úložný prostor, který ocení každý nájemce.
Byt je velmi světlý. Je umístěn v klidné lokalitě, která je ideální pro ty, kteří si chtějí po práci odpočinout. V okolí se nachází kompletní občanská vybavenost – supermarkety, restaurace, lékárna, školy a školky. Výhodou je také blízkost přírodního parku Prokopské údolí a velmi dobrá dostupnost MHD (tramvajová zastávka Geologická)
Byt je k dispozici ihned.
Energetická třída: G (průkaz nedodán).
Cena:
20 000 Kč / (za měsíc)
Poznámka:
vratná jistota Kč, náklady na bydlení 5.850Kč, poplatek za podnájem
Uživatel serveru RealityMIX.cz (dále jen „Server“) dostupného na internetové adrese (URL) https://www.realitymix.cz, který provozuje společnost DALTEN media s.r.o., se sídlem Na Harfě 916/9a, Praha 9, 190 00, IČO: 271 35 306 (dále jen „Správce“) jako provozovateli tohoto Serveru uděluje svůj výslovný souhlas v souladu s ustanovením § 5 zákona č. 101/2000 Sb. O ochraně osobních údajů a o změně některých zákonů, v platném znění (dále jen „zákon o ochraně osobních údajů“), se zpracováním uživatelem poskytnutých osobních údajů a dalších dat.
Uživatel poskytuje Správci osobní údaje v rozsahu: jméno, příjmení, e-mailová adresa, telefonický kontakt a další data, a to z důvodu projeveného zájmu o nemovitost, kde prostřednictvím služby Serveru Správce osloví Uživatel inzerenta uvedeného v detailu
nemovitosti - Ideální nájemce (IČ 29300631) se zájmem o jeho služby.
Uživatel tyto osobní údaje poskytuje dobrovolně a bere na vědomí, že součástí služeb Správce, které Správce Uživateli poskytuje, je vyhledání všech Uživateli vyhovujících (dle parametrů - cena, typ nemovitosti, lokalita atd.) nemovitostí. Správce za tímto účelem provozuje aplikace Hlídací pes a newsletter. Tyto služby je možné z každého zaslaného emailu odhlásit. Souhlas se zpracováním osobních údajů Uživatel poskytuje Správci na dobu neurčitou s tím, že svůj udělený souhlas může Uživatel kdykoliv na drese správce info@realitymix.cz odvolat. Správce garantuje Uživateli i další práva uvedené v ustanovení §11 a §21 zákoba č. 101/200 Sb. Ve znění pozdějších předpisů.
Více informací o zpracování údajů získáte zde (realitymix.cz/zasady-ochrany-osobnich-udaju)