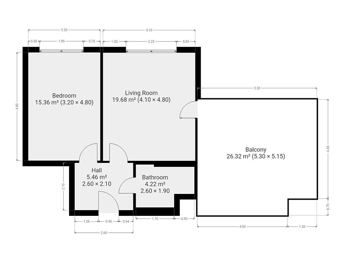
Nabízíme k dlouhodobému podnájmu zcela nový byt 2+kk ve velmi klidné lokalitě pražského Barrandova. Tento příjemný interiér o celkové ploše 52 m² se nachází v osmém (posledním) patře novostavby cihlového domu. Velkou výhodou bytu je samostatné garážové parkovací stání, sklep a velká terasa o výměře 26m2 s nádherným výhledem do okolí.
Byt se pronajímá jako nezařízený, což z něj dělá ideální „čisté plátno“ pro vaši kreativitu a styl. Srdcem domova je prostorný obývací pokoj, který díky své vzdušnosti snadno pojme jak pohodlnou relaxační zónu, tak jídelní kout. Kuchyňská linka je již plně vybavena kvalitními spotřebiči včetně sklokeramické varné desky, elektrické trouby, digestoře a lednice s mrazákem, takže se můžete okamžitě pustit do vaření. Soukromí nabízí samostatná ložnice a moderní koupelna, kde najdete sprchový kout, toaletu i pračku.
Lokalita vyniká výbornou dopravní dostupností na pražský Smíchov a kompletní občanskou vybaveností v docházkové vzdálenosti. Tramvajová zatsváka je jen pár kroku od domu. Přímo v lokalitě je také hned několik restaurací a kaváren. Pro sportovní a turistické vyžití můžete využít Prokopské a Dalejské údolí, které doslova za domem.
Byt je připraven k nastěhování a čeká na své první nájemníky, kteří ocení kombinaci městského komfortu a klidného sousedství.
Cena:
24 900 Kč / (za měsíc)
Poznámka:
vratná jistota, náklady na bydlení 4.000,-Kč vč. elektřiny, poplatek za podnájem
Dispozice/podlahová plocha:
2+kk/51 m²
Číslo zakázky:
REALITYMIX-7391
Podrobné informace
Bezbariérový byt:ano
Dispozice bytu:2+kk
Číslo podlaží v domě:8
Počet podlaží objektu:8
Celková podlahová plocha:51 m²
Druh objektu:cihlová
Stav objektu:novostavba
Vlastnictví:osobní
Doprava:vlak, dálnice, silnice, MHD, autobus
Občanská vybavenost:Škola, Školka, Zdravotnická zařízení, Pošta, Supermarket, Kompletní síť obchodů a služeb
Uživatel serveru RealityMIX.cz (dále jen „Server“) dostupného na internetové adrese (URL) https://www.realitymix.cz, který provozuje společnost DALTEN media s.r.o., se sídlem Na Harfě 916/9a, Praha 9, 190 00, IČO: 271 35 306 (dále jen „Správce“) jako provozovateli tohoto Serveru uděluje svůj výslovný souhlas v souladu s ustanovením § 5 zákona č. 101/2000 Sb. O ochraně osobních údajů a o změně některých zákonů, v platném znění (dále jen „zákon o ochraně osobních údajů“), se zpracováním uživatelem poskytnutých osobních údajů a dalších dat.
Uživatel poskytuje Správci osobní údaje v rozsahu: jméno, příjmení, e-mailová adresa, telefonický kontakt a další data, a to z důvodu projeveného zájmu o nemovitost, kde prostřednictvím služby Serveru Správce osloví Uživatel inzerenta uvedeného v detailu
nemovitosti - Ideální nájemce (IČ 29300631) se zájmem o jeho služby.
Uživatel tyto osobní údaje poskytuje dobrovolně a bere na vědomí, že součástí služeb Správce, které Správce Uživateli poskytuje, je vyhledání všech Uživateli vyhovujících (dle parametrů - cena, typ nemovitosti, lokalita atd.) nemovitostí. Správce za tímto účelem provozuje aplikace Hlídací pes a newsletter. Tyto služby je možné z každého zaslaného emailu odhlásit. Souhlas se zpracováním osobních údajů Uživatel poskytuje Správci na dobu neurčitou s tím, že svůj udělený souhlas může Uživatel kdykoliv na drese správce info@realitymix.cz odvolat. Správce garantuje Uživateli i další práva uvedené v ustanovení §11 a §21 zákoba č. 101/200 Sb. Ve znění pozdějších předpisů.
Více informací o zpracování údajů získáte zde (realitymix.cz/zasady-ochrany-osobnich-udaju)