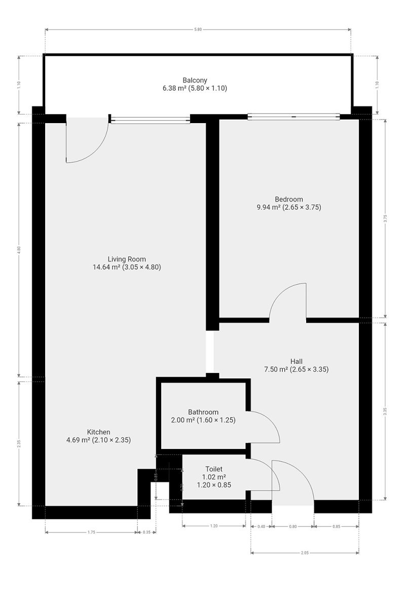
K dlouhodobému podnájmu nabízíme nezařízený byt o dispozici 2+kk, 43m2 s vlastní sklepní kójí a velkou zasklenou lodžií.
Byt se nachází ve 3. patře panelového domu s výtahem. Prošel částečnou rekonstrukcí a kompletní výměnou kuchyňské linky. Skládá se ze vstupní chodby s velkou vestavnou šatní skříní, ložnice, koupelny zařízené vanou, pračkou a umyvadlem a oddělené toalety. Obývací pokoj se vstupem na zasklenou lodžii je společný s kuchyňským koutem.
Kuchyně je vybavena lednicí, plynovým sporákem a digestoří.
Byt se nachází v lokalitě s veškerou občanskou vybaveností doslova u domu, jen pár kroků od stanice metra C - Střížkov
Přímo v lokalitě je také hned několik základních a mateřských škol, venkovní posilovny a dětská hřiště, menší obchody s potravinami, lékárny atd.
Zálohové platby už obsahují zálohy na elektřinu, plyn a pojištění domácnosti.
Byt je k dispozici od 1.5.2026.
Cena:
18 700 Kč / (za měsíc)
Poznámka:
vratná jistota, náklady na bydlení 6366,-Kč poplatek za podnájem
Uživatel serveru RealityMIX.cz (dále jen „Server“) dostupného na internetové adrese (URL) https://www.realitymix.cz, který provozuje společnost DALTEN media s.r.o., se sídlem Na Harfě 916/9a, Praha 9, 190 00, IČO: 271 35 306 (dále jen „Správce“) jako provozovateli tohoto Serveru uděluje svůj výslovný souhlas v souladu s ustanovením § 5 zákona č. 101/2000 Sb. O ochraně osobních údajů a o změně některých zákonů, v platném znění (dále jen „zákon o ochraně osobních údajů“), se zpracováním uživatelem poskytnutých osobních údajů a dalších dat.
Uživatel poskytuje Správci osobní údaje v rozsahu: jméno, příjmení, e-mailová adresa, telefonický kontakt a další data, a to z důvodu projeveného zájmu o nemovitost, kde prostřednictvím služby Serveru Správce osloví Uživatel inzerenta uvedeného v detailu
nemovitosti - Ideální nájemce (IČ 29300631) se zájmem o jeho služby.
Uživatel tyto osobní údaje poskytuje dobrovolně a bere na vědomí, že součástí služeb Správce, které Správce Uživateli poskytuje, je vyhledání všech Uživateli vyhovujících (dle parametrů - cena, typ nemovitosti, lokalita atd.) nemovitostí. Správce za tímto účelem provozuje aplikace Hlídací pes a newsletter. Tyto služby je možné z každého zaslaného emailu odhlásit. Souhlas se zpracováním osobních údajů Uživatel poskytuje Správci na dobu neurčitou s tím, že svůj udělený souhlas může Uživatel kdykoliv na drese správce info@realitymix.cz odvolat. Správce garantuje Uživateli i další práva uvedené v ustanovení §11 a §21 zákoba č. 101/200 Sb. Ve znění pozdějších předpisů.
Více informací o zpracování údajů získáte zde (realitymix.cz/zasady-ochrany-osobnich-udaju)