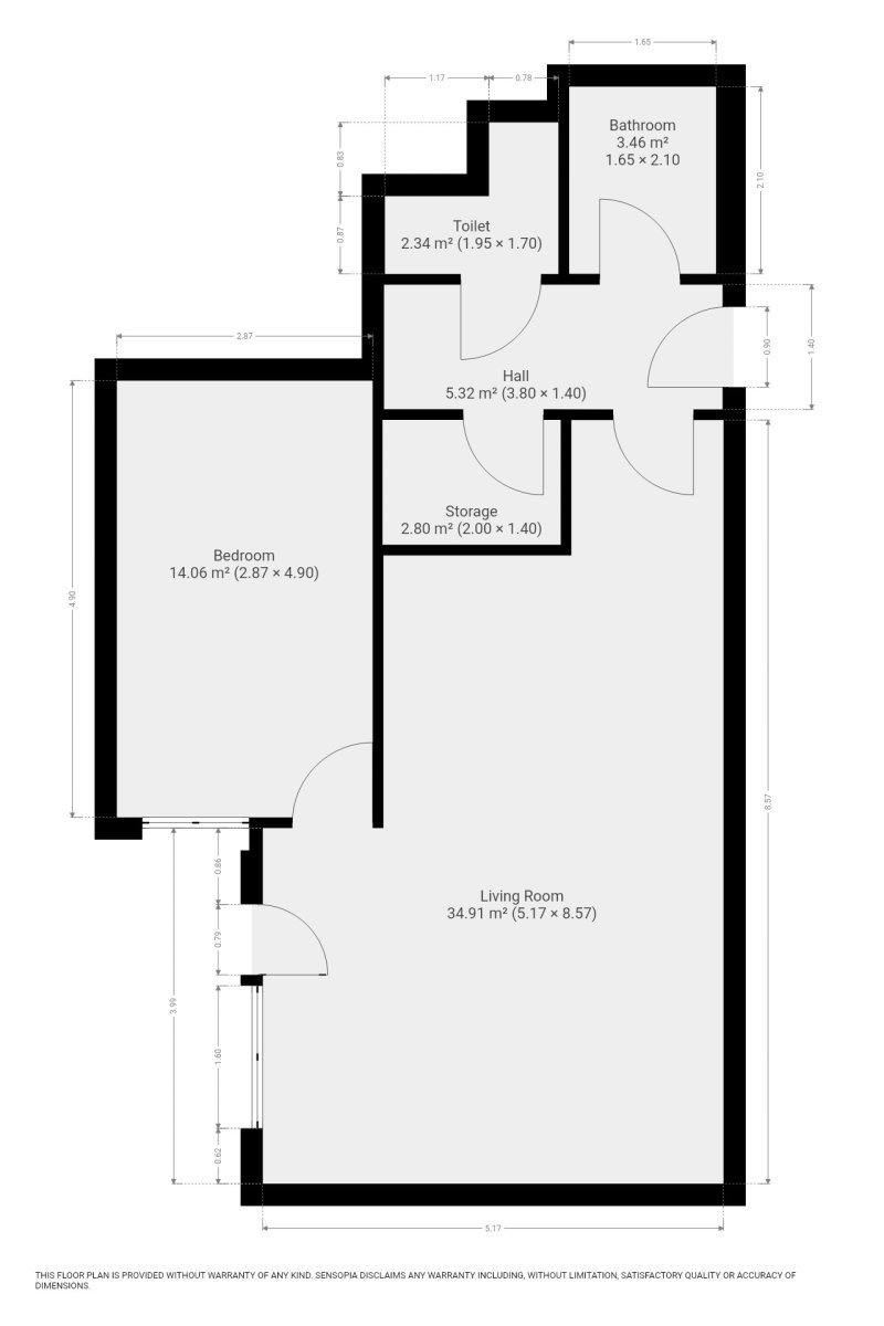
K dlouhodobému podnájmu vám nabízíme krásný, moderně zařízený byt o dispozici 2kk s podlahovou plochou 69m2 nacházející ve velmi žádané lokalitě pražského Žižkova - rezidence "Garden Towers".
Skládá se ze vstupní chodby zařízené šatní skříní, koupelny zařízené vanou a umyvadlem. Toaleta je umístěna samostatně, kde je také pračka. Přímo v bytě se nachází velmi prostorná komora.
Obývací pokoj společný s kuchyňským koutem je vybaven rohovou pohovkou, jídelním stolem a televizním stolkem vč. TV. Ložnice je vybavena postelí vč. matrace . Byt se nabízí zařízený tak, jak vidíte na fotografiích. Díky orientaci do vnitrobloku (na druhou stranu od rušné ulice Olšanská) je byt opravdu velmi klidný a tichý.
Byt se nachází v lokalitě s veškerou občanskou vybaveností doslova u domu a vynikající dopravní dostupností. Tramvajová zastávka "Olšanská" s páteřní tramvajovou linkou je přímo před domem. V domě je v provozu nonstop recepce. V bezprostřední blízkosti domu najdeme kompletní síť obchodů a služeb.
Byt je k dispozici od 1.6.2026.
Zálohové platby už obsahují zálohy na elektřinu a pojištění domácnosti.
Cena:
28 500 Kč / (za měsíc)
Poznámka:
vratná jistota, náklady na bydlení 5.500,-Kč, poplatek za podnájem
Dispozice/podlahová plocha:
2+kk/69 m²
Číslo zakázky:
REALITYMIX-6483
Podrobné informace
Bezbariérový byt:ano
Dispozice bytu:2+kk
Číslo podlaží v domě:1
Počet podlaží objektu:17
Celková podlahová plocha:69 m²
Druh objektu:cihlová
Stav objektu:velmi dobrý
Vlastnictví:osobní
Vybaveno:ano
Umístění objektu:klidná část obce
Doprava:vlak, dálnice, silnice, MHD, autobus
Občanská vybavenost:Škola, Školka, Zdravotnická zařízení, Pošta, Supermarket, Kompletní síť obchodů a služeb
Uživatel serveru RealityMIX.cz (dále jen „Server“) dostupného na internetové adrese (URL) https://www.realitymix.cz, který provozuje společnost DALTEN media s.r.o., se sídlem Na Harfě 916/9a, Praha 9, 190 00, IČO: 271 35 306 (dále jen „Správce“) jako provozovateli tohoto Serveru uděluje svůj výslovný souhlas v souladu s ustanovením § 5 zákona č. 101/2000 Sb. O ochraně osobních údajů a o změně některých zákonů, v platném znění (dále jen „zákon o ochraně osobních údajů“), se zpracováním uživatelem poskytnutých osobních údajů a dalších dat.
Uživatel poskytuje Správci osobní údaje v rozsahu: jméno, příjmení, e-mailová adresa, telefonický kontakt a další data, a to z důvodu projeveného zájmu o nemovitost, kde prostřednictvím služby Serveru Správce osloví Uživatel inzerenta uvedeného v detailu
nemovitosti - Ideální nájemce (IČ 29300631) se zájmem o jeho služby.
Uživatel tyto osobní údaje poskytuje dobrovolně a bere na vědomí, že součástí služeb Správce, které Správce Uživateli poskytuje, je vyhledání všech Uživateli vyhovujících (dle parametrů - cena, typ nemovitosti, lokalita atd.) nemovitostí. Správce za tímto účelem provozuje aplikace Hlídací pes a newsletter. Tyto služby je možné z každého zaslaného emailu odhlásit. Souhlas se zpracováním osobních údajů Uživatel poskytuje Správci na dobu neurčitou s tím, že svůj udělený souhlas může Uživatel kdykoliv na drese správce info@realitymix.cz odvolat. Správce garantuje Uživateli i další práva uvedené v ustanovení §11 a §21 zákoba č. 101/200 Sb. Ve znění pozdějších předpisů.
Více informací o zpracování údajů získáte zde (realitymix.cz/zasady-ochrany-osobnich-udaju)