Pronájem bytu 2+kk, Pod Kotlaskou, Libeň, 21900 Kč/měs, 48 m2
K dlouhodobému podnájmu nabízíme byt po rekonstrukci o dispozici 2+kk (prakticky řešený jako 2+1 díky oddělenému kuchyňskému prostoru), který se nachází v klidné ulici v Praze 8 – Libeň, jen pár minut od metra Palmovka.
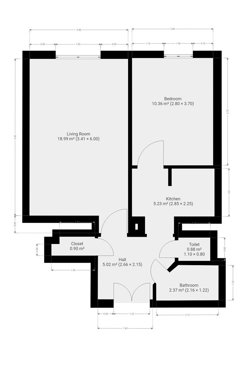
Byt o výměře 48 m² je situován v přízemí zděného domu. Dispozice tvoří dva neprůchozí pokoje (cca 19 m² a 10 m²), samostatný kuchyňský kout, koupelna se sprchovým koutem a oddělené WC. K dispozici je také praktická komora.
Byt se nabízí nezařízený, což dává novému nájemníkovi možnost přizpůsobit si prostor plně podle vlastních představ. Kuchyň je vybavena linkou a elektrickým sporákem, další spotřebiče (lednice, pračka, myčka apod.) si nájemník zajišťuje sám.
Díky dvěma neprůchozím pokojům je byt vhodný jak pro pár, tak i pro spolubydlení.
Lokalita nabízí výbornou dostupnost – metro B Palmovka i tramvajové spoje jsou v docházkové vzdálenosti. V okolí je kompletní občanská vybavenost včetně obchodů, kaváren, restaurací či kulturních míst.
Domácí mazlíčci jsou vítáni.
Byt je k dispozici ihned.
Cena:
21 900 Kč / (za měsíc)
Poznámka:
vratná jistota, náklady na bydlení 3 264 Kč, poplatek za podnájem
Dispozice/podlahová plocha:
2+kk/48 m²
Číslo zakázky:
REALITYMIX-7615
Podrobné informace
Dispozice bytu:2+kk
Číslo podlaží v domě:1
Počet podlaží objektu:8
Celková podlahová plocha:48 m²
Druh objektu:cihlová
Stav objektu:velmi dobrý
Vlastnictví:osobní
Umístění objektu:klidná část obce
Doprava:vlak, dálnice, silnice, MHD, autobus
Občanská vybavenost:Škola, Školka, Zdravotnická zařízení, Pošta, Supermarket, Kompletní síť obchodů a služeb
Uživatel serveru RealityMIX.cz (dále jen „Server“) dostupného na internetové adrese (URL) https://www.realitymix.cz, který provozuje společnost DALTEN media s.r.o., se sídlem Na Harfě 916/9a, Praha 9, 190 00, IČO: 271 35 306 (dále jen „Správce“) jako provozovateli tohoto Serveru uděluje svůj výslovný souhlas v souladu s ustanovením § 5 zákona č. 101/2000 Sb. O ochraně osobních údajů a o změně některých zákonů, v platném znění (dále jen „zákon o ochraně osobních údajů“), se zpracováním uživatelem poskytnutých osobních údajů a dalších dat.
Uživatel poskytuje Správci osobní údaje v rozsahu: jméno, příjmení, e-mailová adresa, telefonický kontakt a další data, a to z důvodu projeveného zájmu o nemovitost, kde prostřednictvím služby Serveru Správce osloví Uživatel inzerenta uvedeného v detailu
nemovitosti - Ideální nájemce (IČ 29300631) se zájmem o jeho služby.
Uživatel tyto osobní údaje poskytuje dobrovolně a bere na vědomí, že součástí služeb Správce, které Správce Uživateli poskytuje, je vyhledání všech Uživateli vyhovujících (dle parametrů - cena, typ nemovitosti, lokalita atd.) nemovitostí. Správce za tímto účelem provozuje aplikace Hlídací pes a newsletter. Tyto služby je možné z každého zaslaného emailu odhlásit. Souhlas se zpracováním osobních údajů Uživatel poskytuje Správci na dobu neurčitou s tím, že svůj udělený souhlas může Uživatel kdykoliv na drese správce info@realitymix.cz odvolat. Správce garantuje Uživateli i další práva uvedené v ustanovení §11 a §21 zákoba č. 101/200 Sb. Ve znění pozdějších předpisů.
Více informací o zpracování údajů získáte zde (realitymix.cz/zasady-ochrany-osobnich-udaju)