Pronájem bytu 2+kk s balkonem, Praha 8 - Libeň, ulice Primátorská
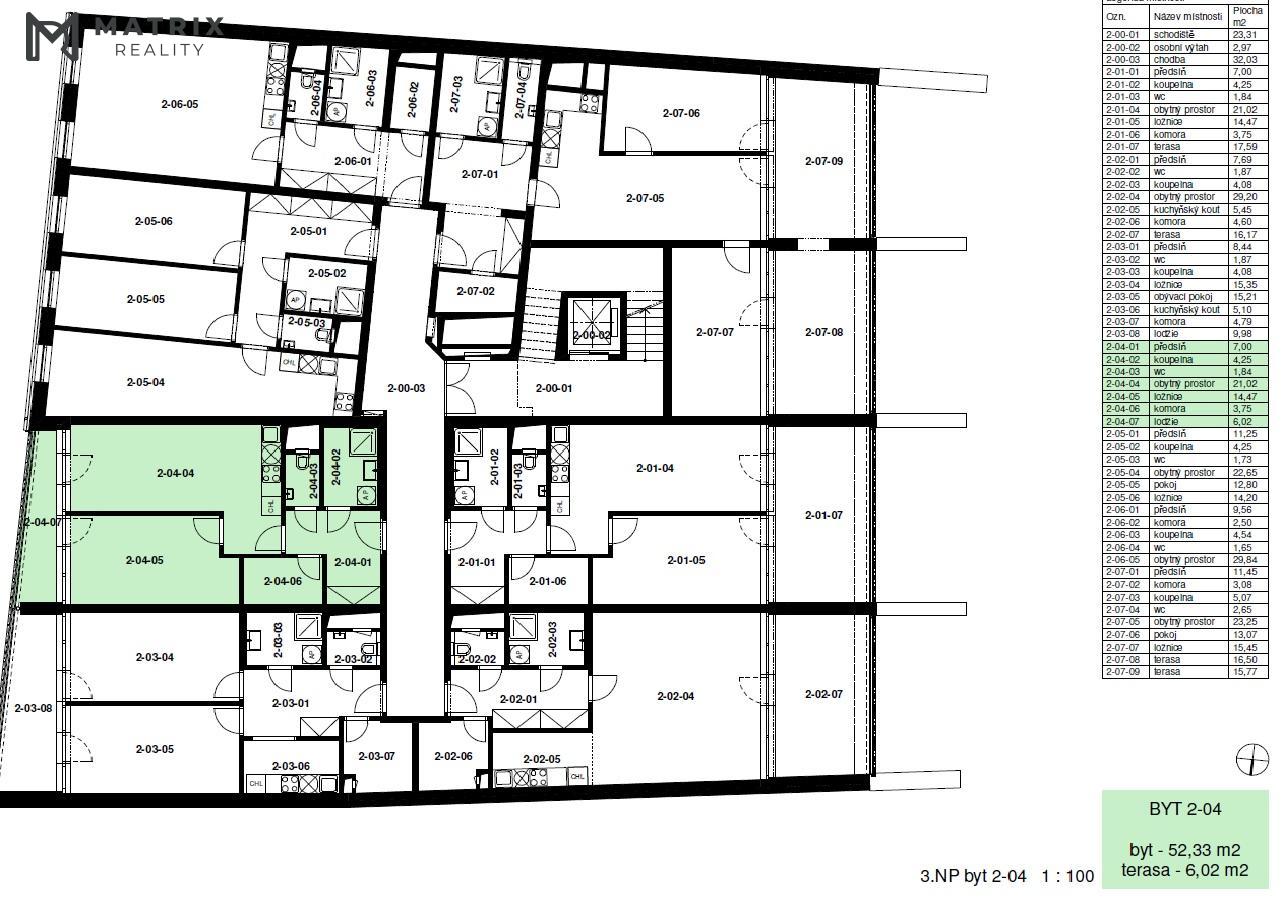
Zprostředkujeme Vám pronájem prostorného bytu v nově vybudované Rezidenci Primátorská , v blízkosti metra Palmovka a parku Thomayerovy sady. Byt je dispozičně řešený jako 2+kk o velikosti 52m2 , balkon 6m2, výtah , 2.NP , orientace bytu na jihozápadní stranu s výhledem do zeleně. Energeticky velmi úsporný projekt .
Byt je moderně vybavený - vest. skříní, odkládací stěna, designová koupelna se sprchovým koutem a toaletní skříňkou, samostané WC, prostorná šatna, kuchyňská linka vč. vest. spotřebičů - varná deska, el. troba, myčka, digestoř, na podlaze vinylová podlaha, předokenní žaluzie, v oknech trojskla. Velmi klidné místo s doboru dostupností do centra.
Možnost pronájmu parkovacího stání za 2.000,- Kč / měsíc.
Byt je k nastěhování od 15.3.2026. Neváhejte si domluvit prohlídku.
Uživatel serveru RealityMIX.cz (dále jen „Server“) dostupného na internetové adrese (URL) https://www.realitymix.cz, který provozuje společnost DALTEN media s.r.o., se sídlem Na Harfě 916/9a, Praha 9, 190 00, IČO: 271 35 306 (dále jen „Správce“) jako provozovateli tohoto Serveru uděluje svůj výslovný souhlas v souladu s ustanovením § 5 zákona č. 101/2000 Sb. O ochraně osobních údajů a o změně některých zákonů, v platném znění (dále jen „zákon o ochraně osobních údajů“), se zpracováním uživatelem poskytnutých osobních údajů a dalších dat.
Uživatel poskytuje Správci osobní údaje v rozsahu: jméno, příjmení, e-mailová adresa, telefonický kontakt a další data, a to z důvodu projeveného zájmu o nemovitost, kde prostřednictvím služby Serveru Správce osloví Uživatel inzerenta uvedeného v detailu
nemovitosti - Matrix Reality a.s. (IČ 28170750) se zájmem o jeho služby.
Uživatel tyto osobní údaje poskytuje dobrovolně a bere na vědomí, že součástí služeb Správce, které Správce Uživateli poskytuje, je vyhledání všech Uživateli vyhovujících (dle parametrů - cena, typ nemovitosti, lokalita atd.) nemovitostí. Správce za tímto účelem provozuje aplikace Hlídací pes a newsletter. Tyto služby je možné z každého zaslaného emailu odhlásit. Souhlas se zpracováním osobních údajů Uživatel poskytuje Správci na dobu neurčitou s tím, že svůj udělený souhlas může Uživatel kdykoliv na drese správce info@realitymix.cz odvolat. Správce garantuje Uživateli i další práva uvedené v ustanovení §11 a §21 zákoba č. 101/200 Sb. Ve znění pozdějších předpisů.
Více informací o zpracování údajů získáte zde (realitymix.cz/zasady-ochrany-osobnich-udaju)