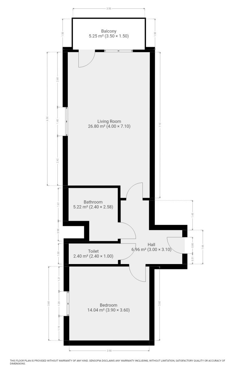
Nabízíme vám k dlouhodobému podnájmu výjimečně světlý a útulný byt o dispozici 2+kk, který se nachází v klidné a vyhledávané lokalitě pražských Vysočan. Tento moderní domov o velkorysých 59 m² je situován v 6. patře novostavby s výtahem a nabízí ideální kombinaci klidného bydlení s výbornou dostupností metropole. Velkým benefitem je nadstandardně prostorný balkon stvořený pro ranní kávu i večerní relax a také vlastní garážové stání, které vám ušetří starosti s parkováním.
Interiér je nabízen jako kompletně vybavený, takže se můžete rovnou nastěhovat bez řešení náročných nákupů nábytku. Srdcem bytu je obývací pokoj s přímým vstupem na balkon, zařízený pohodlným gaučem a dostatkem úložných prostor. Na něj plynule navazuje moderní kuchyňský kout, kterému nechybí žádný z důležitých spotřebičů – k dispozici máte lednici s mrazákem, varnou desku, elektrickou i mikrovlnnou troubu, myčku a praktický jídelní stůl. Ložnice je koncipována jako klidová zóna s komfortní manželskou postelí, zatímco koupelna disponuje vanou i pračkou se sušičkou. Velkou výhodou pro každodenní chod domácnosti je pak samostatná toaleta.
Lokalita Rezidence nad Rokytkou je vyhlášená svou skvělou občanskou vybaveností a blízkostí přírody. Jen pár kroků od domu najdete oblíbený Park Zahrádky a revitalizovanou stezku podél Rokytky, která je jako stvořená pro sport i odpočinek. V bezprostřední blízkosti máte supermarket Albert, OC Galerie Harfa, restaurace, kavárny i potřebnou lékařskou péči. Spojení s centrem města je díky tramvajové zastávce za rohem a blízké stanici metra B – Vysočanská otázkou několika minut.
Byt je připraven k okamžitému nastěhování a čeká na své nové nájemníky, kteří ocení kvalitu a komfort moderního bydlení.
Energetická třída: G (průkaz nedodán).
Cena:
28 500 Kč / (za měsíc)
Poznámka:
vratná jistota, náklady na bydlení 5028 Kč, poplatek za podnájem
Dispozice/podlahová plocha:
2+kk/59 m²
Číslo zakázky:
REALITYMIX-7314
Podrobné informace
Dispozice bytu:2+kk
Číslo podlaží v domě:6
Počet podlaží objektu:9
Celková podlahová plocha:59 m²
Druh objektu:panelová
Stav objektu:velmi dobrý
Vlastnictví:osobní
Vybaveno:ano
Umístění objektu:klidná část obce
Doprava:vlak, silnice, MHD, autobus
Občanská vybavenost:Škola, Školka, Zdravotnická zařízení, Pošta, Supermarket, Kompletní síť obchodů a služeb
Uživatel serveru RealityMIX.cz (dále jen „Server“) dostupného na internetové adrese (URL) https://www.realitymix.cz, který provozuje společnost DALTEN media s.r.o., se sídlem Na Harfě 916/9a, Praha 9, 190 00, IČO: 271 35 306 (dále jen „Správce“) jako provozovateli tohoto Serveru uděluje svůj výslovný souhlas v souladu s ustanovením § 5 zákona č. 101/2000 Sb. O ochraně osobních údajů a o změně některých zákonů, v platném znění (dále jen „zákon o ochraně osobních údajů“), se zpracováním uživatelem poskytnutých osobních údajů a dalších dat.
Uživatel poskytuje Správci osobní údaje v rozsahu: jméno, příjmení, e-mailová adresa, telefonický kontakt a další data, a to z důvodu projeveného zájmu o nemovitost, kde prostřednictvím služby Serveru Správce osloví Uživatel inzerenta uvedeného v detailu
nemovitosti - Ideální nájemce (IČ 29300631) se zájmem o jeho služby.
Uživatel tyto osobní údaje poskytuje dobrovolně a bere na vědomí, že součástí služeb Správce, které Správce Uživateli poskytuje, je vyhledání všech Uživateli vyhovujících (dle parametrů - cena, typ nemovitosti, lokalita atd.) nemovitostí. Správce za tímto účelem provozuje aplikace Hlídací pes a newsletter. Tyto služby je možné z každého zaslaného emailu odhlásit. Souhlas se zpracováním osobních údajů Uživatel poskytuje Správci na dobu neurčitou s tím, že svůj udělený souhlas může Uživatel kdykoliv na drese správce info@realitymix.cz odvolat. Správce garantuje Uživateli i další práva uvedené v ustanovení §11 a §21 zákoba č. 101/200 Sb. Ve znění pozdějších předpisů.
Více informací o zpracování údajů získáte zde (realitymix.cz/zasady-ochrany-osobnich-udaju)