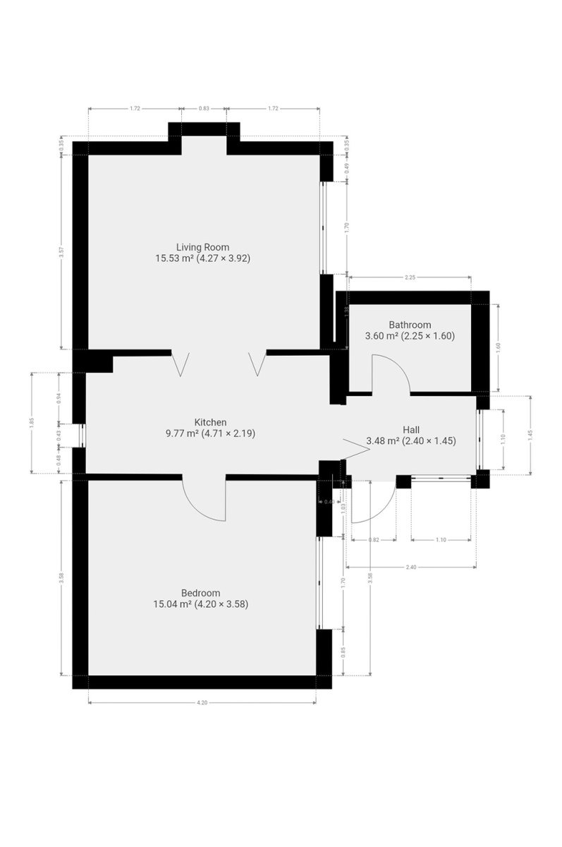
Pronájem bytu 2+kk, V rokli, Sedlec, 16000 Kč/měs, 46 m2
K dlouhodobému podnájmu nabízíme příjemný byt o dispozici 2+Kk v klidné lokalitě Praha Suchdol - Sedlec. Byt o podlahové ploše 46 m2 se nachází v 1. patře cihlového rodinného domu. K bytu patří i sdílená zahrada a prostorný sklep. K domu náleží i samostatná garáž, kterou je možné dopronajmout za 2.000 Kč/měsíc.
Byt se nabízí částečně vybavený. Kuchyně disponuje lednicí, myčkou, elektrickou troubou, sklokeramickou varnou deskou, mikrovlnnou troubou a digestoří. Obývací část je zařízena jídelním stolem s židlemi. Součástí ložnice je prostorná vestavěná skříň. V koupelně nalezneme sprchový kout a sanitu.
Ohřev vody a vytápění je na elektřinu.
Autobusová zastávka Sedlecký přívoz je vzdálena čtyři minuty chůze.
Majitel preferuje zájemce bez domácích mazlíčků.
Byt je volný k nastěhování od 1.2.2026.
Uvedena energetická kategorie G, jelikož nemáme k dispozici PENB.
Byt pronajímá Ideální nájemce - služba, se kterou budete bydlet bezstarostně a za férových podmínek. Když se něco přihodí, k dispozici jsou správci, kteří s vámi vše vyřeší. Pomůžeme s veškerou administrativou, s nastavením plateb a zajistíme vám speciální pojištění. Pojďte bydlet s námi!
Cena:
16 000 Kč / (za měsíc)
Poznámka:
vratná jistota, náklady na bydlení 7800 Kč, poplatek za podnájem
Uživatel serveru RealityMIX.cz (dále jen „Server“) dostupného na internetové adrese (URL) https://www.realitymix.cz, který provozuje společnost DALTEN media s.r.o., se sídlem Na Harfě 916/9a, Praha 9, 190 00, IČO: 271 35 306 (dále jen „Správce“) jako provozovateli tohoto Serveru uděluje svůj výslovný souhlas v souladu s ustanovením § 5 zákona č. 101/2000 Sb. O ochraně osobních údajů a o změně některých zákonů, v platném znění (dále jen „zákon o ochraně osobních údajů“), se zpracováním uživatelem poskytnutých osobních údajů a dalších dat.
Uživatel poskytuje Správci osobní údaje v rozsahu: jméno, příjmení, e-mailová adresa, telefonický kontakt a další data, a to z důvodu projeveného zájmu o nemovitost, kde prostřednictvím služby Serveru Správce osloví Uživatel inzerenta uvedeného v detailu
nemovitosti - Ideální nájemce (IČ 29300631) se zájmem o jeho služby.
Uživatel tyto osobní údaje poskytuje dobrovolně a bere na vědomí, že součástí služeb Správce, které Správce Uživateli poskytuje, je vyhledání všech Uživateli vyhovujících (dle parametrů - cena, typ nemovitosti, lokalita atd.) nemovitostí. Správce za tímto účelem provozuje aplikace Hlídací pes a newsletter. Tyto služby je možné z každého zaslaného emailu odhlásit. Souhlas se zpracováním osobních údajů Uživatel poskytuje Správci na dobu neurčitou s tím, že svůj udělený souhlas může Uživatel kdykoliv na drese správce info@realitymix.cz odvolat. Správce garantuje Uživateli i další práva uvedené v ustanovení §11 a §21 zákoba č. 101/200 Sb. Ve znění pozdějších předpisů.
Více informací o zpracování údajů získáte zde (realitymix.cz/zasady-ochrany-osobnich-udaju)