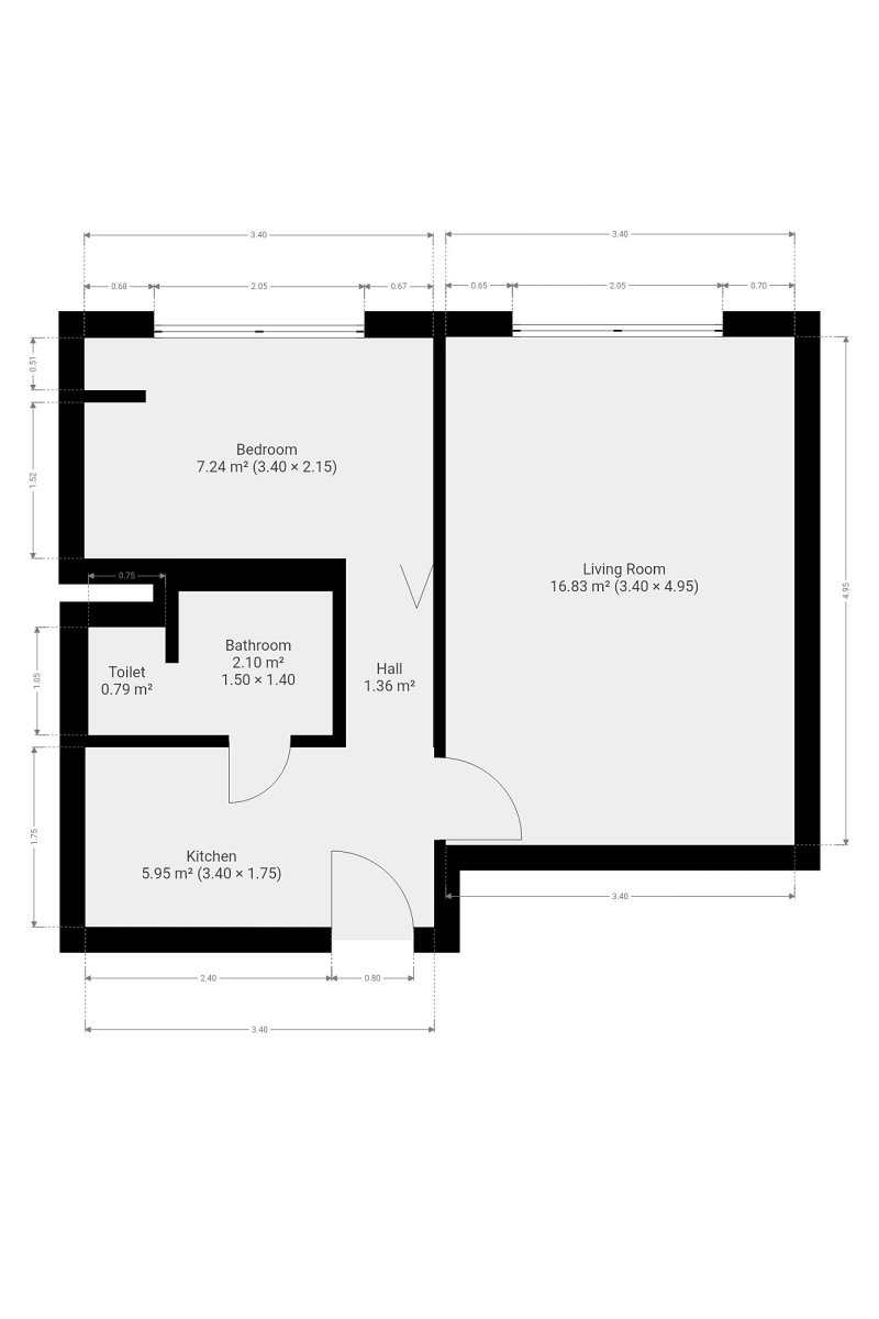
K dlouhodobému podnájmu nabízíme světlý a útulný byt 2+kk o velikosti 36 m², umístěný v 5. patře udržovaného panelového domu s výtahem v klidné části Prahy 10 – Záběhlic. Součástí pronájmu je také praktická sklepní kóje.
Byt je částečně vybavený, což umožňuje novému nájemci dotvořit si interiér dle vlastního vkusu. Kuchyňská linka je kompletně zařízena spotřebiči – lednicí s mrazákem, elektrickou a mikrovlnnou troubou, varnou deskou, digestoří a pračkou. Obývací pokoj nabízí pohodlnou sedací soupravu, konferenční stolek, dostatek úložného prostoru a příjemný jídelní kout. Samostatný pokoj je vybaven manželskou postelí, což poskytuje dostatek soukromí i komfortu. Koupelna je vybavena vanou, umyvadlem a toaletou.
Lokalita nabízí kompletní občanskou vybavenost – v docházkové vzdálenosti najdete Penny Market, restaurace, poštu, zdravotní péči i dětské hřiště. Pro relaxaci je ideální Park Malinová–Chrpová, který je vzdálen jen několik minut chůze. Výborné dopravní spojení zajišťují blízké zastávky autobusů.
Byt je k nastěhování od 1. 7. 2026.
Energetická třída: G (průkaz nedodán).
Cena:
18 900 Kč / (za měsíc)
Poznámka:
vratná jistota, náklady na bydlení 4 622,-Kč, poplatek za podnájem
Dispozice/podlahová plocha:
2+kk/36 m²
Číslo zakázky:
REALITYMIX-6985
Podrobné informace
Dispozice bytu:2+kk
Číslo podlaží v domě:5
Počet podlaží objektu:6
Celková podlahová plocha:36 m²
Druh objektu:panelová
Stav objektu:velmi dobrý
Vlastnictví:osobní
Umístění objektu:klidná část obce
Doprava:vlak, silnice, MHD, autobus
Občanská vybavenost:Škola, Školka, Zdravotnická zařízení, Pošta, Supermarket, Kompletní síť obchodů a služeb
Uživatel serveru RealityMIX.cz (dále jen „Server“) dostupného na internetové adrese (URL) https://www.realitymix.cz, který provozuje společnost DALTEN media s.r.o., se sídlem Na Harfě 916/9a, Praha 9, 190 00, IČO: 271 35 306 (dále jen „Správce“) jako provozovateli tohoto Serveru uděluje svůj výslovný souhlas v souladu s ustanovením § 5 zákona č. 101/2000 Sb. O ochraně osobních údajů a o změně některých zákonů, v platném znění (dále jen „zákon o ochraně osobních údajů“), se zpracováním uživatelem poskytnutých osobních údajů a dalších dat.
Uživatel poskytuje Správci osobní údaje v rozsahu: jméno, příjmení, e-mailová adresa, telefonický kontakt a další data, a to z důvodu projeveného zájmu o nemovitost, kde prostřednictvím služby Serveru Správce osloví Uživatel inzerenta uvedeného v detailu
nemovitosti - Ideální nájemce (IČ 29300631) se zájmem o jeho služby.
Uživatel tyto osobní údaje poskytuje dobrovolně a bere na vědomí, že součástí služeb Správce, které Správce Uživateli poskytuje, je vyhledání všech Uživateli vyhovujících (dle parametrů - cena, typ nemovitosti, lokalita atd.) nemovitostí. Správce za tímto účelem provozuje aplikace Hlídací pes a newsletter. Tyto služby je možné z každého zaslaného emailu odhlásit. Souhlas se zpracováním osobních údajů Uživatel poskytuje Správci na dobu neurčitou s tím, že svůj udělený souhlas může Uživatel kdykoliv na drese správce info@realitymix.cz odvolat. Správce garantuje Uživateli i další práva uvedené v ustanovení §11 a §21 zákoba č. 101/200 Sb. Ve znění pozdějších předpisů.
Více informací o zpracování údajů získáte zde (realitymix.cz/zasady-ochrany-osobnich-udaju)