© 1999–2026 DALTEN media s.r.o.
Holečkova, Praha 5, Smíchov
14 900 Kč (za měsíc)Holečkova, Praha 5, Smíchov
| Cena: | 14 900 Kč / (za měsíc) |
| Poznámka: | + poplatky 750 Kč/osoba + elektřina, jistota 30.000,-Kč |
| Datum k nastěhování: | 01.04.2026 |
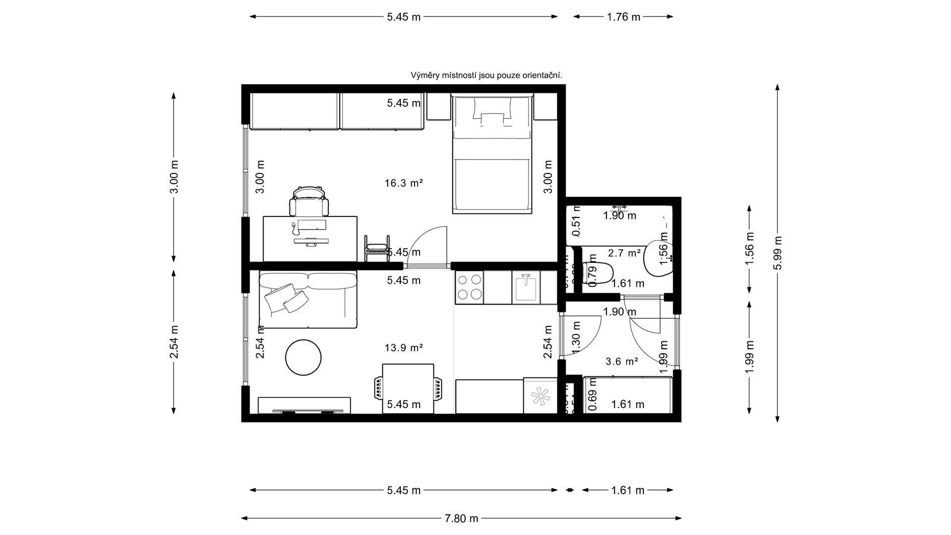
| Dispozice/podlahová plocha: | 2+kk/39 m² |
| Číslo zakázky: | REALITYMIX-N00646 |