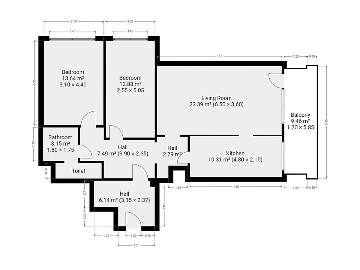
Pronájem bytu 3+1, Milánská, Horní Měcholupy, 24900 Kč/měs, 82 m2
K dlouhodobému podnájmu nabízíme krásný byt o dispozici 3+1 v klidné lokalitě Praha 15 - Horní Měcholupy. Byt o celkové výměře 82 m2 se nachází ve 4. patře panelového domu s výtahem. K bytu patří i prostorná lodžie a obyvatelům domu je k dispozici kočárkárna.
Byt se nabízí plně vybavený. Kuchyně disponuje lednicí s mrazákem, myčkou, elektrickou troubou s plynovým sporákem, mikrovlnnou troubou a digestoří. Obývací pokoj je zařízený pohovkou, křeslem, komodami, pracovním stolem s židlí a obývací stěnou s televizí. Součástí první ložnice je postel, šatní skříně a komoda, druhá ložnice je nezařízená. V koupelně je sprchový kout, umyvadlo, koupelnová skříňka, pračka a toaleta. V předsíni najdeme zrcadlo a skříně. Vstupní dveře jsou bezpečnostní.
V okolí domu najdeme restaurace, kavárny, supermarket Albert, základní a mateřskou školu, poštu, lékárnu, lesopark a vodní nádrž Hostivař, golfové hřiště, dětskou hernu Tanzania Park s více než 30 atrakcemi, jako jsou tobogány a skluzavky, velký labyrint, balónkový bazén, střílecí děla na míčky, trampolíny a autíčková a koblihová dráha atd. Dvě minuty chůze od domu je vzdálena autobusová zastávka Bolevecká (11 minut jízdy na stanici metra Háje) a v docházkové vzdálenosti je vlaková stanice Praha-Horní Měcholupy (17 minut jízdy na pražské Hlavní nádraží).
Majitel preferuje zájemce bez domácích mazlíčků.
Byt je volný k nastěhování ihned.
Energetická třída: G (neuvedeno).
Cena:
24 900 Kč / (za měsíc)
Poznámka:
vratná jistota, náklady na bydlení 5 639 Kč, poplatek za podnájem
Dispozice/podlahová plocha:
3+1/82 m²
Číslo zakázky:
REALITYMIX-4778
Podrobné informace
Dispozice bytu:3+1
Číslo podlaží v domě:4
Počet podlaží objektu:8
Celková podlahová plocha:82 m²
Druh objektu:panelová
Stav objektu:velmi dobrý
Vlastnictví:osobní
Vybaveno:ano
Umístění objektu:klidná část obce
Doprava:vlak, dálnice, silnice, MHD, autobus
Občanská vybavenost:Škola, Školka, Zdravotnická zařízení, Pošta, Supermarket, Kompletní síť obchodů a služeb
Uživatel serveru RealityMIX.cz (dále jen „Server“) dostupného na internetové adrese (URL) https://www.realitymix.cz, který provozuje společnost DALTEN media s.r.o., se sídlem Na Harfě 916/9a, Praha 9, 190 00, IČO: 271 35 306 (dále jen „Správce“) jako provozovateli tohoto Serveru uděluje svůj výslovný souhlas v souladu s ustanovením § 5 zákona č. 101/2000 Sb. O ochraně osobních údajů a o změně některých zákonů, v platném znění (dále jen „zákon o ochraně osobních údajů“), se zpracováním uživatelem poskytnutých osobních údajů a dalších dat.
Uživatel poskytuje Správci osobní údaje v rozsahu: jméno, příjmení, e-mailová adresa, telefonický kontakt a další data, a to z důvodu projeveného zájmu o nemovitost, kde prostřednictvím služby Serveru Správce osloví Uživatel inzerenta uvedeného v detailu
nemovitosti - Ideální nájemce (IČ 29300631) se zájmem o jeho služby.
Uživatel tyto osobní údaje poskytuje dobrovolně a bere na vědomí, že součástí služeb Správce, které Správce Uživateli poskytuje, je vyhledání všech Uživateli vyhovujících (dle parametrů - cena, typ nemovitosti, lokalita atd.) nemovitostí. Správce za tímto účelem provozuje aplikace Hlídací pes a newsletter. Tyto služby je možné z každého zaslaného emailu odhlásit. Souhlas se zpracováním osobních údajů Uživatel poskytuje Správci na dobu neurčitou s tím, že svůj udělený souhlas může Uživatel kdykoliv na drese správce info@realitymix.cz odvolat. Správce garantuje Uživateli i další práva uvedené v ustanovení §11 a §21 zákoba č. 101/200 Sb. Ve znění pozdějších předpisů.
Více informací o zpracování údajů získáte zde (realitymix.cz/zasady-ochrany-osobnich-udaju)