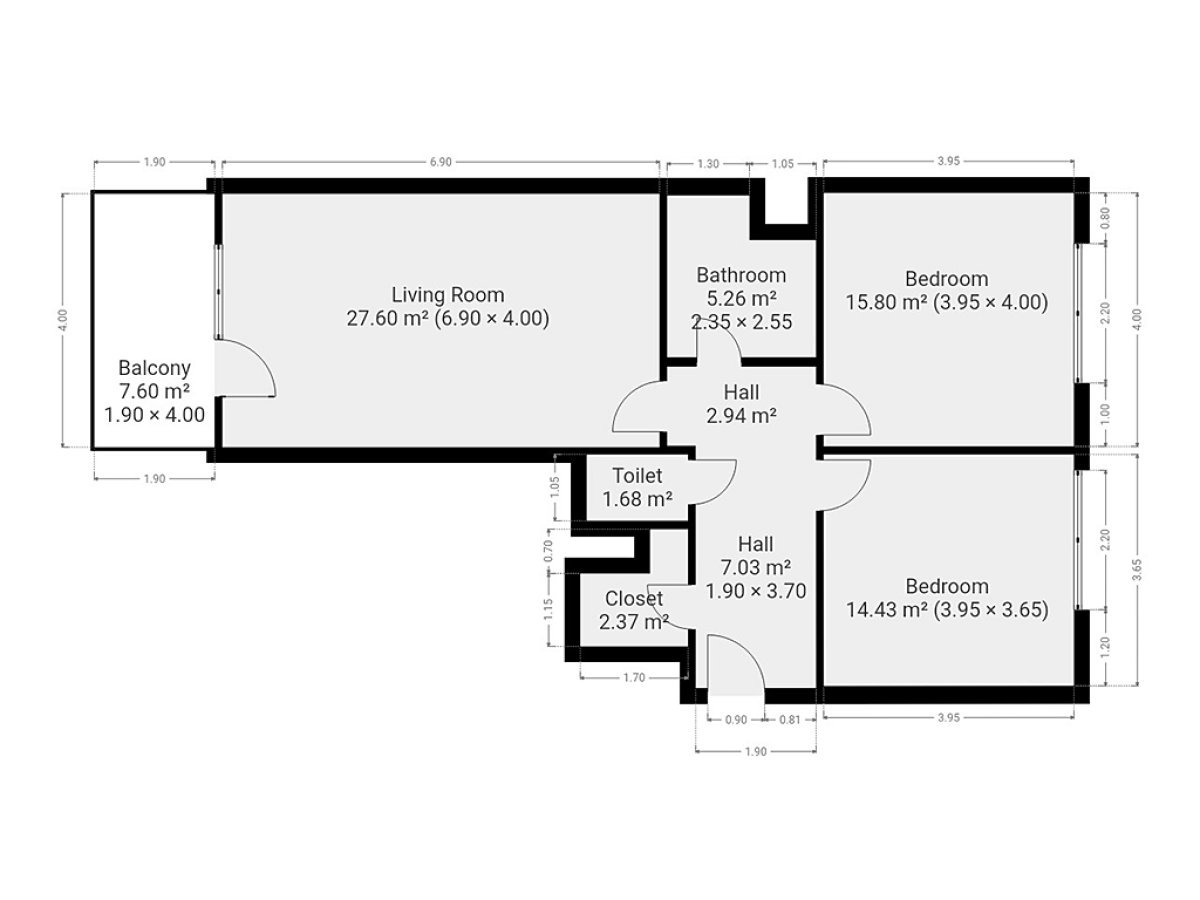
Nabízíme vám k dlouhodobému podnájmu velmi příjemný a kompletně zařízený byt 3+kk o velkorysé ploše 78 m², který se nachází ve druhém patře udržovaného domu s výtahem v oblíbené části Prahy 15 – Hostivař. Tento byt je ideální volbou pro ty, kteří hledají klidné zázemí s přírodou za zády, ale nechtějí slevit z výborné dostupnosti do centra metropole.
Interiér bytu je promyšleně rozdělen tak, aby poskytoval maximální komfort. Srdcem domova je prostorný a světlý obývací pokoj s jídelním koutem, na který navazuje moderní kuchyně. Ta je vybavena všemi potřebnými spotřebiči včetně myčky, elektrické i mikrovlnné trouby a praktického pracovního ostrůvku, který nabízí dostatek prostoru pro vaření i úložné prostory. Z obývací části je vstup na balkon, který vybízí k odpočinku. Další dva samostatné pokoje lze díky stávajícímu vybavení okamžitě využít jako ložnici, dětský pokoj nebo klidnou pracovnu. Moderní koupelna disponuje nadstandardně velkým sprchovým koutem a pračkou, přičemž toaleta je pro větší soukromí umístěna samostatně.
Lokalita Athénské ulice vyniká svou komplexní občanskou vybaveností. V pěší vzdálenosti najdete supermarkety Penny a Billa, školky, školy, lékárnu i poštu. Milovníci aktivního života ocení blízkost Hostivařského lesoparku a přehrady, což je jedno z nejlepších míst v Praze pro sport i relaxaci. Skvělé spojení s centrem zajišťují autobusové linky na metro i nedaleká vlaková zastávka, odkud jste na Hlavním nádraží za 15 minut. Velkým benefitem je také vlastní garážové stání, které je součástí pronájmu.
Byt je ve skvělém stavu, plně vybaven a připraven k okamžitému nastěhování.
Energetická třída: G (průkaz nedodán).
Cena:
34 900 Kč / (za měsíc)
Poznámka:
vratná jistota, náklady na bydlení 7 719 Kč, poplatek za podnájem
Dispozice/podlahová plocha:
3+kk/78 m²
Číslo zakázky:
REALITYMIX-7290
Podrobné informace
Dispozice bytu:3+kk
Číslo podlaží v domě:2
Počet podlaží objektu:7
Celková podlahová plocha:78 m²
Druh objektu:panelová
Stav objektu:velmi dobrý
Vlastnictví:osobní
Vybaveno:ano
Umístění objektu:klidná část obce
Doprava:silnice, MHD, autobus
Občanská vybavenost:Škola, Školka, Zdravotnická zařízení, Pošta, Supermarket, Kompletní síť obchodů a služeb
Uživatel serveru RealityMIX.cz (dále jen „Server“) dostupného na internetové adrese (URL) https://www.realitymix.cz, který provozuje společnost DALTEN media s.r.o., se sídlem Na Harfě 916/9a, Praha 9, 190 00, IČO: 271 35 306 (dále jen „Správce“) jako provozovateli tohoto Serveru uděluje svůj výslovný souhlas v souladu s ustanovením § 5 zákona č. 101/2000 Sb. O ochraně osobních údajů a o změně některých zákonů, v platném znění (dále jen „zákon o ochraně osobních údajů“), se zpracováním uživatelem poskytnutých osobních údajů a dalších dat.
Uživatel poskytuje Správci osobní údaje v rozsahu: jméno, příjmení, e-mailová adresa, telefonický kontakt a další data, a to z důvodu projeveného zájmu o nemovitost, kde prostřednictvím služby Serveru Správce osloví Uživatel inzerenta uvedeného v detailu
nemovitosti - Ideální nájemce (IČ 29300631) se zájmem o jeho služby.
Uživatel tyto osobní údaje poskytuje dobrovolně a bere na vědomí, že součástí služeb Správce, které Správce Uživateli poskytuje, je vyhledání všech Uživateli vyhovujících (dle parametrů - cena, typ nemovitosti, lokalita atd.) nemovitostí. Správce za tímto účelem provozuje aplikace Hlídací pes a newsletter. Tyto služby je možné z každého zaslaného emailu odhlásit. Souhlas se zpracováním osobních údajů Uživatel poskytuje Správci na dobu neurčitou s tím, že svůj udělený souhlas může Uživatel kdykoliv na drese správce info@realitymix.cz odvolat. Správce garantuje Uživateli i další práva uvedené v ustanovení §11 a §21 zákoba č. 101/200 Sb. Ve znění pozdějších předpisů.
Více informací o zpracování údajů získáte zde (realitymix.cz/zasady-ochrany-osobnich-udaju)