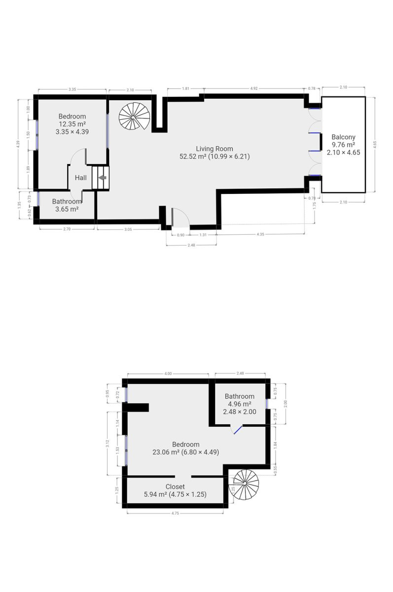
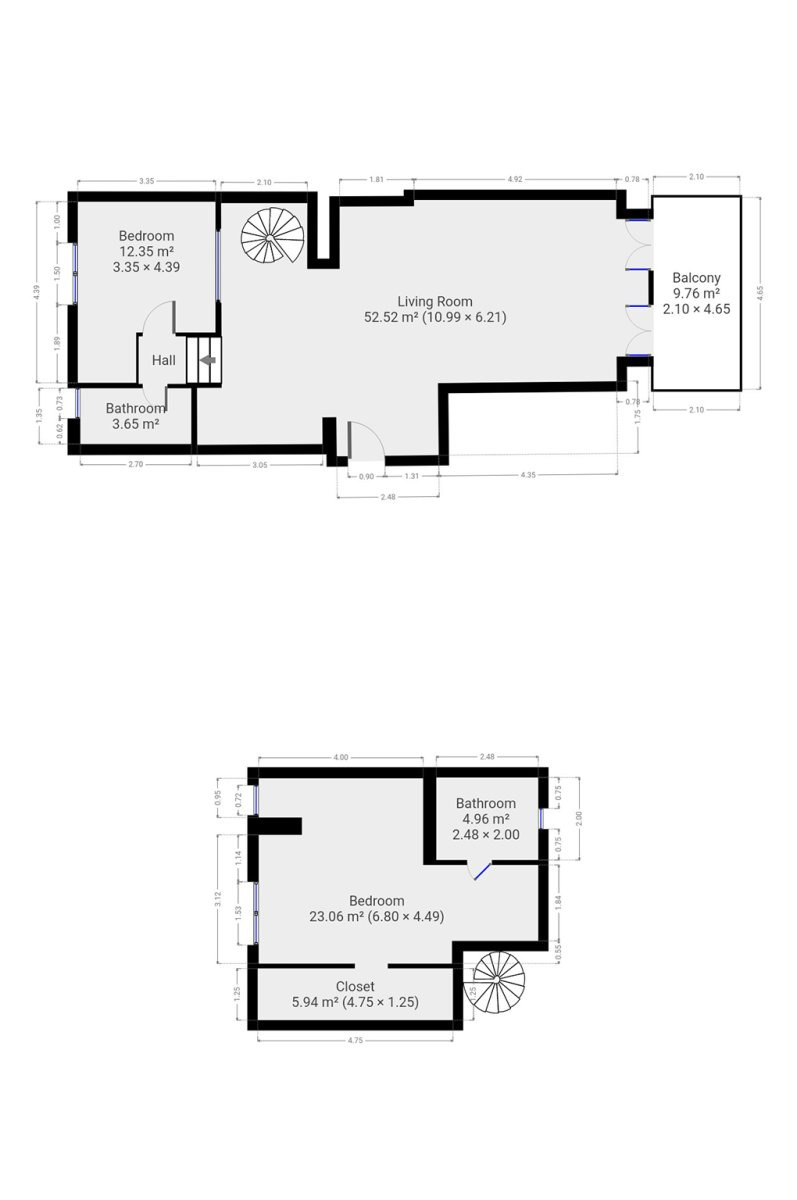
K dlouhodobému podnájmu nabízíme krásný klimatizovaný mezonetový byt o dispozici 3+kk v centru Prahy - Vinohrady. Byt o celkové výměře 106 m2 se nachází v pátém patře cihlového domu s výtahem. K bytu navíc patří krásná terasa s výhledem na Prahu - Vinohrady, plynový gril, jídelní stůl a markýza.
Byt se nabízí plně vybavený. Na chodbě je velká vestavěná skříň. Ve spodním patře se nachází kuchyň s obývací částí a ve vrchním patře 2 ložnice s koupelnami. Kuchyně disponuje elektrickou troubou, myčkou, lednicí, mikrovlnnou troubou, indukční deskou s digestoří a rychlovarnou konvicí. V obývací části pokoje můžeme nalézt obývací stěnu s televizí, rozkládací gauč, jídelní stůl se šesti židlemi a vstup na terasu.
Naproti kuchyni jsou schody, které vedou do druhého patra. Pod a za schody jsou úložné prostory. Vedle kuchyně můžeme nalézt vstup do mezipatra, kde se nachází dětský pokoj a koupelna s toaletou. V druhém patře se nachází pracovní stůl s židlí, druhá koupelna s pračkou a ložnicí. Součástí ložnice je i knihovna a prostorná šatna. Po celém bytě jsou dřevěné a laminátové podlahy a klimatizace. Na oknech jsou elektrické rolety.
Byt je volný k nastěhování od 01.07.2026. ( Dle domluvy možnost i dříve )
Uvedena energetická kategorie G, jelikož nemáme k dispozici PENB.
Byt pronajímá Ideální nájemce - služba, se kterou budete bydlet bezstarostně a za férových podmínek. Když se něco přihodí, k dispozici jsou správci, kteří s vámi vše vyřeší. Pomůžeme s veškerou administrativou, s nastavením plateb a zajistíme vám speciální pojištění. Pojďte bydlet s námi!
Cena:
36 200 Kč / (za měsíc)
Poznámka:
vratná jistota, náklady na bydlení 7695 Kč, poplatek za podnájem
Dispozice/podlahová plocha:
3+kk/106 m²
Číslo zakázky:
REALITYMIX-2828
Podrobné informace
Dispozice bytu:3+kk
Číslo podlaží v domě:5
Počet podlaží objektu:5
Celková podlahová plocha:106 m²
Druh objektu:cihlová
Stav objektu:velmi dobrý
Vlastnictví:osobní
Vybaveno:ano
Umístění objektu:centrum obce
Doprava:vlak, dálnice, silnice, MHD, autobus
Občanská vybavenost:Škola, Školka, Zdravotnická zařízení, Pošta, Supermarket, Kompletní síť obchodů a služeb
Uživatel serveru RealityMIX.cz (dále jen „Server“) dostupného na internetové adrese (URL) https://www.realitymix.cz, který provozuje společnost DALTEN media s.r.o., se sídlem Na Harfě 916/9a, Praha 9, 190 00, IČO: 271 35 306 (dále jen „Správce“) jako provozovateli tohoto Serveru uděluje svůj výslovný souhlas v souladu s ustanovením § 5 zákona č. 101/2000 Sb. O ochraně osobních údajů a o změně některých zákonů, v platném znění (dále jen „zákon o ochraně osobních údajů“), se zpracováním uživatelem poskytnutých osobních údajů a dalších dat.
Uživatel poskytuje Správci osobní údaje v rozsahu: jméno, příjmení, e-mailová adresa, telefonický kontakt a další data, a to z důvodu projeveného zájmu o nemovitost, kde prostřednictvím služby Serveru Správce osloví Uživatel inzerenta uvedeného v detailu
nemovitosti - Ideální nájemce (IČ 29300631) se zájmem o jeho služby.
Uživatel tyto osobní údaje poskytuje dobrovolně a bere na vědomí, že součástí služeb Správce, které Správce Uživateli poskytuje, je vyhledání všech Uživateli vyhovujících (dle parametrů - cena, typ nemovitosti, lokalita atd.) nemovitostí. Správce za tímto účelem provozuje aplikace Hlídací pes a newsletter. Tyto služby je možné z každého zaslaného emailu odhlásit. Souhlas se zpracováním osobních údajů Uživatel poskytuje Správci na dobu neurčitou s tím, že svůj udělený souhlas může Uživatel kdykoliv na drese správce info@realitymix.cz odvolat. Správce garantuje Uživateli i další práva uvedené v ustanovení §11 a §21 zákoba č. 101/200 Sb. Ve znění pozdějších předpisů.
Více informací o zpracování údajů získáte zde (realitymix.cz/zasady-ochrany-osobnich-udaju)