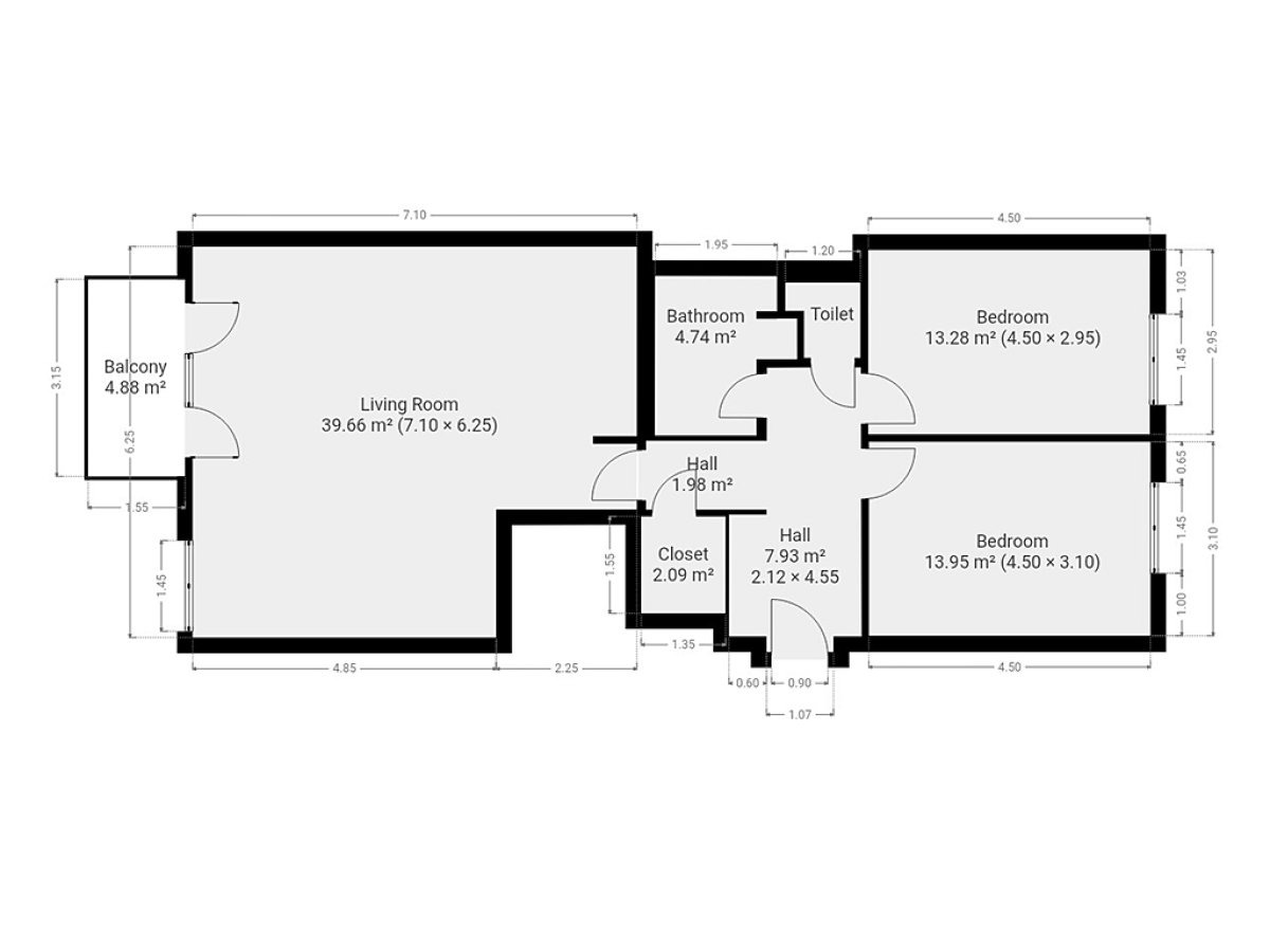
Nabízíme k dlouhodobému podnájmu mimořádně prostorný a světlý byt o dispozici 3+kk, který se nachází v klidném prostředí vyhledávaných Hlubočep na Praze 5. Byt o celkové výměře 95 m² je situován ve prvním patře udržovaného bytového domu a představuje ideální volbu pro ty, kteří hledají harmonické spojení městského komfortu s bezprostřední blízkostí přírody. Byt je v rezidenčním objektu Prokopský dvůr, jehož součástí je neveřejná parková zeleň a dětské hřiště výhradně pro uživatele bytového domu. K bytu náleží také praktický sklep a dvě garážová parkovací stání, veškeré příslušenství je již zahrnuto v částce podnájemného. Nemovitost je nabízena jako částečně vybavená (pohovka není součástí vybavení, z bytu byla již odstraněna)
Interiér bytu je laděn do světlých tónů a díky své orientaci působí velmi vzdušně. Srdcem celého domova je obývací pokoj propojený s plně vybaveným kuchyňským koutem, který disponuje lednicí s mrazákem, elektrickou troubou, varnou deskou i digestoří. Z obývací části se vstupuje přímo na prostorný balkon s výhledem do okolí. Soukromí zajišťují dva samostatné neprůchozí pokoje, které lze snadno proměnit v ložnici, dětský pokoj nebo klidné zázemí pro domácí pracovnu. Koupelna nabízí vanu pro relaxaci, zatímco toaleta je pro větší komfort umístěna samostatně.
Tato lokalita je ideální pro ty, kteří chtějí spojit pohodlí města s každodenním kontaktem s přírodou. Jen pár minut od domu začíná přírodní rezervace Prokopské údolí – jedno z nejkrásnějších míst v Praze, které nabízí rozsáhlé možnosti pro procházky, běhání, cyklistiku i víkendový relax mimo ruch centra. Klidné okolí, minimum tranzitní dopravy a zeleň na dosah vytváří příjemné a bezpečné prostředí pro každodenní život.
Zároveň je zajištěno velmi dobré spojení do centra – autobusová zastávka Nádraží Hlubočepy je pár minut chůze od domu, odkud se pohodlně dostanete na metro B – Anděl a dále do širšího centra města. Kromě autobusu je možné jet na Smíchov i vlakem v rámci Pražské integrované dopravy. Autem je Smíchov dostupný během několika minut.
V bezprostředním okolí domu se nachází potraviny, restaurace, kavárny, mateřská škola i dětské hřiště. Lokalita je oblíbená zejména mezi lidmi, kteří hledají klidné bydlení s rychlou dostupností městské infrastruktury, ale zároveň chtějí mít přírodu doslova za domem.
Byt je volný k nastěhování ihned.
Energetická náročnost: Třída G (průkaz nedodán)
Cena:
30 500 Kč / (za měsíc)
Poznámka:
vratná jistota Kč, náklady na bydlení 10 000 Kč, poplatek za podnájem
Dispozice/podlahová plocha:
3+kk/95 m²
Číslo zakázky:
REALITYMIX-7169
Podrobné informace
Dispozice bytu:3+kk
Číslo podlaží v domě:2
Počet podlaží objektu:4
Celková podlahová plocha:95 m²
Druh objektu:smíšená
Stav objektu:velmi dobrý
Vlastnictví:osobní
Umístění objektu:klidná část obce
Doprava:vlak, dálnice, silnice, MHD, autobus
Občanská vybavenost:Škola, Školka, Zdravotnická zařízení, Pošta, Supermarket, Kompletní síť obchodů a služeb
Uživatel serveru RealityMIX.cz (dále jen „Server“) dostupného na internetové adrese (URL) https://www.realitymix.cz, který provozuje společnost DALTEN media s.r.o., se sídlem Na Harfě 916/9a, Praha 9, 190 00, IČO: 271 35 306 (dále jen „Správce“) jako provozovateli tohoto Serveru uděluje svůj výslovný souhlas v souladu s ustanovením § 5 zákona č. 101/2000 Sb. O ochraně osobních údajů a o změně některých zákonů, v platném znění (dále jen „zákon o ochraně osobních údajů“), se zpracováním uživatelem poskytnutých osobních údajů a dalších dat.
Uživatel poskytuje Správci osobní údaje v rozsahu: jméno, příjmení, e-mailová adresa, telefonický kontakt a další data, a to z důvodu projeveného zájmu o nemovitost, kde prostřednictvím služby Serveru Správce osloví Uživatel inzerenta uvedeného v detailu
nemovitosti - Ideální nájemce (IČ 29300631) se zájmem o jeho služby.
Uživatel tyto osobní údaje poskytuje dobrovolně a bere na vědomí, že součástí služeb Správce, které Správce Uživateli poskytuje, je vyhledání všech Uživateli vyhovujících (dle parametrů - cena, typ nemovitosti, lokalita atd.) nemovitostí. Správce za tímto účelem provozuje aplikace Hlídací pes a newsletter. Tyto služby je možné z každého zaslaného emailu odhlásit. Souhlas se zpracováním osobních údajů Uživatel poskytuje Správci na dobu neurčitou s tím, že svůj udělený souhlas může Uživatel kdykoliv na drese správce info@realitymix.cz odvolat. Správce garantuje Uživateli i další práva uvedené v ustanovení §11 a §21 zákoba č. 101/200 Sb. Ve znění pozdějších předpisů.
Více informací o zpracování údajů získáte zde (realitymix.cz/zasady-ochrany-osobnich-udaju)