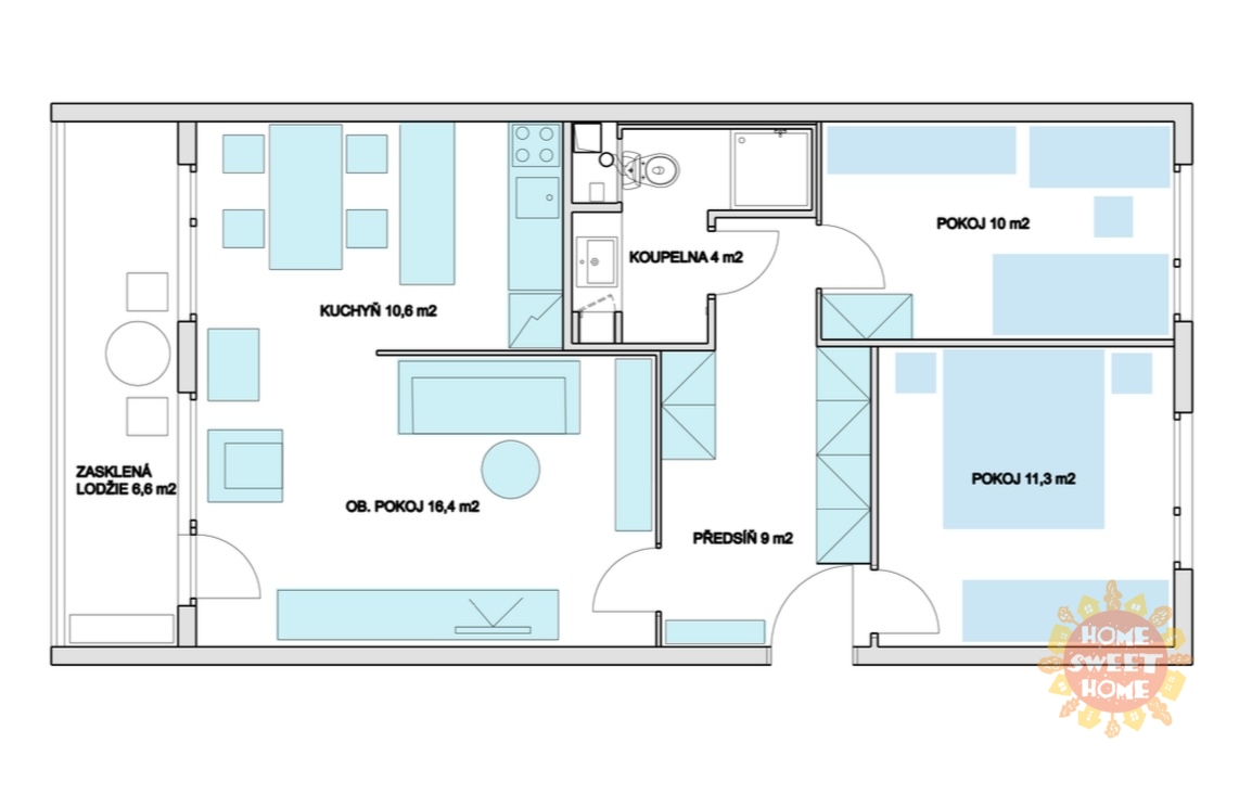
Pronájem bytu 3+kk, Jílovská ulice - Praha 4, částečně zařízený, lodžie
Nabízíme k pronájmu panelákový byt 3+kk umístěný v šestém patře cihlového domu s výtahem v ulici Jílovská, Praha 4. Celková užitná plocha bytu činí 62 m2 + 6 m2 lodžie. Byt je aktuálně vybavený dle fotografií - lze pronajmout i bez vybavení. Sestává z obývacího pokoje s kuchyňským koutem a lodžií, dvou samostatných pokojů, koupelny s WC a sprchou.
Byt je po částečné rekonstrukci (koupelna a kuchyně). Vytápění a ohřev vody je centrální. Kuchyně je vybavena sklokeramickou varnou deskou a el. troubou, chladničkou s mrazákem, pračkou. V předsíni jsou původní vestavné skříně.
Klidná lokalita. Dostupnost MHD - 170 m autobusová zastávka sídliště Novodvorská (linky autobusů č. 106, 196, 197, 901). Nákupní centrum Novo Plaza, Hypermarket Tesco - 250 m, BILLA, drogerie TETA, pošta, lékárna. Cena nájmu - 20.000 Kč + energie a služby, vratná jistota 20.000 Kč. Prosíme kontaktovat přes poptávkový formulář s uvedením počtu osob a termínu nastěhování.
Cena:
20 000 Kč / (za měsíc)
Poznámka:
+ energie a služby, kauce 20.000 Kč
Datum k nastěhování:
26.01.2026
Dispozice/podlahová plocha:
3+kk/68 m²
Číslo zakázky:
REALITYMIX-78841
Podrobné informace
Dispozice bytu:3+kk
Číslo podlaží v domě:6
Počet podlaží objektu:1
Užitná plocha:62 m²
Celková podlahová plocha:68 m²
Druh objektu:panelová
Stav objektu:velmi dobrý
Vlastnictví:družstevní
Balkon:6 m²
Lodžie:6 m²
Vybaveno:ano
Energetická náročnost budovy:D - Méně úsporná
Energetický ukazatel podle vyhlášky:č. 264/2020 Sb.
Uživatel serveru RealityMIX.cz (dále jen „Server“) dostupného na internetové adrese (URL) https://www.realitymix.cz, který provozuje společnost DALTEN media s.r.o., se sídlem Na Harfě 916/9a, Praha 9, 190 00, IČO: 271 35 306 (dále jen „Správce“) jako provozovateli tohoto Serveru uděluje svůj výslovný souhlas v souladu s ustanovením § 5 zákona č. 101/2000 Sb. O ochraně osobních údajů a o změně některých zákonů, v platném znění (dále jen „zákon o ochraně osobních údajů“), se zpracováním uživatelem poskytnutých osobních údajů a dalších dat.
Uživatel poskytuje Správci osobní údaje v rozsahu: jméno, příjmení, e-mailová adresa, telefonický kontakt a další data, a to z důvodu projeveného zájmu o nemovitost, kde prostřednictvím služby Serveru Správce osloví Uživatel inzerenta uvedeného v detailu
nemovitosti - Home Sweet Home (IČ 24141496) se zájmem o jeho služby. Tato společnost je součástí seskupení/sítě/franšízového modelu realitních kanceláří, jejich seznam můžete zobrazit kliknutím na tento odkaz.
Home sweet home Plzeň (IČ 63916258) , Home Sweet Home (IČ 24141496)
Uživatel tyto osobní údaje poskytuje dobrovolně a bere na vědomí, že součástí služeb Správce, které Správce Uživateli poskytuje, je vyhledání všech Uživateli vyhovujících (dle parametrů - cena, typ nemovitosti, lokalita atd.) nemovitostí. Správce za tímto účelem provozuje aplikace Hlídací pes a newsletter. Tyto služby je možné z každého zaslaného emailu odhlásit. Souhlas se zpracováním osobních údajů Uživatel poskytuje Správci na dobu neurčitou s tím, že svůj udělený souhlas může Uživatel kdykoliv na drese správce info@realitymix.cz odvolat. Správce garantuje Uživateli i další práva uvedené v ustanovení §11 a §21 zákoba č. 101/200 Sb. Ve znění pozdějších předpisů.
Více informací o zpracování údajů získáte zde (realitymix.cz/zasady-ochrany-osobnich-udaju)