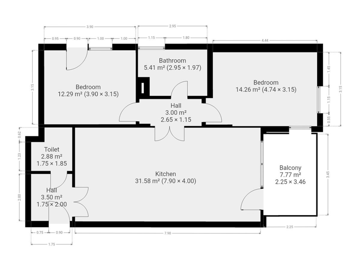
Pronájem bytu 3+kk, K Beranovu, Dolní Chabry, 31900 Kč/měs, 78 m2
Tento moderní a prosluněný byt s dispozicí 3+kk nabízí ideální domov v klidné a oblíbené lokalitě Dolní Chabry. Nachází se ve 4. patře cihlové novostavby s výtahem a nabízí poklidný výhled. Výměra bytu činí 78 m2 a patří k němu balkon, sklep a garážové stání.
Byt je částečně vybaven, v kuchyni najdete lednici, myčku, troubu, varnou desku a digestoř. V ložnici je vestavěná skříň, zatímco obývací prostor zůstává nezařízený. Druhý pokoj může být využit jako kancelář nebo dětský pokoj. Chodba bytu je vybavena velkou vestavnou skříňí s dostatkem úložného prostoru. V koupelně je vana a toaleta, další samostatná toaleta je umístěna vedle.
Lokalita nabízí spoustu výhod. Nedaleko domu se nachází rozlehlé parky Čimický Háj a Ďáblický Háj, restaurace a obchody jako Penny a Lidl. V blízkosti jsou také základní a mateřské školy a lékárna. Autobusová zastávka Počeradská je vzdálena pouhých 4 minut chůze od domu a tramvajová stanice Vozovna Kobylisy je dostupná po 10 minutách chůze
Byt je k dispozici od 1.6.2026.
Uvedena energetická kategorie G, jelikož nemáme k dispozici PENB.
Byt pronajímá Ideální nájemce - služba, se kterou budete bydlet bezstarostně a za férových podmínek. Když se něco přihodí, k dispozici jsou správci, kteří s vámi vše vyřeší. Pomůžeme s veškerou administrativou, s nastavením plateb a zajistíme vám speciální pojištění. Pojďte bydlet s námi!
Cena:
31 900 Kč / (za měsíc)
Poznámka:
vratná jistota, náklady na bydlen 6065 Kč, poplatek za podnájem
Dispozice/podlahová plocha:
3+kk/78 m²
Číslo zakázky:
REALITYMIX-3689
Podrobné informace
Bezbariérový byt:ano
Dispozice bytu:3+kk
Číslo podlaží v domě:4
Počet podlaží objektu:5
Celková podlahová plocha:78 m²
Druh objektu:cihlová
Stav objektu:novostavba
Vlastnictví:osobní
Umístění objektu:klidná část obce
Doprava:vlak, dálnice, silnice, MHD, autobus
Občanská vybavenost:Škola, Školka, Zdravotnická zařízení, Pošta, Supermarket, Kompletní síť obchodů a služeb
Uživatel serveru RealityMIX.cz (dále jen „Server“) dostupného na internetové adrese (URL) https://www.realitymix.cz, který provozuje společnost DALTEN media s.r.o., se sídlem Na Harfě 916/9a, Praha 9, 190 00, IČO: 271 35 306 (dále jen „Správce“) jako provozovateli tohoto Serveru uděluje svůj výslovný souhlas v souladu s ustanovením § 5 zákona č. 101/2000 Sb. O ochraně osobních údajů a o změně některých zákonů, v platném znění (dále jen „zákon o ochraně osobních údajů“), se zpracováním uživatelem poskytnutých osobních údajů a dalších dat.
Uživatel poskytuje Správci osobní údaje v rozsahu: jméno, příjmení, e-mailová adresa, telefonický kontakt a další data, a to z důvodu projeveného zájmu o nemovitost, kde prostřednictvím služby Serveru Správce osloví Uživatel inzerenta uvedeného v detailu
nemovitosti - Ideální nájemce (IČ 29300631) se zájmem o jeho služby.
Uživatel tyto osobní údaje poskytuje dobrovolně a bere na vědomí, že součástí služeb Správce, které Správce Uživateli poskytuje, je vyhledání všech Uživateli vyhovujících (dle parametrů - cena, typ nemovitosti, lokalita atd.) nemovitostí. Správce za tímto účelem provozuje aplikace Hlídací pes a newsletter. Tyto služby je možné z každého zaslaného emailu odhlásit. Souhlas se zpracováním osobních údajů Uživatel poskytuje Správci na dobu neurčitou s tím, že svůj udělený souhlas může Uživatel kdykoliv na drese správce info@realitymix.cz odvolat. Správce garantuje Uživateli i další práva uvedené v ustanovení §11 a §21 zákoba č. 101/200 Sb. Ve znění pozdějších předpisů.
Více informací o zpracování údajů získáte zde (realitymix.cz/zasady-ochrany-osobnich-udaju)