© 1999–2026 DALTEN media s.r.o.
Mazurská, Praha 8, Troja
35 000 Kč (za měsíc)Mazurská, Praha 8, Troja
| Cena: | 35 000 Kč / (za měsíc) |
| Poznámka: | vratná jistota, zálohy 7.000,- Kč, poplatek za podnájem, parkovací stání a sklep v ceně |
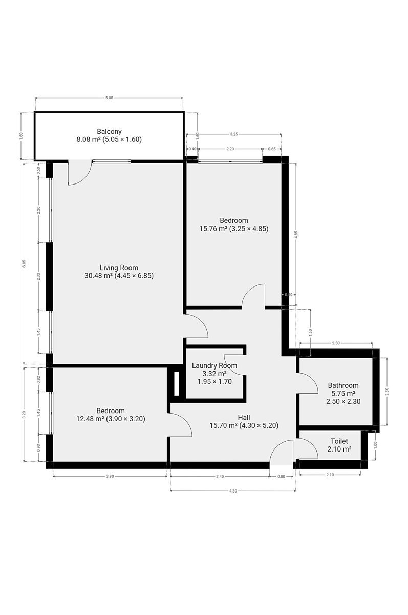
| Dispozice/podlahová plocha: | 3+kk/94 m² |
| Číslo zakázky: | REALITYMIX-5751 |