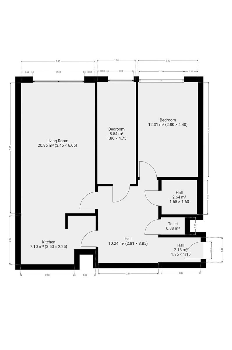
K dlouhodobému podnájmu nabízíme útulný byt o dispozici 3+Kk a podlahové ploše 64m2, nacházející se v 10. patře panelového domu s výtahem. Nachází se v ulici Mikulova na Praze 11 - Chodově s výbornou dopravní dostupností a okolnou infrastrukturou (autobus 2 minuty chůzí, metro Opatov 7 minut chůzí).
Nabízí se zařízen. Kuchyně nabízí ledničku s mrazákem, elektrickou troubu, sklokeramickou varnou desku. V obývacím pokoji najdeme konferenční stolek, komodu a jídelní stůl s židlemi.
Obě ložnice jsou vybaveny postelí a úložnými prostory ve formě vestavěných šatních skříní.
V koupelně nalezneme vanu, umyvadlo se skříňkou a pračku. Toaleta je umístěna samostatně.
V obývacím pokoji a v obou ložnících jsou plovoucí podlahy. V předsíni, koupelně a toaletě najdeme dlažbu.
Vytápění a ohřev vody je zde dálkový.
Energetický štítek: G, jelikož nemáme k dispozici PENB.
K pronájmu od 1.6.2026.
Majitel preferuje zájemce bez domácích mazlíčků.
Cena:
22 900 Kč / (za měsíc)
Poznámka:
vratná jistota, náklady na bydlení 5400 Kč, poplatek za podnájem
Uživatel serveru RealityMIX.cz (dále jen „Server“) dostupného na internetové adrese (URL) https://www.realitymix.cz, který provozuje společnost DALTEN media s.r.o., se sídlem Na Harfě 916/9a, Praha 9, 190 00, IČO: 271 35 306 (dále jen „Správce“) jako provozovateli tohoto Serveru uděluje svůj výslovný souhlas v souladu s ustanovením § 5 zákona č. 101/2000 Sb. O ochraně osobních údajů a o změně některých zákonů, v platném znění (dále jen „zákon o ochraně osobních údajů“), se zpracováním uživatelem poskytnutých osobních údajů a dalších dat.
Uživatel poskytuje Správci osobní údaje v rozsahu: jméno, příjmení, e-mailová adresa, telefonický kontakt a další data, a to z důvodu projeveného zájmu o nemovitost, kde prostřednictvím služby Serveru Správce osloví Uživatel inzerenta uvedeného v detailu
nemovitosti - Ideální nájemce (IČ 29300631) se zájmem o jeho služby.
Uživatel tyto osobní údaje poskytuje dobrovolně a bere na vědomí, že součástí služeb Správce, které Správce Uživateli poskytuje, je vyhledání všech Uživateli vyhovujících (dle parametrů - cena, typ nemovitosti, lokalita atd.) nemovitostí. Správce za tímto účelem provozuje aplikace Hlídací pes a newsletter. Tyto služby je možné z každého zaslaného emailu odhlásit. Souhlas se zpracováním osobních údajů Uživatel poskytuje Správci na dobu neurčitou s tím, že svůj udělený souhlas může Uživatel kdykoliv na drese správce info@realitymix.cz odvolat. Správce garantuje Uživateli i další práva uvedené v ustanovení §11 a §21 zákoba č. 101/200 Sb. Ve znění pozdějších předpisů.
Více informací o zpracování údajů získáte zde (realitymix.cz/zasady-ochrany-osobnich-udaju)