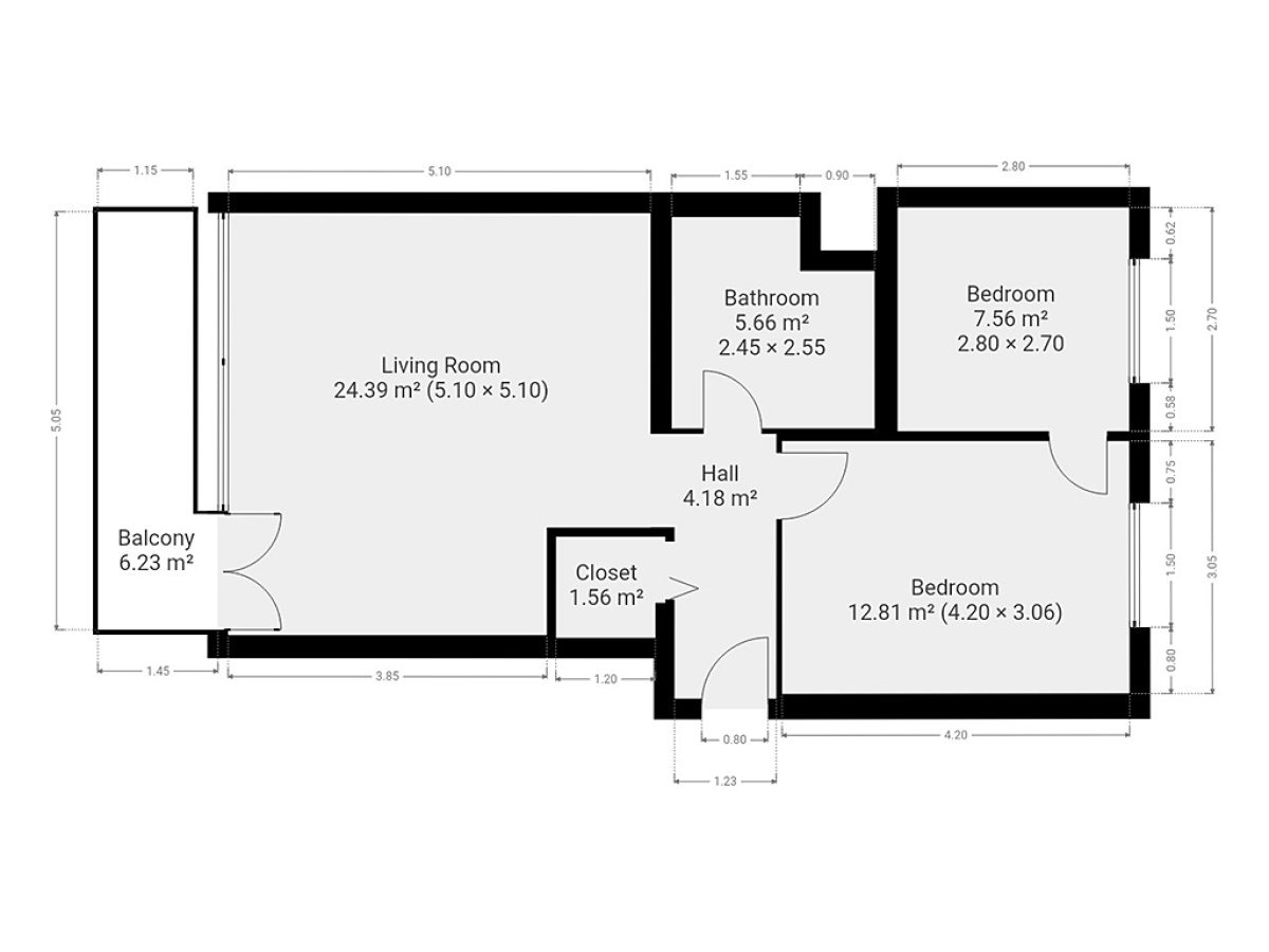
K dlouhodobému podnájmu Vám nabízíme velmi světlý byt o dispozici 3+kk, 59m2 v klidné, přesto dobře dopravně dostupné lokalitě s kompletní občanskou vybaveností v pražské Zbraslavi.
Byt se nachází ve 4. patře panelového domu s výtahem.
Skládá se ze vstupní chodby, na kterou navazuje prostorná komora. Dvou průchozích pokojů, koupelny s velkou rohovou vanou, umyvadlem a toaletou. Obývací pokoj je společný s kuchyňským koutem.
Z obývacího pokoje lze vejít na prostornou lodžii.
Dům se nachází v lokalitě s veškerou občanskou vybaveností - ihned u domu se nachází hypermarket Albert, LIDL je cca 5 minut chůze. Dále pošta, několik základních i mateřských škol a ostatní služby. Autobusová zastávka s přímým spojením na Smíchovské nádraží je od domu cca 2 minuty chůze. Na Smíchově jste autobusem za 15 minut minut.
Byt je k dispozici od 1.3.2026 nebo po domluvě i dřív.
Zálohové platby už obsahují zálohy na elektřinu a pojištění domácnosti.
Cena:
22 900 Kč / (za měsíc)
Poznámka:
vratná jistota, náklady na bydlení 8.152,-Kč za 4 osoby, poplatek za podnájem
Dispozice/podlahová plocha:
3+kk/59 m²
Číslo zakázky:
REALITYMIX-6178
Podrobné informace
Bezbariérový byt:ano
Dispozice bytu:3+kk
Číslo podlaží v domě:4
Počet podlaží objektu:6
Celková podlahová plocha:59 m²
Druh objektu:panelová
Stav objektu:velmi dobrý
Vlastnictví:osobní
Doprava:vlak, dálnice, silnice, MHD, autobus
Občanská vybavenost:Škola, Školka, Zdravotnická zařízení, Pošta, Supermarket, Kompletní síť obchodů a služeb
Uživatel serveru RealityMIX.cz (dále jen „Server“) dostupného na internetové adrese (URL) https://www.realitymix.cz, který provozuje společnost DALTEN media s.r.o., se sídlem Na Harfě 916/9a, Praha 9, 190 00, IČO: 271 35 306 (dále jen „Správce“) jako provozovateli tohoto Serveru uděluje svůj výslovný souhlas v souladu s ustanovením § 5 zákona č. 101/2000 Sb. O ochraně osobních údajů a o změně některých zákonů, v platném znění (dále jen „zákon o ochraně osobních údajů“), se zpracováním uživatelem poskytnutých osobních údajů a dalších dat.
Uživatel poskytuje Správci osobní údaje v rozsahu: jméno, příjmení, e-mailová adresa, telefonický kontakt a další data, a to z důvodu projeveného zájmu o nemovitost, kde prostřednictvím služby Serveru Správce osloví Uživatel inzerenta uvedeného v detailu
nemovitosti - Ideální nájemce (IČ 29300631) se zájmem o jeho služby.
Uživatel tyto osobní údaje poskytuje dobrovolně a bere na vědomí, že součástí služeb Správce, které Správce Uživateli poskytuje, je vyhledání všech Uživateli vyhovujících (dle parametrů - cena, typ nemovitosti, lokalita atd.) nemovitostí. Správce za tímto účelem provozuje aplikace Hlídací pes a newsletter. Tyto služby je možné z každého zaslaného emailu odhlásit. Souhlas se zpracováním osobních údajů Uživatel poskytuje Správci na dobu neurčitou s tím, že svůj udělený souhlas může Uživatel kdykoliv na drese správce info@realitymix.cz odvolat. Správce garantuje Uživateli i další práva uvedené v ustanovení §11 a §21 zákoba č. 101/200 Sb. Ve znění pozdějších předpisů.
Více informací o zpracování údajů získáte zde (realitymix.cz/zasady-ochrany-osobnich-udaju)