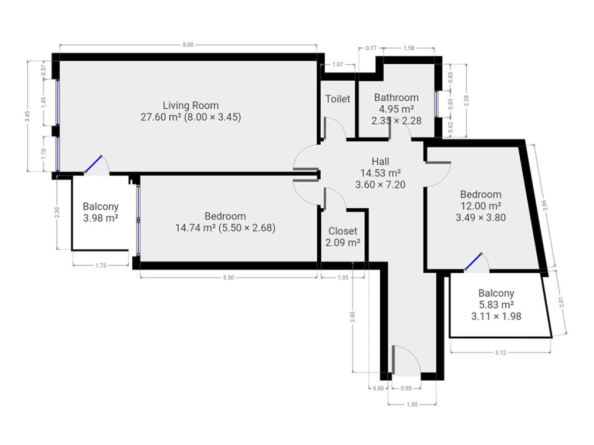
K dlouhodobému podnájmu nabízíme pěkný byt o dispozici 3+kk v atraktivní lokalitě Praha - Střížkov. Byt o celkové výměře 77 m2 se nachází ve čtvrtém patře cihlové novostavby s výtahem. K bytu patří i dva balkóny. V bytě je i komora. K bytu patří parkovací místo ve společné garáži.
Byt se nabízí částečně vybavený. Kuchyně disponuje lednicí, elektrickou troubou, myčkou, sporákem, digestoří, mikrovlnnou troubou a jídelním stolem s židlemi. Obývací část je zařízena pohovkou a komodou s televizí. Součástí ložnice je postel a šatní skříň. Druhý pokoj je nezařízený. V koupelně najdeme vanu, umyvadlo a pračku. Toaleta je oddělená. Na chodbě jsou úložné skříně.
V okolí domu jsou restaurace, kavárna, Park Střížkov, dětské hřiště, základní škola atd. Vynikající dostupnost na metro - stanice Střížkov je vzdálená deset minut chůze od domu.
Byt je dostupný od 1.3.2026
Uvedena energetická kategorie G, jelikož nemáme k dispozici PENB.
Byt pronajímá Ideální nájemce - služba, se kterou budete bydlet bezstarostně a za férových podmínek. Když se něco přihodí, k dispozici jsou správci, kteří s vámi vše vyřeší. Pomůžeme s veškerou administrativou, s nastavením plateb a zajistíme vám speciální pojištění. Pojďte bydlet s námi!
Cena:
28 900 Kč / (za měsíc)
Poznámka:
vratná jistota, náklady na bydlení 6 900 Kč , poplatek za podnájem
Uživatel serveru RealityMIX.cz (dále jen „Server“) dostupného na internetové adrese (URL) https://www.realitymix.cz, který provozuje společnost DALTEN media s.r.o., se sídlem Na Harfě 916/9a, Praha 9, 190 00, IČO: 271 35 306 (dále jen „Správce“) jako provozovateli tohoto Serveru uděluje svůj výslovný souhlas v souladu s ustanovením § 5 zákona č. 101/2000 Sb. O ochraně osobních údajů a o změně některých zákonů, v platném znění (dále jen „zákon o ochraně osobních údajů“), se zpracováním uživatelem poskytnutých osobních údajů a dalších dat.
Uživatel poskytuje Správci osobní údaje v rozsahu: jméno, příjmení, e-mailová adresa, telefonický kontakt a další data, a to z důvodu projeveného zájmu o nemovitost, kde prostřednictvím služby Serveru Správce osloví Uživatel inzerenta uvedeného v detailu
nemovitosti - Ideální nájemce (IČ 29300631) se zájmem o jeho služby.
Uživatel tyto osobní údaje poskytuje dobrovolně a bere na vědomí, že součástí služeb Správce, které Správce Uživateli poskytuje, je vyhledání všech Uživateli vyhovujících (dle parametrů - cena, typ nemovitosti, lokalita atd.) nemovitostí. Správce za tímto účelem provozuje aplikace Hlídací pes a newsletter. Tyto služby je možné z každého zaslaného emailu odhlásit. Souhlas se zpracováním osobních údajů Uživatel poskytuje Správci na dobu neurčitou s tím, že svůj udělený souhlas může Uživatel kdykoliv na drese správce info@realitymix.cz odvolat. Správce garantuje Uživateli i další práva uvedené v ustanovení §11 a §21 zákoba č. 101/200 Sb. Ve znění pozdějších předpisů.
Více informací o zpracování údajů získáte zde (realitymix.cz/zasady-ochrany-osobnich-udaju)