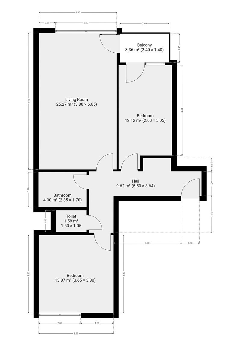
K dlouhodobému podnájmu nabízíme nadstandardní byt o dispozici 3+Kk, nacházející se v desátém patře nově dokončené rezidence Vital Kamýk od předního českého developera JRD v ulici Zimova na Praze 12.
Byt nabízí:
- 71 m² podlahové plochy
- 3,6 m² plochy lodžie
- rekuperace vzduchu ve všech místnostech
- venkovní elektrické žaluzie
- kvalitní laminátové podlahy
- garážové parkovací stání
- samostatný zděný sklep
- společnou kočárkárnu/kolárnu
- společnou terasu v 10. patře
K pronájmu je částečně zařízen.
V předsíni se nachází vestavěná šatní skříň s věšákem. Z předsíně se dostaneme do obývacího pokoje s kuchyňským koutem. Kuchyně se nabízí plně vybavena vestavnými spotřebiči - lednice s mrazákem, myčka nádobí, indukční varná deska, elektrická trouba a digestoř značek Electrolux a Liebherr. Obývací pokoj i ložnice jsou nezařízené. V koupelně se nachází sprchový kout, závěsná sanita a přípojka s vývodem na pračku. Okna jsou zde kvalitní trojskla s výbornou tepelnou i zvukovou izolací.
Developer JRD se zaměřuje na energeticky zdravé bydlení - energetická třída budovy B - velmi úsporná.
Byt k nastěhování ihned a hledá své první podnájemníky.
Majitel preferuje zájemce bez domácích mazlíčků.
Cena:
36 000 Kč / (za měsíc)
Poznámka:
vratná jistota, náklady na bydlení 5 300 Kč + elektřina, poplatek za podnájem
Uživatel serveru RealityMIX.cz (dále jen „Server“) dostupného na internetové adrese (URL) https://www.realitymix.cz, který provozuje společnost DALTEN media s.r.o., se sídlem Na Harfě 916/9a, Praha 9, 190 00, IČO: 271 35 306 (dále jen „Správce“) jako provozovateli tohoto Serveru uděluje svůj výslovný souhlas v souladu s ustanovením § 5 zákona č. 101/2000 Sb. O ochraně osobních údajů a o změně některých zákonů, v platném znění (dále jen „zákon o ochraně osobních údajů“), se zpracováním uživatelem poskytnutých osobních údajů a dalších dat.
Uživatel poskytuje Správci osobní údaje v rozsahu: jméno, příjmení, e-mailová adresa, telefonický kontakt a další data, a to z důvodu projeveného zájmu o nemovitost, kde prostřednictvím služby Serveru Správce osloví Uživatel inzerenta uvedeného v detailu
nemovitosti - Ideální nájemce (IČ 29300631) se zájmem o jeho služby.
Uživatel tyto osobní údaje poskytuje dobrovolně a bere na vědomí, že součástí služeb Správce, které Správce Uživateli poskytuje, je vyhledání všech Uživateli vyhovujících (dle parametrů - cena, typ nemovitosti, lokalita atd.) nemovitostí. Správce za tímto účelem provozuje aplikace Hlídací pes a newsletter. Tyto služby je možné z každého zaslaného emailu odhlásit. Souhlas se zpracováním osobních údajů Uživatel poskytuje Správci na dobu neurčitou s tím, že svůj udělený souhlas může Uživatel kdykoliv na drese správce info@realitymix.cz odvolat. Správce garantuje Uživateli i další práva uvedené v ustanovení §11 a §21 zákoba č. 101/200 Sb. Ve znění pozdějších předpisů.
Více informací o zpracování údajů získáte zde (realitymix.cz/zasady-ochrany-osobnich-udaju)