© 1999–2026 DALTEN media s.r.o.
U zeleného ptáka, Praha-Kunratice, Kunratice
41 500 Kč (za měsíc)U zeleného ptáka, Praha-Kunratice, Kunratice
| Cena: | 41 500 Kč / (za měsíc) |
| Poznámka: | zúčtovatelné poplatky 8.900 Kč + přepis elektřiny; NEPLATÍTE PROVIZI |
| Datum k nastěhování: | 02.10.2026 |
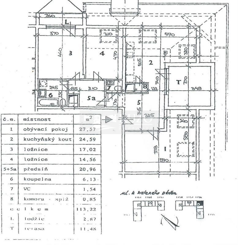
| Dispozice/podlahová plocha: | 4+kk/127 m² |
| Číslo zakázky: | REALITYMIX-22299 |