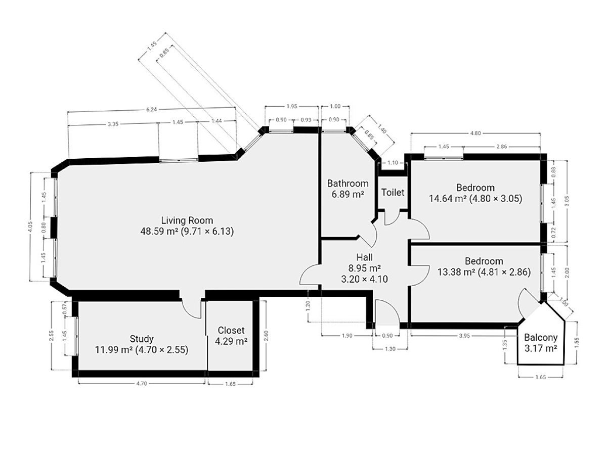
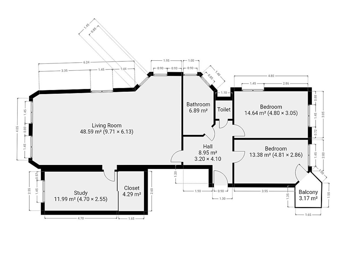
K dlouhodobému podnájmu Vám nabízíme krásný, plně vybavený byt o dispozici 4kk a výměrou nadstandartních 112m2 s vlastním garážovým stáním.
Byt se nachází ve 2. patře cihlového domu v pražských Kbelích. Skládá se z velké centrální chodby, ložnice se vstupem na balkón, dětského pokoje, velmi prostorné, samostatné koupelny s vanou, dvěma umyvadly a pračkou a oddělenou toaletou.
V bytě je dále velký obývací pokoj společný s kuchyňským koutem a pracovna / pokoj pro hosty, který navazuje na velmi prostornou šatnu.
Prakticky řešená kuchyně ve tvaru "U" je zařízena ve vysokém standardu, všemi vestavnými spotřebiči - myčka, lednice, varná deska, trouba, mikrovlnná trouba a digestoř. Kuchyně je velmi prakticky řešená s nadstandartním množstvím úložného prostoru.
K bytu také náleží garážové parkovací stání.
Byt se nachází ve velmi klidné lokalitě, s veškerou občanskou vybaveností na dosah. Základní i mateřská škola je od domu necelých 5 minut chůze. Autobusová zastávka poté dvě minuty.
Ve Kbelích také najdete kompletní občanskou vybavenost, několik menších obchodů s potravinami, dětská hřiště, sportovní i turistické vyžití.
Byt je k dispozici od 1.5.
Zálohové platby už obsahují zálohy na elektřinu a pojištění domácnosti.
Cena:
37 000 Kč / (za měsíc)
Poznámka:
vratná jistota, náklady na bydlení 7.200,-Kč poplatek za podnájem
Dispozice/podlahová plocha:
4+kk/112 m²
Číslo zakázky:
REALITYMIX-5243
Podrobné informace
Bezbariérový byt:ano
Dispozice bytu:4+kk
Číslo podlaží v domě:2
Počet podlaží objektu:4
Celková podlahová plocha:112 m²
Druh objektu:cihlová
Stav objektu:velmi dobrý
Vlastnictví:osobní
Vybaveno:ano
Umístění objektu:okraj obce
Doprava:vlak, dálnice, silnice, MHD, autobus
Občanská vybavenost:Škola, Školka, Zdravotnická zařízení, Pošta, Supermarket, Kompletní síť obchodů a služeb
Uživatel serveru RealityMIX.cz (dále jen „Server“) dostupného na internetové adrese (URL) https://www.realitymix.cz, který provozuje společnost DALTEN media s.r.o., se sídlem Na Harfě 916/9a, Praha 9, 190 00, IČO: 271 35 306 (dále jen „Správce“) jako provozovateli tohoto Serveru uděluje svůj výslovný souhlas v souladu s ustanovením § 5 zákona č. 101/2000 Sb. O ochraně osobních údajů a o změně některých zákonů, v platném znění (dále jen „zákon o ochraně osobních údajů“), se zpracováním uživatelem poskytnutých osobních údajů a dalších dat.
Uživatel poskytuje Správci osobní údaje v rozsahu: jméno, příjmení, e-mailová adresa, telefonický kontakt a další data, a to z důvodu projeveného zájmu o nemovitost, kde prostřednictvím služby Serveru Správce osloví Uživatel inzerenta uvedeného v detailu
nemovitosti - Ideální nájemce (IČ 29300631) se zájmem o jeho služby.
Uživatel tyto osobní údaje poskytuje dobrovolně a bere na vědomí, že součástí služeb Správce, které Správce Uživateli poskytuje, je vyhledání všech Uživateli vyhovujících (dle parametrů - cena, typ nemovitosti, lokalita atd.) nemovitostí. Správce za tímto účelem provozuje aplikace Hlídací pes a newsletter. Tyto služby je možné z každého zaslaného emailu odhlásit. Souhlas se zpracováním osobních údajů Uživatel poskytuje Správci na dobu neurčitou s tím, že svůj udělený souhlas může Uživatel kdykoliv na drese správce info@realitymix.cz odvolat. Správce garantuje Uživateli i další práva uvedené v ustanovení §11 a §21 zákoba č. 101/200 Sb. Ve znění pozdějších předpisů.
Více informací o zpracování údajů získáte zde (realitymix.cz/zasady-ochrany-osobnich-udaju)