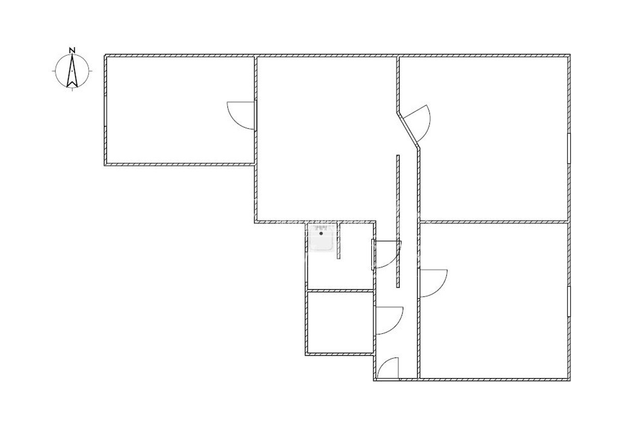
Dovolujeme si Vám nabídnout k pronájmu kancelářské prostory o celkové ploše 107m2, situované v přízemí cihlového domu v Praze 3 - Žižkov, v ulici Koldínova (roh s ulicí Jeseniova), v těsné blízkosti parku Parukářka.
Prostory sestávající z prostorné vstupní chodby s kuchyňským koutem, 3 samostatných kanceláří (každá cca 17m2), samostatné toalety s umyvadlem, a koupelny se sprchovým koutem.
Kanceláře se pronajímají jako nezařízené (část nábytku na fotografiích je možné odkoupit od současného nájemce, více informací při prohlídce). Z vybavení zůstává ze strany pronajímatele pouze kuchyňský kout (linka s dřezem, lednicí s menším mrazákem a mikrovlnou troubou) s barovým skleněným pultem, velká vestavěná skříň.
Nová eurookna s mřížemi, vytápění zajišťuje vlastní plynový kotel s termostatem, ohřev vody pak nový průtokový ohřívač. Podlahovou krytinu tvoří zátěžové koberce (ve 2 kancelářích), dlažba a parkety (vstupní chodba a 3. kancelář).
K dispozici optický internet.
Parkování možné na ulici před domem (rezidentní parkovací zóny Prahy 3).
Sídlo společnosti samozřejmostí.
Preferujeme dlouhodobého nájemníka s účelem podnikání administrativního charakteru.
K nastěhování od 1.1.2026 (po dohodě i dříve). Prohlídky jsou však možné již nyní.
Pro více informací či termín prohlídky mne neváhejte kdykoliv kontaktovat.
ID nabídky: N2277
Cena:
29 990 Kč / (za měsíc)
Poznámka:
+ záloha na domovní služby (cca 1.000,-Kč/měs.) + přepis el. a plynu na nájemce
Uživatel serveru RealityMIX.cz (dále jen „Server“) dostupného na internetové adrese (URL) https://www.realitymix.cz, který provozuje společnost DALTEN media s.r.o., se sídlem Na Harfě 916/9a, Praha 9, 190 00, IČO: 271 35 306 (dále jen „Správce“) jako provozovateli tohoto Serveru uděluje svůj výslovný souhlas v souladu s ustanovením § 5 zákona č. 101/2000 Sb. O ochraně osobních údajů a o změně některých zákonů, v platném znění (dále jen „zákon o ochraně osobních údajů“), se zpracováním uživatelem poskytnutých osobních údajů a dalších dat.
Uživatel poskytuje Správci osobní údaje v rozsahu: jméno, příjmení, e-mailová adresa, telefonický kontakt a další data, a to z důvodu projeveného zájmu o nemovitost, kde prostřednictvím služby Serveru Správce osloví Uživatel inzerenta uvedeného v detailu
nemovitosti - Dream House Reality s.r.o. (IČ 05894425) se zájmem o jeho služby.
Uživatel tyto osobní údaje poskytuje dobrovolně a bere na vědomí, že součástí služeb Správce, které Správce Uživateli poskytuje, je vyhledání všech Uživateli vyhovujících (dle parametrů - cena, typ nemovitosti, lokalita atd.) nemovitostí. Správce za tímto účelem provozuje aplikace Hlídací pes a newsletter. Tyto služby je možné z každého zaslaného emailu odhlásit. Souhlas se zpracováním osobních údajů Uživatel poskytuje Správci na dobu neurčitou s tím, že svůj udělený souhlas může Uživatel kdykoliv na drese správce info@realitymix.cz odvolat. Správce garantuje Uživateli i další práva uvedené v ustanovení §11 a §21 zákoba č. 101/200 Sb. Ve znění pozdějších předpisů.
Více informací o zpracování údajů získáte zde (realitymix.cz/zasady-ochrany-osobnich-udaju)