© 1999–2026 DALTEN media s.r.o.
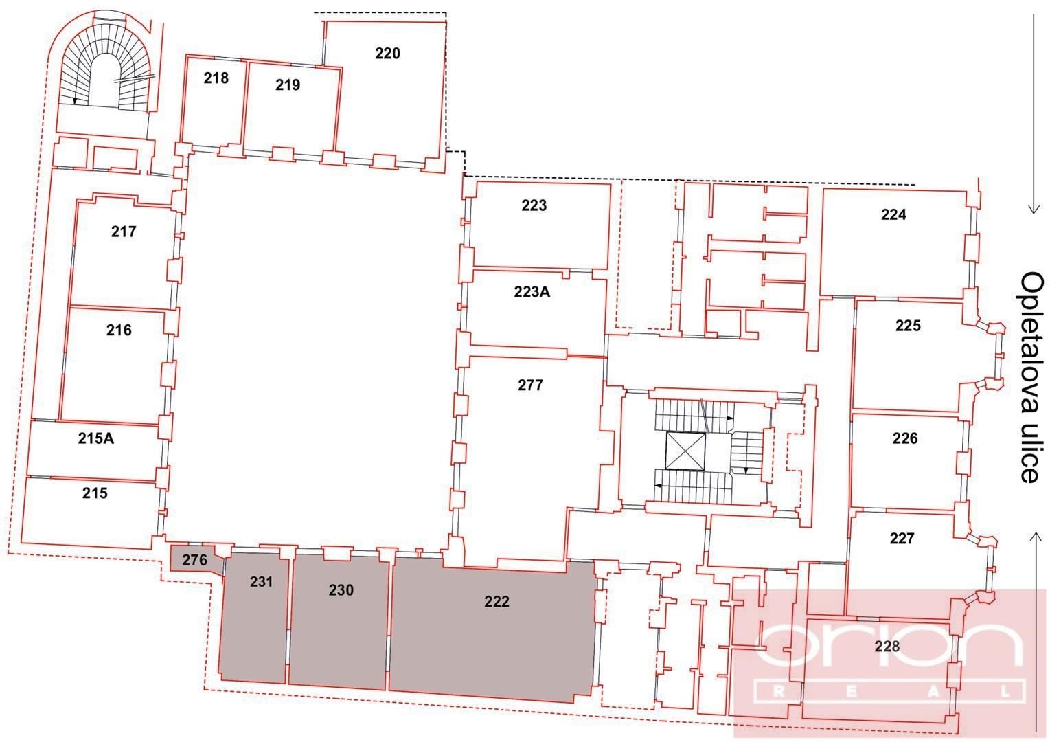
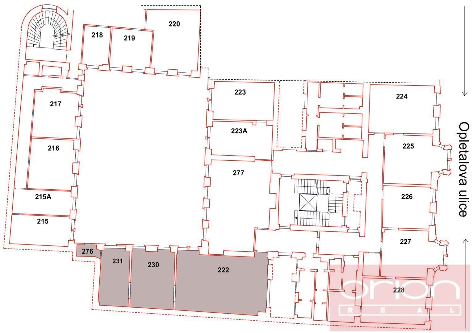
Opletalova, Praha 1, Nové Město
32 185 Kč (za měsíc)Opletalova, Praha 1, Nové Město
| Cena: | 32 185 Kč / (za měsíc) |
| Poznámka: | + popl. paušál 3.098,00 Kč + topení 2.733,00 Kč + elektřina, voda, ohřev vody a odvoz odpadu 500,00 Kč/měs./os. Uvedené ceny jsou bez DPH |
| Číslo zakázky: | REALITYMIX-009071 |