Pronájem kancelářských prostor: Praha 5 - Hlubočepy, Strakonická
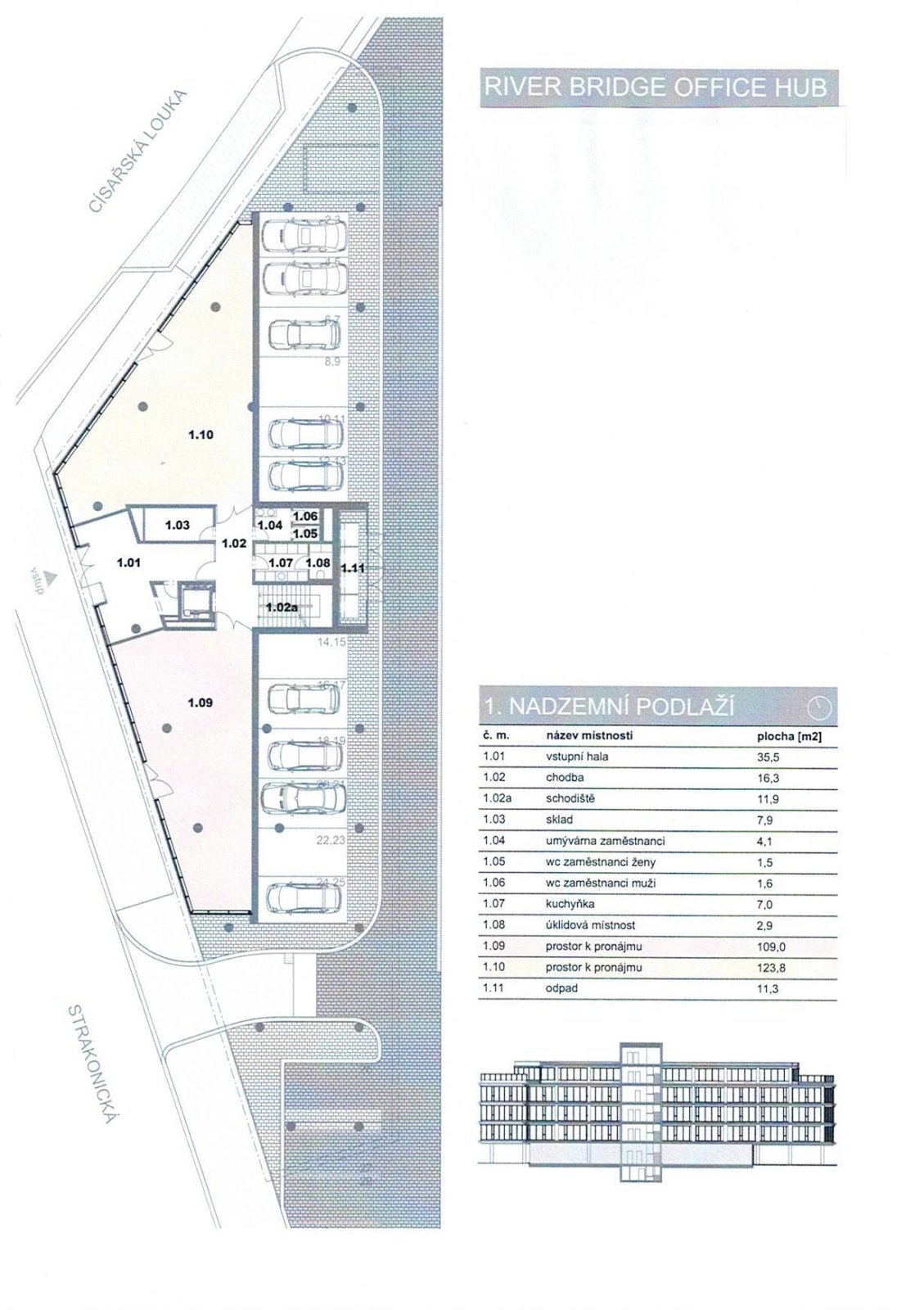
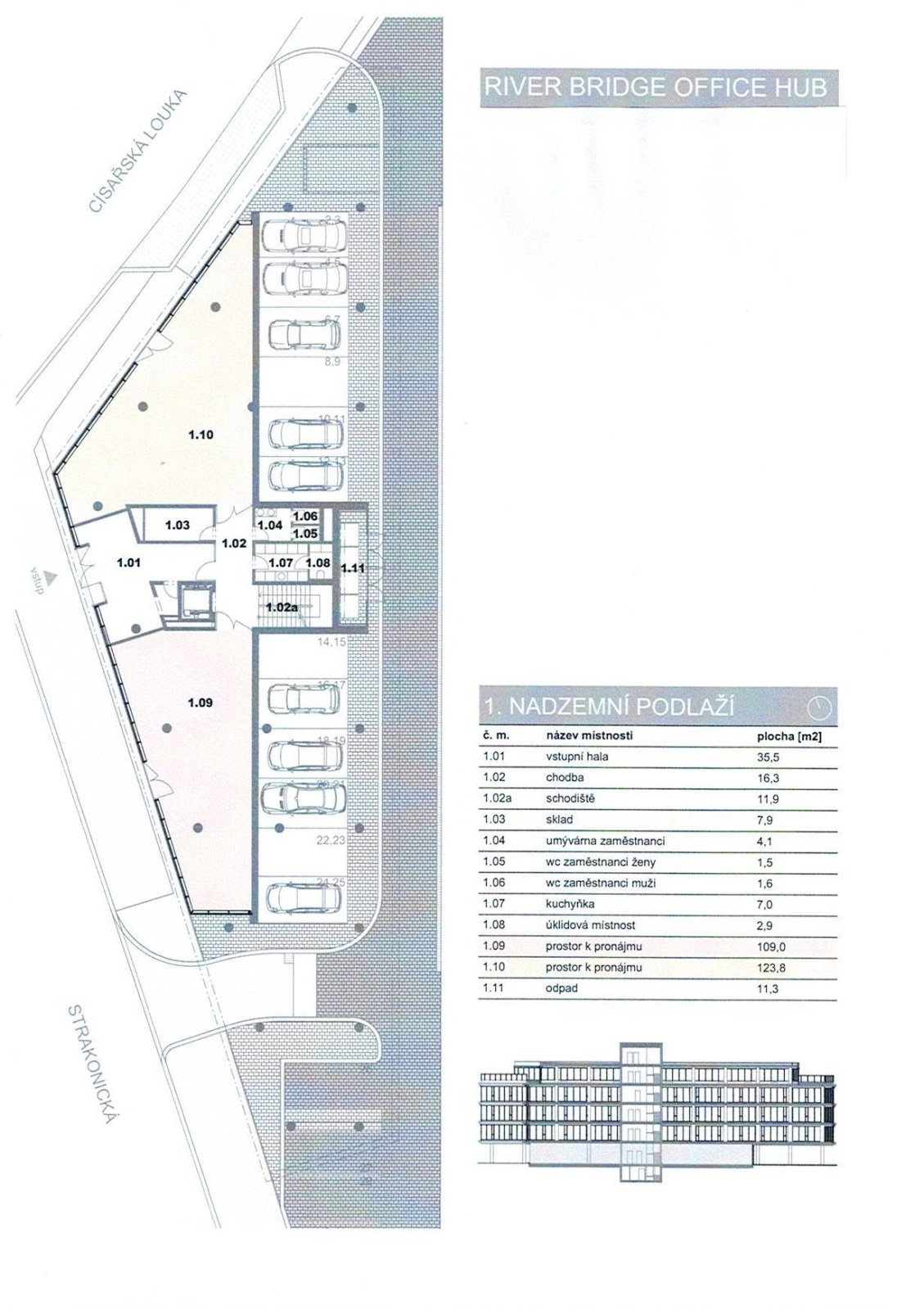
Nabízíme k pronájmu kancelářské prostory v přízemí administrativní budovy River Bridge Office Hub v atraktivní lokalitě Prahy 5. Prostory o rozloze 123,8 m2 a prostory o rozloze 109 m2 se nachází v přízemí (1NP) budovy s recepcí a 24/7 ostrahou. Součástí pronájmu je využití sociálního zázemí o rozloze 66 m2. Lokalita s veškerou občanskou vybaveností a výbornou dopravní dostupností autem i MHD. Jen pár minut od tramvajové zastávky Lihovar a několik minut od stanice metra Smíchovské nádraží. Blízký nájezd na Pražský okruh a návaznou dálniční síť.
Zvýhodněné nájemné po dobu prvních 3 měsíců činí 7,99 Euro/m2/měsíc + 21%DPH, plné nájemné činí 14,99 Euro/m2/měsíc + 21% DPH. Celkové nájemné uvedené v EUR se platí v Kč, které se přepočítává dle průměru kurzů za poslední 3 měsíce.
Cena za služby je 140 Kč/m2/měsíc + DPH a obsahuje: služby recepce + vrátnice, 24/7 ostraha, elektřina, vytápění, úklid a údržba společných prostor, odvoz odpadu, údržba přístupových komunikací a areálu RBOH.
K dispozici je parkovací stání za extra cenu za měsíc: krytá parkovací stání pod budovou 115 Euro + DPH, venkovní parkovací stání 85 Euro + DPH, parkovací stání za mostem 1,010 Kč + DPH.
Prostory jsou k nastěhování od března 2026. K dispozici více prostor k pronájmu v 1. až 3. patře budovy - pro více informací kontaktujte, prosím, naši kancelář.
Uživatel serveru RealityMIX.cz (dále jen „Server“) dostupného na internetové adrese (URL) https://www.realitymix.cz, který provozuje společnost DALTEN media s.r.o., se sídlem Na Harfě 916/9a, Praha 9, 190 00, IČO: 271 35 306 (dále jen „Správce“) jako provozovateli tohoto Serveru uděluje svůj výslovný souhlas v souladu s ustanovením § 5 zákona č. 101/2000 Sb. O ochraně osobních údajů a o změně některých zákonů, v platném znění (dále jen „zákon o ochraně osobních údajů“), se zpracováním uživatelem poskytnutých osobních údajů a dalších dat.
Uživatel poskytuje Správci osobní údaje v rozsahu: jméno, příjmení, e-mailová adresa, telefonický kontakt a další data, a to z důvodu projeveného zájmu o nemovitost, kde prostřednictvím služby Serveru Správce osloví Uživatel inzerenta uvedeného v detailu
nemovitosti - ORION Realit, s.r.o. (IČ 25116371) se zájmem o jeho služby.
Uživatel tyto osobní údaje poskytuje dobrovolně a bere na vědomí, že součástí služeb Správce, které Správce Uživateli poskytuje, je vyhledání všech Uživateli vyhovujících (dle parametrů - cena, typ nemovitosti, lokalita atd.) nemovitostí. Správce za tímto účelem provozuje aplikace Hlídací pes a newsletter. Tyto služby je možné z každého zaslaného emailu odhlásit. Souhlas se zpracováním osobních údajů Uživatel poskytuje Správci na dobu neurčitou s tím, že svůj udělený souhlas může Uživatel kdykoliv na drese správce info@realitymix.cz odvolat. Správce garantuje Uživateli i další práva uvedené v ustanovení §11 a §21 zákoba č. 101/200 Sb. Ve znění pozdějších předpisů.
Více informací o zpracování údajů získáte zde (realitymix.cz/zasady-ochrany-osobnich-udaju)