Pronájem, kompletně zrekonstruovaného bytu 2kk, Praha 7, Holešovice, ulice V Háji
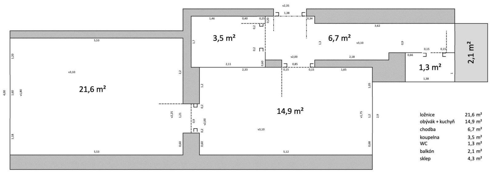
Pronájem, krásného, kompletně zrekonstruovaného bytu 2kk, 48 m2 + balkon 2,1 m2 + sklep 4,3 m2, ve 4. podlaží cihlového domu s výtahem, ve skvělé lokalitě, Praha 7, Holešovice, ulice V Háji. V bytě nové rozvody, topná tělesa, štuky, výmalba a led osvětlení. Nové podlahy vinyl a velkoformátová dlažba. Kuchyňská linka s indukční varnou deskou, horkovzdušnou troubou, myčkou a digestoří. V koupelně sprchový kout, umyvadlo v imitaci přírodního kamene, koupelnové skříňky, topný žebřík a prostor s přípojkou pro pračku. Toaleta samostatná s oknem a skříňkou. Orientace oken: ložnice na východ, obývací pokoj s kuch. koutem, balkon, chodba a wc na západ do dvora. Vytápění ohřev vody novým elektrokotlem. Dům má novou fasádu. V místě kompletní občanská vybavenost, kulturní a sportovní vyžití. Restaurace, kavárny. Procházky a cyklostezky podél Vltavy. Měsíční nájemné 25.000,-Kč + služby 2.000,-Kč + elektřina. Kauce 30.000,-Kč. Provize RK ve výši jednoho nájmu + 21%DPH. Byt je okamžitě volný.
Uživatel serveru RealityMIX.cz (dále jen „Server“) dostupného na internetové adrese (URL) https://www.realitymix.cz, který provozuje společnost DALTEN media s.r.o., se sídlem Na Harfě 916/9a, Praha 9, 190 00, IČO: 271 35 306 (dále jen „Správce“) jako provozovateli tohoto Serveru uděluje svůj výslovný souhlas v souladu s ustanovením § 5 zákona č. 101/2000 Sb. O ochraně osobních údajů a o změně některých zákonů, v platném znění (dále jen „zákon o ochraně osobních údajů“), se zpracováním uživatelem poskytnutých osobních údajů a dalších dat.
Uživatel poskytuje Správci osobní údaje v rozsahu: jméno, příjmení, e-mailová adresa, telefonický kontakt a další data, a to z důvodu projeveného zájmu o nemovitost, kde prostřednictvím služby Serveru Správce osloví Uživatel inzerenta uvedeného v detailu
nemovitosti - BLANÍK REALITY s.r.o. (IČ 27657558) se zájmem o jeho služby.
Uživatel tyto osobní údaje poskytuje dobrovolně a bere na vědomí, že součástí služeb Správce, které Správce Uživateli poskytuje, je vyhledání všech Uživateli vyhovujících (dle parametrů - cena, typ nemovitosti, lokalita atd.) nemovitostí. Správce za tímto účelem provozuje aplikace Hlídací pes a newsletter. Tyto služby je možné z každého zaslaného emailu odhlásit. Souhlas se zpracováním osobních údajů Uživatel poskytuje Správci na dobu neurčitou s tím, že svůj udělený souhlas může Uživatel kdykoliv na drese správce info@realitymix.cz odvolat. Správce garantuje Uživateli i další práva uvedené v ustanovení §11 a §21 zákoba č. 101/200 Sb. Ve znění pozdějších předpisů.
Více informací o zpracování údajů získáte zde (realitymix.cz/zasady-ochrany-osobnich-udaju)