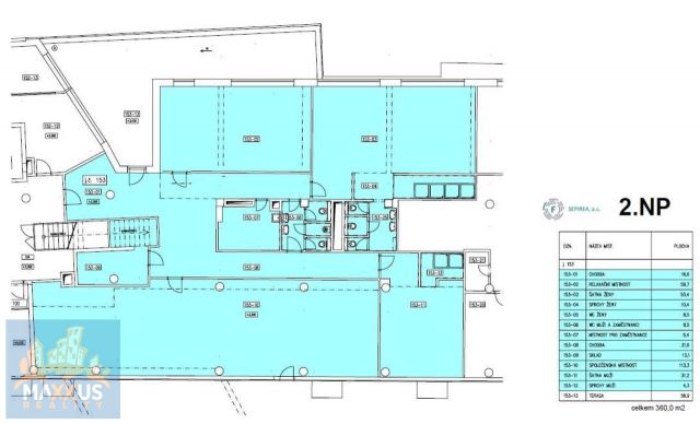
Pronájem nebytových prostor (360 m2), Agora Flora, Praha 3 - Vinohrady, Chrudimská
Neplatíte provizi RK! Nabízíme k dlouhodobému pronájmu nebytové prostory o ploše 360 m2 ve 2. nadzemním podlaží objektu AGORA FLORA se vstupem z pasáže, která spojuje ulici Hradeckou a Chrudimskou. Aktuálně jsou prostory provozovány jako studio HOT YOGA. Prostory jsou zkolaudovány jako „centrum volného času“, takže jsou vhodné pro aktivity podobného zaměření (yoga, pilates, pohybové aktivity, taneční studio, masáže apod.). Případně lze prostory po úpravě a změně užívání využít i jako kanceláře či zdravotnické zařízení. Termín počátku nájemního vztahu dle dohody. Po dohodě se stávajícím nájemcem lze za odstupné převzít zařízení a vybavení studia. Nájemné bude každoročně indexováno dle aktuálních údajů ČSÚ o průměrném růstu indexu spotřebitelských cen za předchozí kalendářní rok. Pronajímatel preferuje nájemní smlouvu na dobu určitou, min. 3 roky. Jistota ve výši 2 měsíčních nájmů včetně DPH a 2 záloh na služby. Technická specifikace nebytového prostoru:o elektrická energie, přívod teplé a studené vody, centrální vytápění o vlastní sociální zázemí o klimatizační systém – topení a chlazení o vstup do společných prostor na čipy o světlá výška 2,9 m Vybavení budovy:o ostraha 24/7 o EPS, CCTV o vstup na čipy o podzemní garáže Pronajímatel je připraven: o konzultovat technické požadavky nájemce na úpravu prostor o realizovat stavební úpravy prostor o zajistit projednávání požadovaných změn s dotčenými orgány
Cena:
350 Kč / (za m2/měsíc)
Poznámka:
+ záloha na služby a energie 145 Kč /m2 + 2x kauce
Uživatel serveru RealityMIX.cz (dále jen „Server“) dostupného na internetové adrese (URL) https://www.realitymix.cz, který provozuje společnost DALTEN media s.r.o., se sídlem Na Harfě 916/9a, Praha 9, 190 00, IČO: 271 35 306 (dále jen „Správce“) jako provozovateli tohoto Serveru uděluje svůj výslovný souhlas v souladu s ustanovením § 5 zákona č. 101/2000 Sb. O ochraně osobních údajů a o změně některých zákonů, v platném znění (dále jen „zákon o ochraně osobních údajů“), se zpracováním uživatelem poskytnutých osobních údajů a dalších dat.
Uživatel poskytuje Správci osobní údaje v rozsahu: jméno, příjmení, e-mailová adresa, telefonický kontakt a další data, a to z důvodu projeveného zájmu o nemovitost, kde prostřednictvím služby Serveru Správce osloví Uživatel inzerenta uvedeného v detailu
nemovitosti - K&Š MAXXUS REALITY, s.r.o. (IČ 03666531) se zájmem o jeho služby.
Uživatel tyto osobní údaje poskytuje dobrovolně a bere na vědomí, že součástí služeb Správce, které Správce Uživateli poskytuje, je vyhledání všech Uživateli vyhovujících (dle parametrů - cena, typ nemovitosti, lokalita atd.) nemovitostí. Správce za tímto účelem provozuje aplikace Hlídací pes a newsletter. Tyto služby je možné z každého zaslaného emailu odhlásit. Souhlas se zpracováním osobních údajů Uživatel poskytuje Správci na dobu neurčitou s tím, že svůj udělený souhlas může Uživatel kdykoliv na drese správce info@realitymix.cz odvolat. Správce garantuje Uživateli i další práva uvedené v ustanovení §11 a §21 zákoba č. 101/200 Sb. Ve znění pozdějších předpisů.
Více informací o zpracování údajů získáte zde (realitymix.cz/zasady-ochrany-osobnich-udaju)