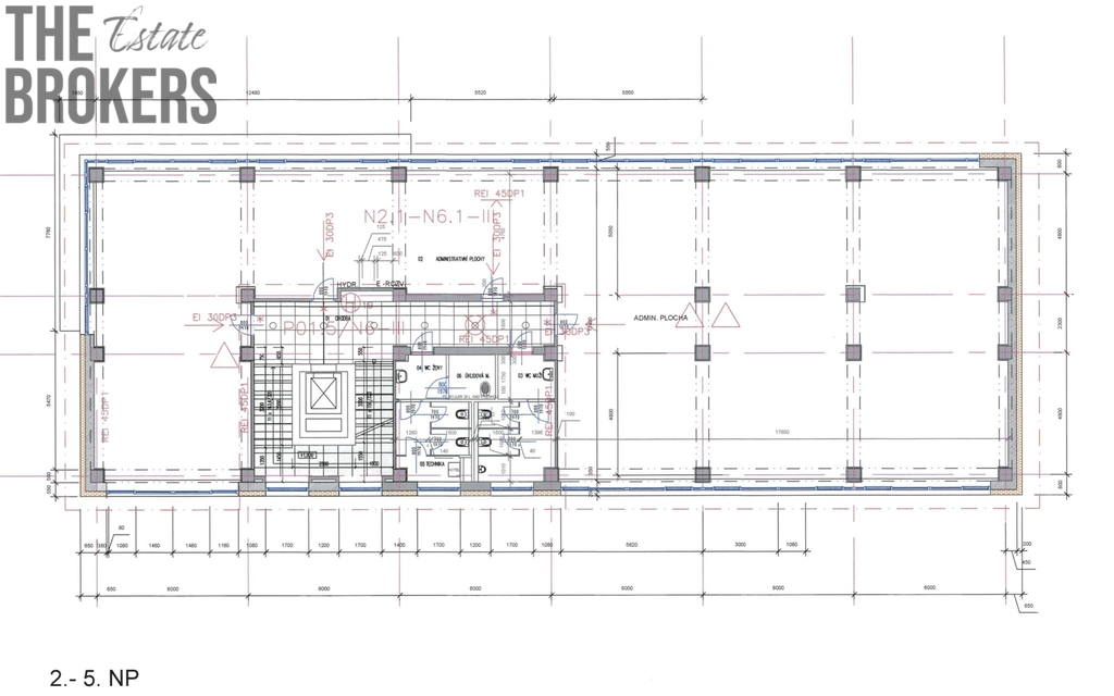
Exkluzivně nabízíme k pronájmu kancelářský prostor o celkové výměře 375 m² ve 2. nadzemním podlaží budovy ( 1. patro) na adrese Průběžná 76, Praha 10 – Strašnice. Hlavní část patra tvoří otevřený prostor o velikosti 347,35 m², který je možné upravit jako open space nebo rozčlenit na menší kanceláře a zasedací místnosti podle požadavků nájemce. Součástí zázemí jsou předsíň a WC pro ženy (3,48 m² + 6,19 m²), předsíň a WC pro muže (3,45 m² + 9,18 m²), technická místnost (2,44 m²), úklidová místnost (2,85 m²), m²). Patro je připraveno pro vedení datových rozvodů v podhledech, nabízí možnost instalace klimatizace, disponuje rozvody vody a kanalizace, ústředním vytápěním radiátory, silnoproudem i slaboproudem a napojením na vzduchotechnické trasy. Podlahy jsou betonové v hlavním open space a keramické v sociálním zázemí; stěny tvoří sádrové omítky a stropy kazetové SDK podhledy. Standardní výška stropu je přibližně 2,6 m. Prostor je přístupný výtahem i schodištěm a je vhodný pro dlouhodobé administrativní nebo kombinované využití díky dobré dostupnosti MHD, napojení na hlavní pražské tahy a občanské vybavenosti v bezprostředním okolí. V domě máme další dvě patra o stejné rozloze k pronájmu. Preferujeme dlouhodobé nájemce. V domě je recepce a čekací hala pro hosty. Vstup bude zajištěn přes čipové karty.
Cena:
112 500 Kč / (za měsíc)
Poznámka:
+ služby + DPH + parkovací místo ( ke každému patru jsou dvě místa)
Datum k nastěhování:
01.05.2026
Číslo zakázky:
REALITYMIX-0675
Podrobné informace
Plocha:375 m²
Druh objektu:cihlová
Stav objektu:velmi dobrý
Druh prostor:Kanceláře
Ostatní:Bezbarierový přístup, Výtah
Doprava:silnice, MHD, autobus
Elektřina:Elektro - 230 V, Elektro - 400 V
Voda:Voda - dálkový vodovod
Telekomunikace:Telefon, Internet
Ostatní rozvody:Kabelové rozvody
Energetická náročnost budovy:D - Méně úsporná
Ukazatel energetické náročnosti budovy:133 kWh/m²
Energetický ukazatel podle vyhlášky:č. 78/2013 Sb.
Uživatel serveru RealityMIX.cz (dále jen „Server“) dostupného na internetové adrese (URL) https://www.realitymix.cz, který provozuje společnost DALTEN media s.r.o., se sídlem Na Harfě 916/9a, Praha 9, 190 00, IČO: 271 35 306 (dále jen „Správce“) jako provozovateli tohoto Serveru uděluje svůj výslovný souhlas v souladu s ustanovením § 5 zákona č. 101/2000 Sb. O ochraně osobních údajů a o změně některých zákonů, v platném znění (dále jen „zákon o ochraně osobních údajů“), se zpracováním uživatelem poskytnutých osobních údajů a dalších dat.
Uživatel poskytuje Správci osobní údaje v rozsahu: jméno, příjmení, e-mailová adresa, telefonický kontakt a další data, a to z důvodu projeveného zájmu o nemovitost, kde prostřednictvím služby Serveru Správce osloví Uživatel inzerenta uvedeného v detailu
nemovitosti - The Brokers s.r.o. (IČ 05138884) se zájmem o jeho služby.
Uživatel tyto osobní údaje poskytuje dobrovolně a bere na vědomí, že součástí služeb Správce, které Správce Uživateli poskytuje, je vyhledání všech Uživateli vyhovujících (dle parametrů - cena, typ nemovitosti, lokalita atd.) nemovitostí. Správce za tímto účelem provozuje aplikace Hlídací pes a newsletter. Tyto služby je možné z každého zaslaného emailu odhlásit. Souhlas se zpracováním osobních údajů Uživatel poskytuje Správci na dobu neurčitou s tím, že svůj udělený souhlas může Uživatel kdykoliv na drese správce info@realitymix.cz odvolat. Správce garantuje Uživateli i další práva uvedené v ustanovení §11 a §21 zákoba č. 101/200 Sb. Ve znění pozdějších předpisů.
Více informací o zpracování údajů získáte zde (realitymix.cz/zasady-ochrany-osobnich-udaju)