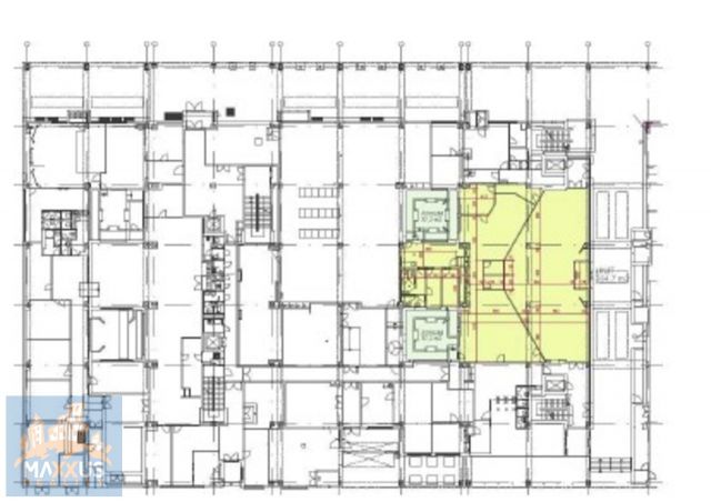
Pronájem obchodních prostor (384,70 m2), Praha 4 - Chodov, Hráského
Neplatíte provizi RK. Nabízíme k dlouhodobému pronájmu obchodní prostory o rozloze 384,70 m2umístěné ve 1. nadzemním podlaží komerčního objektu na Praze 4 - Chodov, ul. Hráského. K nastěhování dle dohody.Centrální recepce, non-stop ostraha objektu, přístup na magnetické karty, venkovní parkování, moderní výtahy, otevíratelná okna, venkovní žaluzie, bezbariérový přístup, klimatizace.Budova Hráského se nachází vedle obchodního centra Chodov, na místě s výbornou dostupností autem i metrem, které je centrem života jižní části Prahy. V blízkosti se nachází pestrá škála obchodů a služeb. Budova nabízí flexibilní kancelářské prostory s dobrým poměrem ceny a standardu vybavení.Výhodná poloha přímo na metru C Chodov. Skvělá dopravní dostupnost: 25 min. Hlavní nádraží, 1 min. dálnice D1 a D4, 25 min. centrum (Václavské nám.), 30 min. letiště Václava Havla.Nájemné: 10,46 EUR/m2/měsíc.Servisní poplatky: 150 Kč/m2/měsíc.Ceny jsou uvedeny bez DPH.
Uživatel serveru RealityMIX.cz (dále jen „Server“) dostupného na internetové adrese (URL) https://www.realitymix.cz, který provozuje společnost DALTEN media s.r.o., se sídlem Na Harfě 916/9a, Praha 9, 190 00, IČO: 271 35 306 (dále jen „Správce“) jako provozovateli tohoto Serveru uděluje svůj výslovný souhlas v souladu s ustanovením § 5 zákona č. 101/2000 Sb. O ochraně osobních údajů a o změně některých zákonů, v platném znění (dále jen „zákon o ochraně osobních údajů“), se zpracováním uživatelem poskytnutých osobních údajů a dalších dat.
Uživatel poskytuje Správci osobní údaje v rozsahu: jméno, příjmení, e-mailová adresa, telefonický kontakt a další data, a to z důvodu projeveného zájmu o nemovitost, kde prostřednictvím služby Serveru Správce osloví Uživatel inzerenta uvedeného v detailu
nemovitosti - K&Š MAXXUS REALITY, s.r.o. (IČ 03666531) se zájmem o jeho služby.
Uživatel tyto osobní údaje poskytuje dobrovolně a bere na vědomí, že součástí služeb Správce, které Správce Uživateli poskytuje, je vyhledání všech Uživateli vyhovujících (dle parametrů - cena, typ nemovitosti, lokalita atd.) nemovitostí. Správce za tímto účelem provozuje aplikace Hlídací pes a newsletter. Tyto služby je možné z každého zaslaného emailu odhlásit. Souhlas se zpracováním osobních údajů Uživatel poskytuje Správci na dobu neurčitou s tím, že svůj udělený souhlas může Uživatel kdykoliv na drese správce info@realitymix.cz odvolat. Správce garantuje Uživateli i další práva uvedené v ustanovení §11 a §21 zákoba č. 101/200 Sb. Ve znění pozdějších předpisů.
Více informací o zpracování údajů získáte zde (realitymix.cz/zasady-ochrany-osobnich-udaju)