Pronájem obchodních prostor 55 m2, ul. Břehová, Praha 1-Josefov
Zprostředkujeme Vám pronájem nově zrekonstruovaných komerčních prostor o velikosti 55 m² v jedné z nejprestižnějších lokalit centra Prahy: ulice Břehová, jen několik kroků od Pařížské ulice, Praha 1-Josefov.
Prostor byl kompletně a velmi pečlivě zrekonstruován s cílem vytvořit reprezentativní místo pro práci i klienty. Nakonec došlo ke změně podnikatelských plánů, a proto je nyní možnost převzít již hotový prostor bez starostí, čekání a dalších stavebních investic, pouze s kompenzací části nákladů na rekonstrukce.
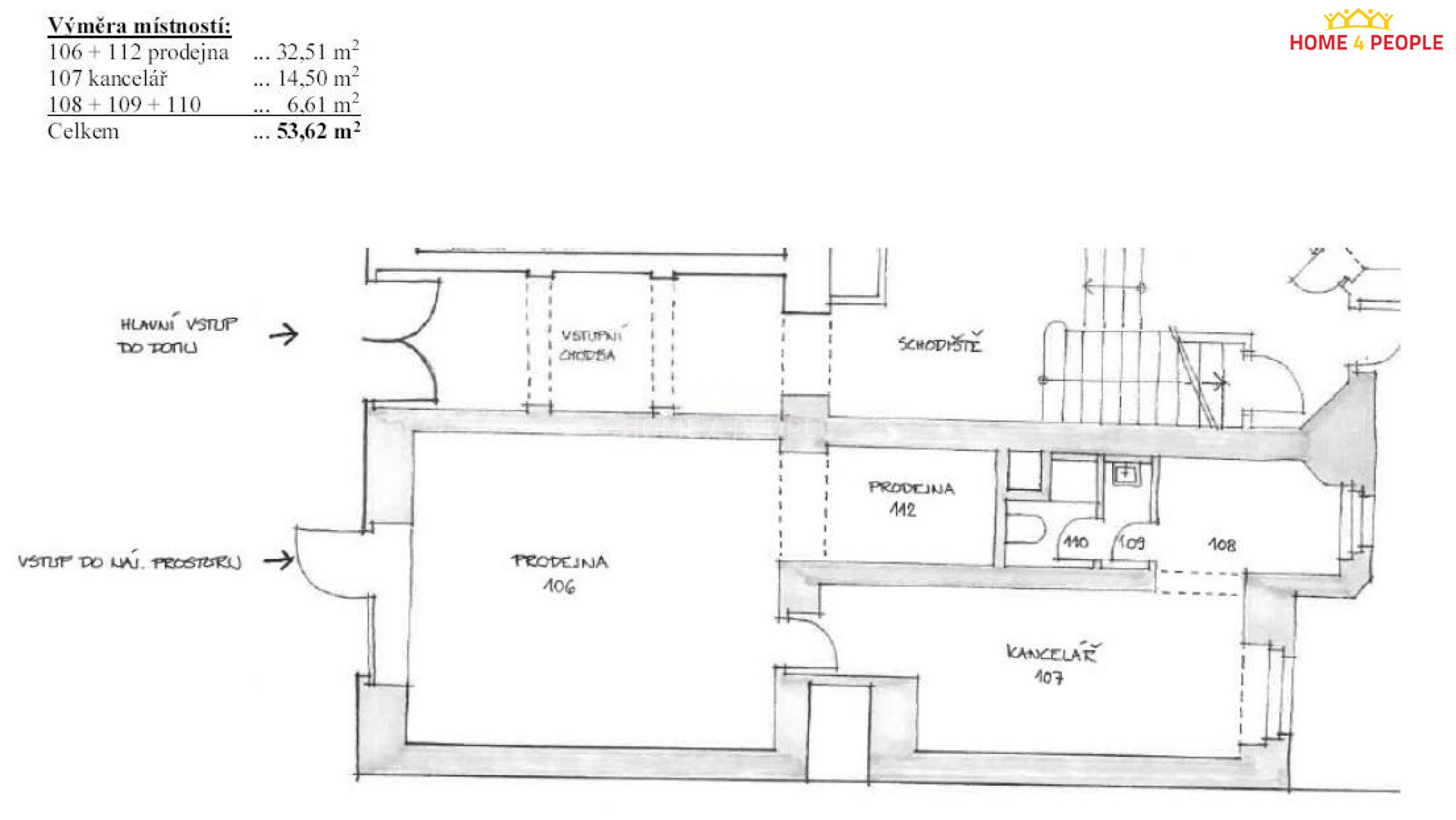
Plocha 55 m² – praktická dispozice, kterou tvoří:
• větší vstupní místnost (recepce / open space)
• samostatný kancelářský prostor vzadu
• druhá místnost (pracovna / zasedačka / sklad)
• kuchyňka
• toaleta
Vše je úplně nové, připravené k okamžitému využití.
Odstupné: 700 000 Kč (částka k jednání)
Nájemné: 60 000 Kč / měsíc
Kauce: 2× nájem
Rekonstrukce vyšla původního nájemce na více než 50 000 €, takže nový nájemce získá hotové moderní prostory v prémiové kvalitě, bez nutnosti řešit stavební práce.
Prostory se hodí například pro využití jako:
✔ kancelář
✔ showroom
✔ studio / beauty služby
✔ konzultační nebo klientské centrum
✔ designovou provozovnu / obchodní prostor
Prestižní adresa v atraktivní lokalitě – centru Prahy se skvělou dostupností (množství parkovacích míst v okolí, 500 m se nachází stanice metra-Staroměstská).
Pro více informací kontaktujte prosím realitní makléřku – ráda Vám zodpovím dotazy nebo domluvím prohlídku. Tuto nemovitost doporučuji! Ev. číslo: 32110.
Cena:
60 000 Kč / (za měsíc)
Poznámka:
nově zrekonstruované prostory se přenechávají za poloviční investované náklady, tj. ve výši 700 tis.
Uživatel serveru RealityMIX.cz (dále jen „Server“) dostupného na internetové adrese (URL) https://www.realitymix.cz, který provozuje společnost DALTEN media s.r.o., se sídlem Na Harfě 916/9a, Praha 9, 190 00, IČO: 271 35 306 (dále jen „Správce“) jako provozovateli tohoto Serveru uděluje svůj výslovný souhlas v souladu s ustanovením § 5 zákona č. 101/2000 Sb. O ochraně osobních údajů a o změně některých zákonů, v platném znění (dále jen „zákon o ochraně osobních údajů“), se zpracováním uživatelem poskytnutých osobních údajů a dalších dat.
Uživatel poskytuje Správci osobní údaje v rozsahu: jméno, příjmení, e-mailová adresa, telefonický kontakt a další data, a to z důvodu projeveného zájmu o nemovitost, kde prostřednictvím služby Serveru Správce osloví Uživatel inzerenta uvedeného v detailu
nemovitosti - HOME 4 PEOPLE (IČ 29132886) se zájmem o jeho služby. Tato společnost je součástí seskupení/sítě/franšízového modelu realitních kanceláří, jejich seznam můžete zobrazit kliknutím na tento odkaz.
Dumrealit.cz (IČ 00537861) , HOME 4 PEOPLE (IČ 29132886) , Reality 11 (IČ 29132886) , REAL ESTATE CZECH REPUBLIC a.s. (IČ 29132886) , Národní Realitní Holding a.s. (IČ 02918897)
Uživatel tyto osobní údaje poskytuje dobrovolně a bere na vědomí, že součástí služeb Správce, které Správce Uživateli poskytuje, je vyhledání všech Uživateli vyhovujících (dle parametrů - cena, typ nemovitosti, lokalita atd.) nemovitostí. Správce za tímto účelem provozuje aplikace Hlídací pes a newsletter. Tyto služby je možné z každého zaslaného emailu odhlásit. Souhlas se zpracováním osobních údajů Uživatel poskytuje Správci na dobu neurčitou s tím, že svůj udělený souhlas může Uživatel kdykoliv na drese správce info@realitymix.cz odvolat. Správce garantuje Uživateli i další práva uvedené v ustanovení §11 a §21 zákoba č. 101/200 Sb. Ve znění pozdějších předpisů.
Více informací o zpracování údajů získáte zde (realitymix.cz/zasady-ochrany-osobnich-udaju)