Pronájem obchodního prostoru 300 m, náměstí Dr. Václava Holého, Praha - Libeň.
Pronájem obchodního prostoru 300 m, náměstí Dr. Václava Holého, Praha - Libeň.
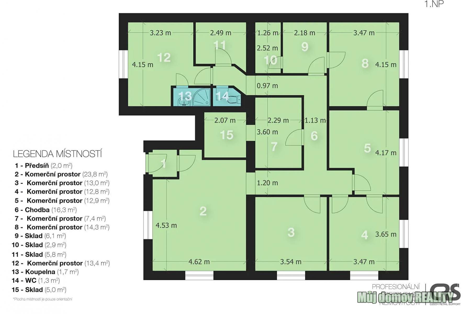
Nabízíme k pronájmu atraktivní komerční prostory o celkové výměře 300 m v dynamicky se rozvíjející části Prahy 8 Libeň. Nemovitost se nachází přímo na náměstí Dr. Václava Holého, v přízemí dobře dostupného objektu s výbornou viditelností. Prostory jsou vhodné pro široké spektrum podnikatelských aktivit, od zdravotnických a poradenských služeb přes administrativu až po specializované provozovny či showroom.
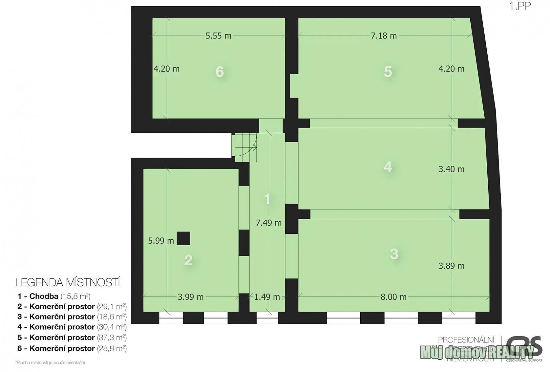
Objekt má dvě podlaží. V přízemí se nachází hlavní obchodní část s několika samostatnými místnostmi, čekárnou a sociálním zázemím. Suterén nabízí další plochu, kterou lze využít jako sklad, archiv, technické zázemí, dílnu nebo doplňkový provozní prostor. Tato kombinace výrazně rozšiřuje možnosti využití celé nemovitosti a přináší nájemci vysokou míru flexibility.
Budova byla více než 30 let úspěšně provozována jako veterinární klinika se stálou klientelou. Nový nájemce tak může navázat na zavedenou tradici zdravotnických služeb, případně prostory upravit dle vlastního podnikatelského záměru. Dispozice umožňuje snadné přizpůsobení konkrétním potřebám a provoz je možné zahájit bez zbytečných prodlev.
Lokalita nabízí výbornou dopravní dostupnost. Tramvajová zastávka se nachází přímo u objektu a stanice metra Palmovka je v docházkové vzdálenosti. V okolí je hustá rezidenční i komerční zástavba, což zajišťuje vysokou frekvenci pohybu lidí a potenciálních klientů. V blízkosti se nachází obchody, restaurace, služby i další občanská vybavenost.
Užitná plocha činí 300 m. Stavba je cihlová, v dobrém technickém stavu, patrového typu. Energetická náročnost budovy je třídy G mimořádně nehospodárná. Elektřina, voda a odpady se přepisují na nájemce. Prostor je k nastěhování ihned.
Měsíční nájemné činí 74 750 Kč. Zálohy na poplatky přibližně 10 000 Kč měsíčně. Vratná kauce 74 750 Kč. Provize realitní kanceláři 74 750 Kč + DPH.
Kontakt
Realitní kancelář: Můj domov REALITY
Makléř: Lidiya Savynets
Komunikační aplikace: Viber / Telegram: @LidiyaSyvynets, WhatsApp na tel.: čísle 770 677 459/
Pro více informací nebo sjednání osobní prohlídky mě neváhejte kontaktovat.
Tento prostor může být novým centrem vašeho podnikání v atraktivní části Prahy.
Uživatel serveru RealityMIX.cz (dále jen „Server“) dostupného na internetové adrese (URL) https://www.realitymix.cz, který provozuje společnost DALTEN media s.r.o., se sídlem Na Harfě 916/9a, Praha 9, 190 00, IČO: 271 35 306 (dále jen „Správce“) jako provozovateli tohoto Serveru uděluje svůj výslovný souhlas v souladu s ustanovením § 5 zákona č. 101/2000 Sb. O ochraně osobních údajů a o změně některých zákonů, v platném znění (dále jen „zákon o ochraně osobních údajů“), se zpracováním uživatelem poskytnutých osobních údajů a dalších dat.
Uživatel poskytuje Správci osobní údaje v rozsahu: jméno, příjmení, e-mailová adresa, telefonický kontakt a další data, a to z důvodu projeveného zájmu o nemovitost, kde prostřednictvím služby Serveru Správce osloví Uživatel inzerenta uvedeného v detailu
nemovitosti - Můj Domov Reality s.r.o. (IČ 08487316) se zájmem o jeho služby.
Uživatel tyto osobní údaje poskytuje dobrovolně a bere na vědomí, že součástí služeb Správce, které Správce Uživateli poskytuje, je vyhledání všech Uživateli vyhovujících (dle parametrů - cena, typ nemovitosti, lokalita atd.) nemovitostí. Správce za tímto účelem provozuje aplikace Hlídací pes a newsletter. Tyto služby je možné z každého zaslaného emailu odhlásit. Souhlas se zpracováním osobních údajů Uživatel poskytuje Správci na dobu neurčitou s tím, že svůj udělený souhlas může Uživatel kdykoliv na drese správce info@realitymix.cz odvolat. Správce garantuje Uživateli i další práva uvedené v ustanovení §11 a §21 zákoba č. 101/200 Sb. Ve znění pozdějších předpisů.
Více informací o zpracování údajů získáte zde (realitymix.cz/zasady-ochrany-osobnich-udaju)