Nabízíme k pronájmu prostorný dům 5+1 o velikosti 198m² a pozemkem o velikosti 411m², situovaný ve vilové čtvrti v Pražských Stodůlkách. Na sousedním pozemku právě probíhá výstavba rodinného domu. K dispozici je balkon, praktický suterén domu a dvě parkovací stání přímo na pozemku.
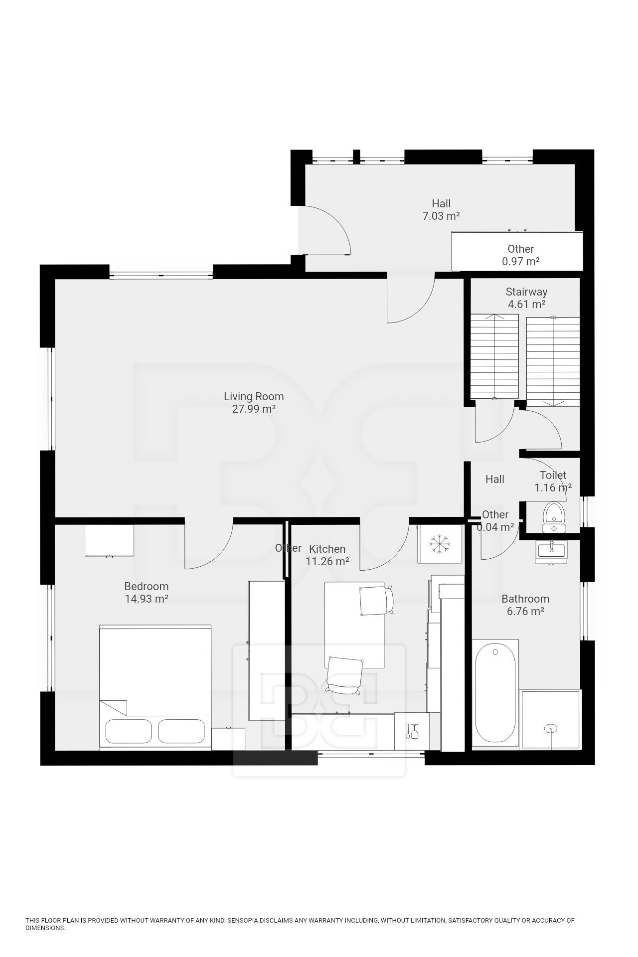
První podlaží:
• Prosklená vstupní předsíň s vestavěnou skříní
• Prostorný obývací pokoj
• Samostatná kuchyně s jídelním stolem a židlemi
• Kuchyňská linka je vybavena lednicí, elektrickou troubou, varnou deskou, mikrovlnou troubou, myčkou a digestoří
• Ložnice disponuje velkou šatní skříní a dvojpostelí
• Koupelna s vanou, sprchou, umyvadlem a přípojkou na pračku
• Samostatně umístěná toaleta
Druhé podlaží:
• Na schodiště navazující chodba propojující všechny místnosti
• Prostorný pokoj s další vybavenou kuchyňskou linkou a vstupem na balkon
• Větší ložnice nabídne dvojpostel , komodu a úložné prostory skryté v šikmém stropě
• Menší ložnice s vlastní šatnou pak může sloužit například jako pracovna
• Koupelna s vanou, umyvadlem a toaletou
Podzemní podlaží ( okna nad úrovní terénu) :
• Chodba navazující na schodiště
• Dílna s těžkým pracovním stolem
• Sklad
• Technická místnost, kde je umístěn kotel, pračka a další lednice
• Další místnost k využití dle Vašich preferencí
Lokalita:
Byt se nachází v rychle se rozvíjející části Prahy - Stodůlky s výbornou občanskou vybaveností v okolí (obchody, služby, školy, MHD) a zároveň spoustou zeleně v dochozí vzdálenosti.
Měsíční nájem činí 42500 Kč. Poplatky za služby 2400 Kč + elektrická energie a plyn. Vratná kauce 44900 Kč. Provize RK 44900 Kč + DPH.
Pozor, velkou výhodou pro potenciální nájemce je, že byt je v profesionální správě společnosti Bohemian Estates, jenž správu pro majitele tohoto bytu vykonává. Nájemci je k dispozici kontaktní osoba, která řeší veškeré záležitosti s nájmem spojené (údržba, platby nájemného, vyúčtování, dodatky, a pod.). Nájemci je tak zajištěno bezproblémové užívání bytu s kompletním servisem.
Cena:
42 500 Kč / (za měsíc)
Poznámka:
+ 2400 Kč zálohy na služby + elektřina a plyn, vratná jistota 44900 Kč, provize 44900 Kč + DPH
Datum k nastěhování:
16.02.2026
Číslo zakázky:
REALITYMIX-N08825
Podrobné informace
Poloha objektu:samostatný
Druh objektu:cihlová
Stav objektu:velmi dobrý
Počet podlaží objektu:2
Typ domu:patrový
Zastavěná plocha:196 m²
Plocha parcely:411 m²
Dílna:88 m²
Užitná plocha:196 m²
Sklep:88 m²
Ostatní:Parkoviště
Umístění objektu:klidná část obce
Topení:Ústřední - plynové
Energetická náročnost budovy:B - Úsporná
Ukazatel energetické náročnosti budovy:84 kWh/m²
Energetický ukazatel podle vyhlášky:č. 148/2007 Sb.
Uživatel serveru RealityMIX.cz (dále jen „Server“) dostupného na internetové adrese (URL) https://www.realitymix.cz, který provozuje společnost DALTEN media s.r.o., se sídlem Na Harfě 916/9a, Praha 9, 190 00, IČO: 271 35 306 (dále jen „Správce“) jako provozovateli tohoto Serveru uděluje svůj výslovný souhlas v souladu s ustanovením § 5 zákona č. 101/2000 Sb. O ochraně osobních údajů a o změně některých zákonů, v platném znění (dále jen „zákon o ochraně osobních údajů“), se zpracováním uživatelem poskytnutých osobních údajů a dalších dat.
Uživatel poskytuje Správci osobní údaje v rozsahu: jméno, příjmení, e-mailová adresa, telefonický kontakt a další data, a to z důvodu projeveného zájmu o nemovitost, kde prostřednictvím služby Serveru Správce osloví Uživatel inzerenta uvedeného v detailu
nemovitosti - Bohemian Estates International s. r. o. (IČ 27889394) se zájmem o jeho služby.
Uživatel tyto osobní údaje poskytuje dobrovolně a bere na vědomí, že součástí služeb Správce, které Správce Uživateli poskytuje, je vyhledání všech Uživateli vyhovujících (dle parametrů - cena, typ nemovitosti, lokalita atd.) nemovitostí. Správce za tímto účelem provozuje aplikace Hlídací pes a newsletter. Tyto služby je možné z každého zaslaného emailu odhlásit. Souhlas se zpracováním osobních údajů Uživatel poskytuje Správci na dobu neurčitou s tím, že svůj udělený souhlas může Uživatel kdykoliv na drese správce info@realitymix.cz odvolat. Správce garantuje Uživateli i další práva uvedené v ustanovení §11 a §21 zákoba č. 101/200 Sb. Ve znění pozdějších předpisů.
Více informací o zpracování údajů získáte zde (realitymix.cz/zasady-ochrany-osobnich-udaju)